Ideal compact home near transport, good schools and green spaces.
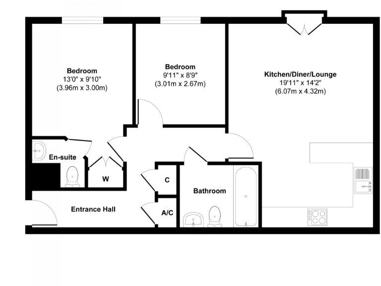
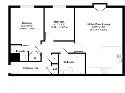
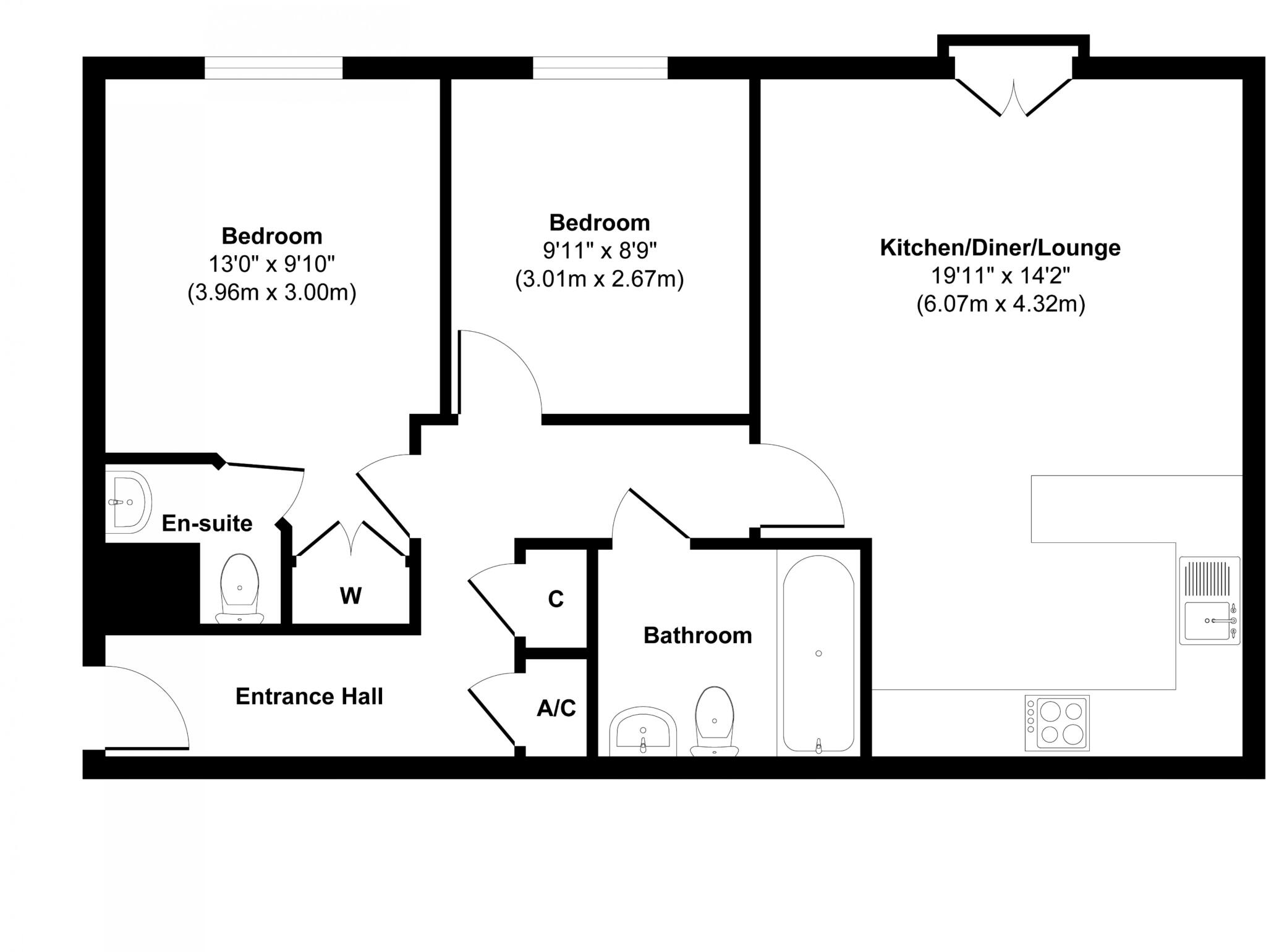
Open-plan kitchen/sitting/dining room for sociable living
Two bedrooms with en-suite shower to the master
First-floor flat, light neutral décor throughout
Very long lease — 994 years remaining
Service charge c. £1,618 pa; ground rent £150 pa
Compact size (496 sq ft) — may feel small for some
Walking distance to Hedge End station and motorway access
No onward chain; gas central heating and double glazing
This light first-floor apartment in Dowd’s Farm offers a compact, well-laid-out home for small families or first-time buyers. The open-plan kitchen/sitting/dining room creates a sociable centre while two bedrooms include an en-suite to the master, giving practical everyday convenience.
Practical strengths are the exceptionally long lease (994 years remaining), gas central heating, UPVC double glazing and nearby transport links — Hedge End railway station is within walking distance and the motorway network is easily accessible. Local schools are well regarded and the area is affluent with very low recorded crime.
Costs are straightforward: an annual service charge of about £1,618 and ground rent of £150. The flat is chain-free, ready for a quick sale, and at 496 sq ft it suits buyers who prioritise location and low maintenance over large living space. The apartment may feel small for some buyers and buyers should verify room sizes and any specific requirements before purchasing.
1 bedroom flat for sale in Fawn Crescent, Hedge End, SO30 — £160,000 • 1 bed • 1 bath • 472 ft²
2 bedroom apartment for sale in White's Way, Hedge End, SO30 — £210,000 • 2 bed • 2 bath • 505 ft²
2 bedroom apartment for sale in Crestwood View, Eastleigh, SO50 — £170,000 • 2 bed • 2 bath • 564 ft²
2 bedroom apartment for sale in Exford Avenue, Southampton, Hampshire, SO18 — £200,000 • 2 bed • 2 bath • 673 ft²
2 bedroom maisonette for sale in Sherborne Way, Hedge End, SO30 — £200,000 • 2 bed • 1 bath • 622 ft²
1 bedroom apartment for sale in Cheltenham Gardens, Hedge End, Southampton, SO30 — £160,000 • 1 bed • 1 bath • 349 ft²


































