2.1 acres of manicured grounds and mature tree belts
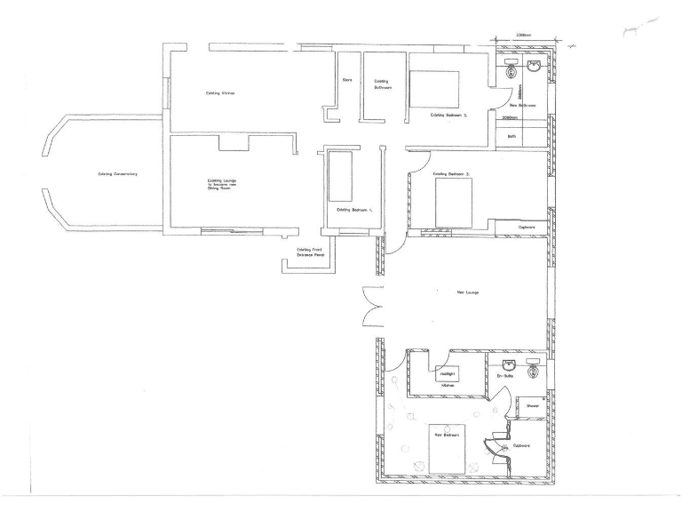
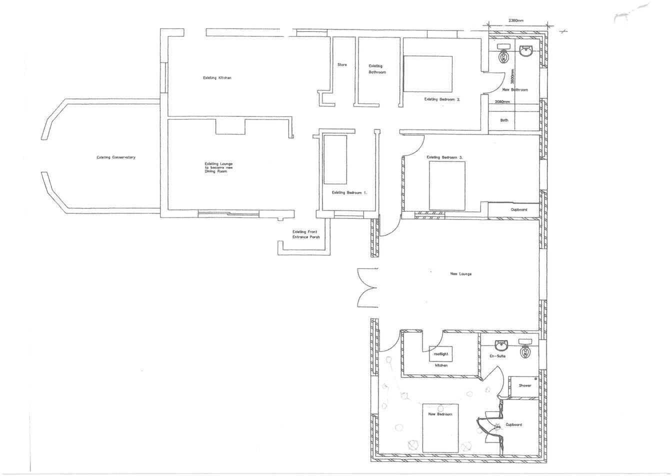
Deceptively spacious 4-bedroom single-storey layout
Recently fitted kitchen and modern bathroom suites
Self-contained annexe potential; can be split into two units
Three garages and ample private off-street parking
LPG central heating (not mains gas)
Private drainage to a septic tank — maintenance responsibility
Average broadband; area records higher deprivation despite low crime
Set within 2.1 acres of manicured grounds on the edge of Llanarth, this spacious detached bungalow offers single‑storey living with easy coastal access. The recently modernised kitchen and bathrooms give immediate move‑in appeal, while multiple reception rooms and long lawns create comfortable family circulation and outdoor space.
The property already includes a self‑contained annexe layout and could be split into two units, offering multi‑generation living or rental potential. Private parking and three garages add secure storage and workspace for vehicles, boats or hobbies.
Practical considerations are straightforward: heating runs on LPG with a boiler and radiators, drainage is to a private septic tank, and broadband speeds are average. Council Tax sits above average (Band E) and the wider area records higher deprivation despite very low local crime and excellent mobile signal.
For buyers seeking space, privacy and coastal proximity—families, downsizers or investors—this bungalow blends recently updated interiors with expansive grounds and clear potential for subdivision or ancillary income. The rural setting delivers countryside views while remaining just minutes from Cardigan Bay beaches and local village amenities.
4 bedroom bungalow for sale in Mydroilyn, Lampeter, Ceredigion, SA48 — £399,000 • 4 bed • 2 bath • 1755 ft²
4 bedroom bungalow for sale in Cilcennin, Nr Aberaeron, SA48 — £275,000 • 4 bed • 1 bath • 1164 ft²
3 bedroom bungalow for sale in 2 Maes-Y-Felin, Llanrhystud, SY23 — £310,000 • 3 bed • 2 bath • 1077 ft²
4 bedroom detached bungalow for sale in Cross Inn, Llandysul, SA44 — £415,000 • 4 bed • 2 bath • 1409 ft²
4 bedroom detached bungalow for sale in Llanarth, SA47 — £350,000 • 4 bed • 1 bath • 1607 ft²
2 bedroom smallholding for sale in Pencae, Llanarth, Near New Quay, SA47 — £324,950 • 2 bed • 1 bath • 646 ft²










































































































































































































































































