Commuter-friendly house with garden and nearby garage, ideal for first buyers.
Two double bedrooms on first floor, practical family layout
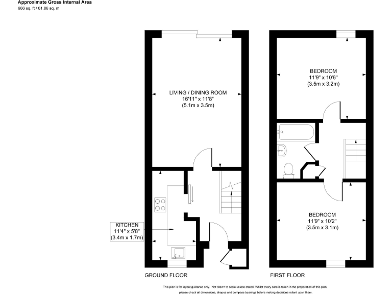
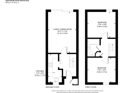
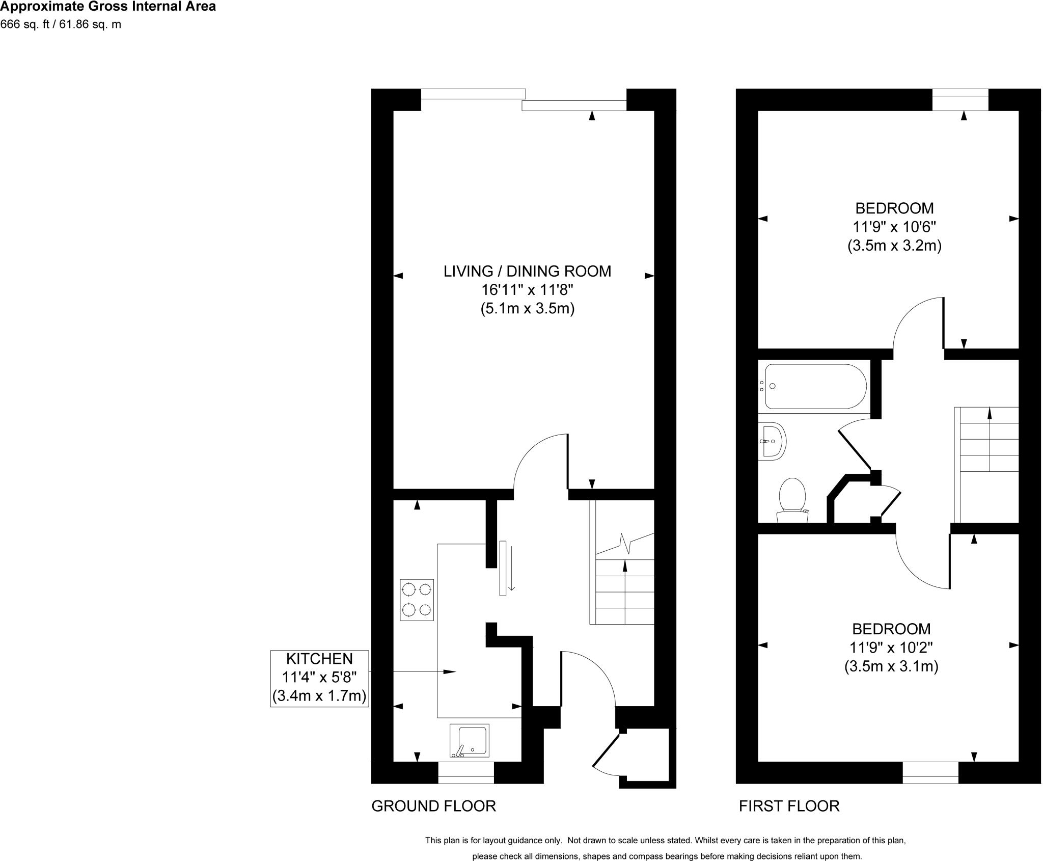
This freehold mid-terrace townhouse offers straightforward, commuter-friendly living in Knaphill, with two double bedrooms and practical living space across two storeys. The lounge/dining room opens onto a private rear garden of around 30ft, giving outdoor space rare for entry-level homes in the area. A garage in a nearby block and communal parking add useful storage and off-street convenience. The property is well-located for St John’s and Knaphill villages, frequent bus links and Woking mainline services — appealing for first-time buyers and landlords seeking reliable rental demand.
The interior is functional but shows signs of age, notably a 1990s-style kitchen that would benefit from modernization to improve layout and value. The bathroom is serviceable, and the home retains practical upgrades such as double glazing and gas central heating with a boiler and radiators. The plot is modest and the house is an average-sized two-bedroom terrace, so living space is compact but efficiently arranged for a small household.
There are low annual charges of £400 and affordable council tax, which help running costs. No significant flood risk is recorded and broadband and mobile signals are strong — useful for commuters and those working from home. Buyers should note the need for cosmetic updating rather than structural overhaul, making this a relatively straightforward project with clear potential to add value through a targeted refurbishment.
Overall this property suits a first-time buyer wanting a commuter base with outdoor space, or an investor seeking a let-ready layout with room to increase rent after modest updating. Be aware of the small plot and dated kitchen when assessing budget and renovation plans.
2 bedroom terraced house for sale in Oakfield, Woking, GU21 — £350,000 • 2 bed • 1 bath • 646 ft²
3 bedroom end of terrace house for sale in Silistria Close, Knaphill, Woking, GU21 — £595,000 • 3 bed • 3 bath • 1435 ft²
3 bedroom end of terrace house for sale in Florence Way, Knaphill, Woking, Surrey, GU21 — £480,000 • 3 bed • 2 bath • 963 ft²
3 bedroom semi-detached house for sale in Robin Hood Road, Knaphill, Surrey, GU21 — £475,000 • 3 bed • 1 bath • 786 ft²
3 bedroom semi-detached house for sale in Orchard Mews, Knaphill, Woking, GU21 — £525,000 • 3 bed • 2 bath • 705 ft²
4 bedroom terraced house for sale in Barnard Court, Woking, Surrey, GU21 — £419,950 • 4 bed • 2 bath • 966 ft²


























