Converted loft master with ensuite, close to shops and commuting links.
Allocated off-street parking space included
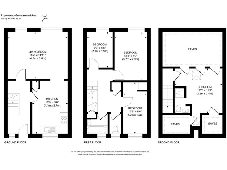
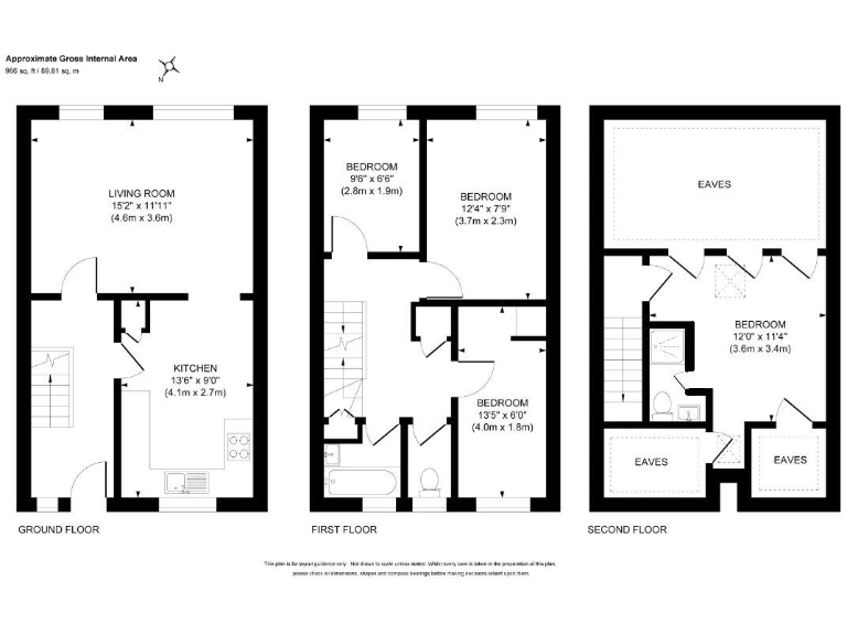
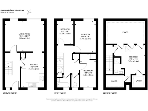
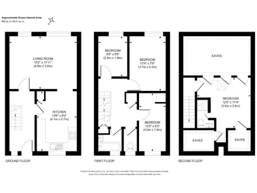
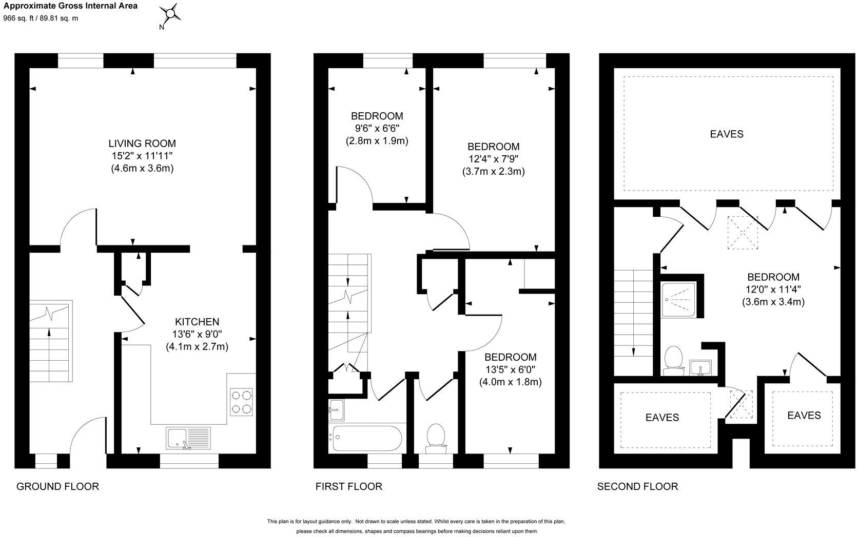
This well-presented four-bedroom terraced house offers practical family living across three floors, with 966 sq ft of thoughtfully arranged space. A converted loft provides a private master suite with ensuite, while three further bedrooms and a recently updated family bathroom sit on the first floor. The ground floor hosts a kitchen/breakfast room and a rear-aspect lounge with direct garden access.
Outside, the garden is low-maintenance and enclosed, and the property includes one allocated off-street parking space — a useful premium in this area. The location suits commuters and family life: local shops, bus links to Woking town centre and Brookwood station are close by, and a range of primary and secondary schools (including several rated Good and one Outstanding) are within easy reach.
Practical details are straightforward: freehold tenure, gas central heating with boiler and radiators, double glazing, no flood risk and fast broadband with excellent mobile signal. The house was built in the 1980s and sits on a small plot, so it blends modern convenience with modest outside space.
Buyers should note the property size is compact for four bedrooms (approx. 966 sq ft) and the plot is small with limited garden space. The surrounding area scores as more deprived than average and recorded average crime levels; prospective purchasers may wish to view at different times to assess the neighbourhood for themselves. Overall, the home offers a sensible, flexible layout for families or buyers seeking good commuter links and low-maintenance outdoor space.
4 bedroom terraced house for sale in Knaphill, GU21 — £525,000 • 4 bed • 2 bath • 1080 ft²
4 bedroom end of terrace house for sale in Baynton Road, Woking, GU22 — £529,950 • 4 bed • 2 bath • 1180 ft²
4 bedroom semi-detached house for sale in Brookwood Farm Drive, Knaphill, Woking, GU21 — £565,000 • 4 bed • 2 bath • 1072 ft²
3 bedroom semi-detached house for sale in Hoad Crescent, Woking, Surrey, GU22 — £450,000 • 3 bed • 2 bath • 1048 ft²
3 bedroom end of terrace house for sale in Florence Way, Knaphill, Woking, Surrey, GU21 — £480,000 • 3 bed • 2 bath • 963 ft²
3 bedroom terraced house for sale in Candlerush Close, Woking, Surrey, GU22 — £450,000 • 3 bed • 2 bath • 778 ft²






























































































