Auction lot: large-plot terraced house requiring full refurbishment and verification before bidding..
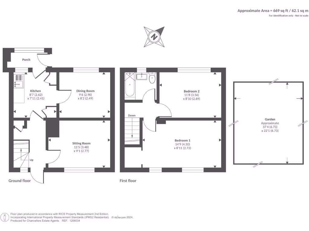
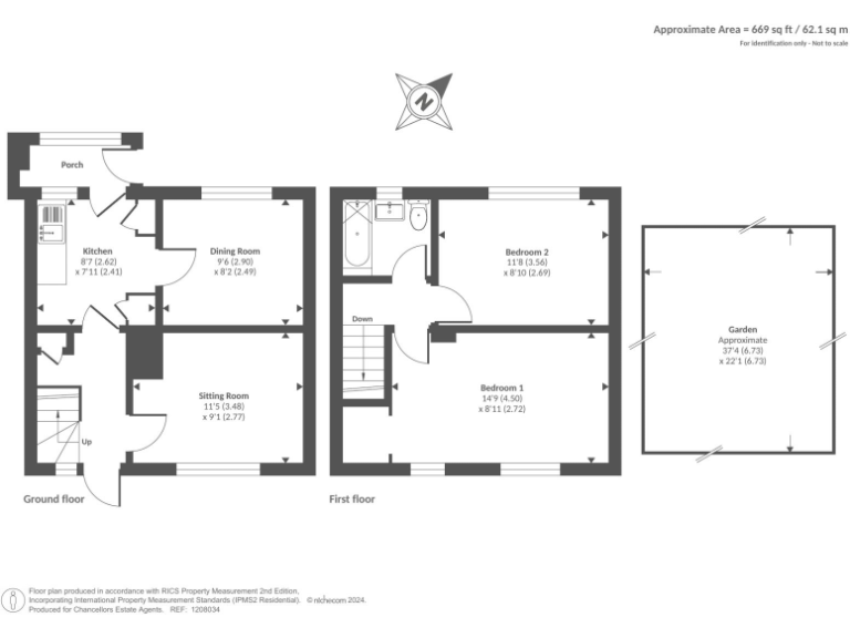
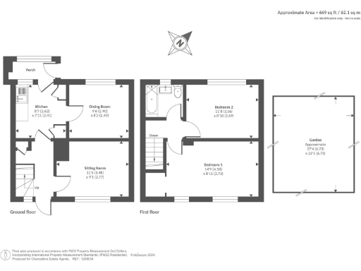
2 reception rooms offering flexible ground-floor living
Listed as two bedrooms but records show one — confirm before bidding
Requires full refurbishment; dated 1960s–1970s kitchen throughout
Very large plot with a small rear garden and development potential
Off-street parking included; convenient for town fringe amenities
Sold at auction via online bidding; terms and conditions apply
Property not inspected; unknown defects possible — allow contingency
Very slow broadband; excellent mobile signal
An auction lot for buyers who can take a project and add clear value. This mid-20th-century terraced house sits on a very large plot on Fane Drive and is offered for sale via secure online bidding; terms and conditions apply. The property requires full refurbishment: dated 1960s–1970s kitchen, general modernisation and likely internal works throughout.
Practical positives include off-street parking, a small rear garden and two reception rooms on the ground floor that provide flexible layout options. Broadband speeds are reported as very slow and mobile signal is excellent. The property has no recorded flood risk and sits in a small‑town fringe with everyday amenities nearby, including shops, pubs, a library and bus services.
Important cautions for buyers: the sale is by auction and the property has not been inspected, so purchasers should allow for unknowns and budget for refurbishment. There is inconsistent information on bedroom count in the listing — verify accommodation prior to bidding. Tenure details are not provided; confirm legal/title information before purchase.
This home will suit experienced investors, builders or ambitious DIY buyers looking for a renovation opportunity in a town‑fringe location with scope to add value. Nearby schools, including several rated Good and an independent top‑tier option, add local appeal for lettings or resale to families.
3 bedroom detached house for sale in Abingdon Road, Oxford, OX1 — £750,000 • 3 bed • 1 bath • 1492 ft²
2 bedroom terraced house for sale in Berinsfield, Wallingford, OX10 — £190,000 • 2 bed • 1 bath • 669 ft²
3 bedroom detached bungalow for sale in Lashford Lane, Dry Sandford, OX13 — £440,000 • 3 bed • 1 bath • 1087 ft²
3 bedroom detached house for sale in Edgeway Road, Marston, Oxford, Oxfordshire, OX3 — £450,000 • 3 bed • 1 bath • 829 ft²
3 bedroom terraced house for sale in Pipkin Way, Oxford, OX4 — £375,000 • 3 bed • 1 bath • 953 ft²
3 bedroom end of terrace house for sale in Hillcraft Road, Stanton St. John, Oxfordshire, OX33 — £390,000 • 3 bed • 1 bath • 1042 ft²














































