Spacious central plot with redevelopment potential near Oxford centre.
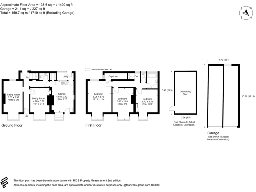
Double-fronted Victorian detached house on approx. 0.15-acre plot
A large, double-fronted Victorian detached house on Abingdon Road, less than a mile from Oxford city centre. Set on approximately 0.15 acres, the property includes a garden and garage and offers strong redevelopment potential subject to usual planning consents. The site could accommodate renovation of the existing house or a more substantial redevelopment of the whole plot or additional frontage properties.
The house requires complete renovation throughout: structural and cosmetic works are likely, and broadband speeds are slow. Flooding risk is high on this site and should be investigated by specialists before purchase. These factors, plus auction sale terms, make the property best suited to a buyer prepared to manage refurbishment or a developer seeking planning opportunities in a central location.
This lot is being sold by the Modern Method of Auction. Successful buyers must pay a non-refundable reservation fee of 4.2% (minimum £6,000 including VAT) on exchange; the method allows up to 56 days for completion to accommodate standard residential finance. Interested parties should review the Buyer Information Pack and obtain independent legal and technical advice about planning, flood risk, and renovation costs prior to bidding.
Local amenities are varied and close by, with good primary and independent schools nearby and excellent mobile signal. The house's size, plot and proximity to the city offer clear upside for those able to invest in renovation or redevelopment.
2 bedroom semi-detached house for sale in Cumberland Road, East Oxford, OX4 — £300,000 • 2 bed • 1 bath • 861 ft²
3 bedroom terraced house for sale in Botley Road, Oxford, OX2 — £350,000 • 3 bed • 1 bath • 1055 ft²
4 bedroom detached house for sale in Oxford Road, Abingdon, OX14 — £825,000 • 4 bed • 1 bath • 1742 ft²
3 bedroom terraced house for sale in Meadow Lane, Oxford, Oxfordshire, OX4 — £475,000 • 3 bed • 1 bath • 1382 ft²
2 bedroom semi-detached house for sale in Crescent Road, Oxford, Oxfordshire, OX4 — £270,000 • 2 bed • 1 bath • 603 ft²
3 bedroom semi-detached house for sale in Northampton Road, New Hinksey, Oxford, OX1 — £450,000 • 3 bed • 1 bath • 1062 ft²


















