Spacious family home with garden room and modern finishes.
Six bedrooms and four bathrooms in 2,305 sq ft of living space
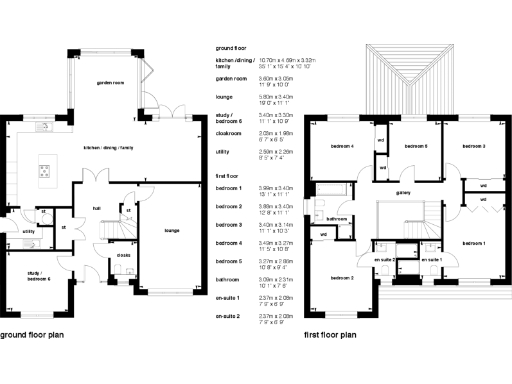
Plot 31 The Turnberry is a newly built six-bedroom detached family home with 2,305 sq ft of thoughtfully arranged living space. The property centres on a bright garden room with bi-fold doors that open straight onto the rear garden, creating an easy indoor-outdoor flow for family life and entertaining. High-quality finishes, a contemporary kitchen and multiple reception rooms give real flexibility for family use, home working or guest accommodation.
A grand entrance hallway with a galleried landing provides an impressive welcome and connects the home’s spacious rooms. Practical features include a detached garage, a generous monoblock driveway and modern services — excellent mobile signal and fast broadband — supporting busy family routines. Built in 2023 and offered freehold, the house should be low-maintenance for years to come.
Local amenities include a brand-new primary school (Jackton Primary, opened 2023) and improved transport links via the nearby Hairmyres Station, useful for commuting to Glasgow. There are incentives available on this plot — enquire to learn specifics. The surrounding development delivers a planned, family-focused neighbourhood with green space.
Buyers should note material local factors: the wider area registers as very deprived, which may affect local services and long-term resale perceptions. The plot is described as average overall size for the development; while internal accommodation is generous, external space is not unusually large. Flood risk is nil, but buyers seeking a secluded rural setting should expect a development environment rather than isolated countryside.
6 bedroom detached house for sale in Lynch Homes, Off Newhouse Road, Jackton, Glasgow
G75 8RQ, G75 — £575,000 • 6 bed • 4 bath • 2305 ft²
5 bedroom detached house for sale in Lynch Homes, Off Newhouse Road, Jackton, Glasgow
G75 8RQ, G75 — £590,000 • 5 bed • 4 bath • 2358 ft²
4 bedroom detached house for sale in Eaglesham Road,
East Kilbride,
South Lanarkshire,
G75 8RW, G75 — £399,995 • 4 bed • 1 bath • 1138 ft²
4 bedroom detached house for sale in Coatbridge,
ML5 4UF, ML5 — £358,995 • 4 bed • 1 bath • 1058 ft²
4 bedroom detached house for sale in East Kilbride,
South Lanarkshire,
G75 7AH, G75 — £396,995 • 4 bed • 1 bath • 644 ft²
4 bedroom detached house for sale in off Jackton Road,
East Kilbride,
G75 8RR, G75 — £409,995 • 4 bed • 1 bath • 1176 ft²


























