Large plot, garage and easy transport links for school runs and commuting.
Detached four-bedroom family home with master en-suite
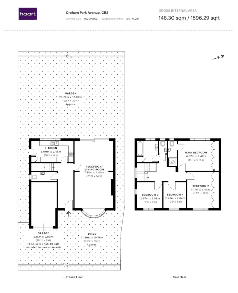
Set on sought-after Croham Park Avenue, this 1930s detached house provides a comfortable family layout and a large private garden ideal for outdoor life. The ground floor features a bright dual-aspect reception room, practical fitted kitchen and guest WC, while upstairs offers four bedrooms including a master en-suite and a separate family bathroom.
The property sits on a generous plot with driveway parking for several cars and a private garage. Transport links are strong: South Croydon station and Tramlink to East Croydon are within easy reach, and highly regarded state and independent schools are walkable, making this practical for school runs and commuting.
The house has been lovingly lived in but offers clear scope to modernise and extend (STPP) to increase living space or update services. Construction details note cavity walls without fitted insulation and double glazing of unknown age, so buyers should consider energy-efficiency upgrades. Total internal area is about 1,003 sq ft, so rooms are efficiently arranged rather than expansive.
This freehold home suits growing families who value outdoor space, local schools and commuter convenience, and who are prepared to invest in refurbishment or modest extension to realise the property’s full potential.
4 bedroom detached house for sale in Whitgift Avenue, South Croydon, CR2 — £999,000 • 4 bed • 4 bath • 2044 ft²
5 bedroom detached house for sale in Croham Manor Road, South Croydon, CR2 — £1,200,000 • 5 bed • 2 bath • 2422 ft²
4 bedroom detached house for sale in Whitgift Avenue, South Croydon, CR2 — £999,000 • 4 bed • 4 bath • 1933 ft²
5 bedroom detached house for sale in Croham Park Avenue, South Croydon, CR2 7HN, CR2 — £1,200,000 • 5 bed • 2 bath • 3006 ft²
4 bedroom detached house for sale in Purley Downs Road, South Croydon, CR2 — £800,000 • 4 bed • 1 bath • 1358 ft²
4 bedroom detached house for sale in Beechwood Road, South Croydon, CR2 — £1,000,000 • 4 bed • 3 bath • 2000 ft²


























































































