Low-entry buy-to-let with tenants in place and garage included.
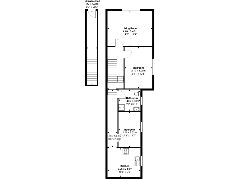
Two-bedroom first-floor flat with lounge, kitchen and three-piece bathroom
A two-bedroom first-floor flat in Grimsby offered as a buy-to-let investment with tenants in situ. The property includes a lounge, kitchen, three-piece bathroom, exclusive front garden and an enclosed private garage — practical features that support long-term lettability. Current gross income is £5,640 per year with estimated market rent of around £6,600, presenting clear income-upside for a new owner.
The flat is leasehold with 123 years remaining and is advertised in generally good condition, reducing immediate repair outlay. Broadband speeds are fast and flood risk is very low. These practical benefits, together with nearby amenities and decent local primary and secondary schools, help maintain rental demand in the area.
Buyers should note the location sits within a very deprived neighbourhood classification and recorded local crime levels are high; these factors influence tenant profiles, rent levels and resale prospects. The property is suited to investors or developers comfortable operating in constrained rental markets and aiming for steady income rather than premium capital growth.
A buyers’ premium applies to secure purchase — ensure you review the Let Property Pack and tenancy information before bidding. The flat’s low purchase price and tenant stability make it a straightforward portfolio addition for an investor targeting predictable cashflow and modest refurbishment-led uplift.
1 bedroom flat for sale in Torrington Street, Grimsby, , DN32 — £40,000 • 1 bed • 1 bath • 506 ft²
3 bedroom semi-detached house for sale in Second Avenue, Grimsby, Lincolnshire, DN33 — £90,000 • 3 bed • 2 bath • 753 ft²
1 bedroom flat for sale in Welholme Road, Grimsby, DN32 — £56,000 • 1 bed • 1 bath • 581 ft²
2 bedroom flat for sale in Littlefield Lane, Grimsby, DN34 — £54,000 • 2 bed • 1 bath • 710 ft²
2 bedroom terraced house for sale in Fairmont Road, Grimsby, DN32 — £82,000 • 2 bed • 1 bath • 861 ft²
4 bedroom terraced house for sale in Mendip Avenue, Grimsby, DN33 — £122,500 • 4 bed • 2 bath • 872 ft²














































































