Low-cost, income-producing buy-to-let with refurbishment upside.
Freehold one-bedroom flat with front and rear private gardens
A compact one-bedroom freehold flat on Welholme Road offered mainly as a buy-to-let opportunity. The property produces an annual gross income of £4,620 from a long-term tenant and is being sold with tenancy in situ, making it immediately income-generating for an investor.
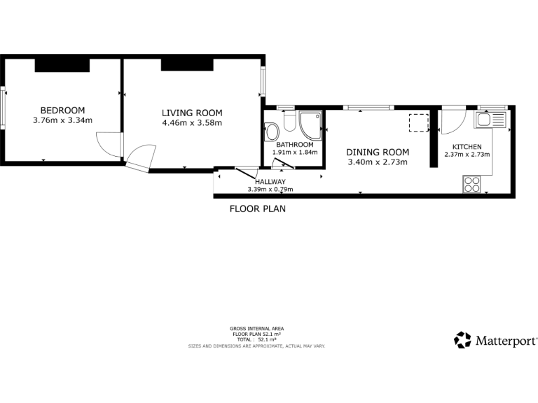
The flat sits within a Victorian terraced building and includes a spacious lounge, separate kitchen/dining area, one double bedroom, a three-piece bathroom and private front and rear garden spaces. Construction shows period features but much of the interior is dated and will benefit from modernization; single-glazed windows and mid-20th-century fittings suggest refurbishment potential and scope to increase rental value.
Location factors will appeal to yield-focused buyers: fast broadband, nearby amenities and schools, and very low flood risk. Counterbalancing these positives, the local area is classified as very deprived with above-average crime rates and constrained renter demand, which may affect tenant turnover and management costs. Buyers should inspect internally and review the Let Property Pack for full tenancy details and projected returns.
This is a practical acquisition for investors or developers prepared to manage an occupied, lower-priced asset. The property’s low purchase price and existing rent provide a base yield now, with clear upside through refurbishment or re-letting strategies. Important: no interior-specific photos are provided here, and some repair or upgrade works should be anticipated on inspection.
2 bedroom terraced house for sale in Fairmont Road, Grimsby, DN32 — £90,000 • 2 bed • 1 bath • 861 ft²
1 bedroom flat for sale in Torrington Street, Grimsby, , DN32 — £48,000 • 1 bed • 1 bath • 506 ft²
3 bedroom terraced house for sale in 7 Stokesley Walk, Grimsby, Lincolnshire, DN37 — £95,000 • 3 bed • 1 bath • 850 ft²
1 bedroom flat for sale in Cromwell Road, Grimsby, DN31 — £53,500 • 1 bed • 1 bath • 603 ft²
3 bedroom end of terrace house for sale in Crowland Avenue, Grimsby, DN34 — £120,000 • 3 bed • 2 bath • 1610 ft²
2 bedroom end of terrace house for sale in Dunmow Street, Grimsby, DN31 — £72,500 • 2 bed • 1 bath • 990 ft²










































































































