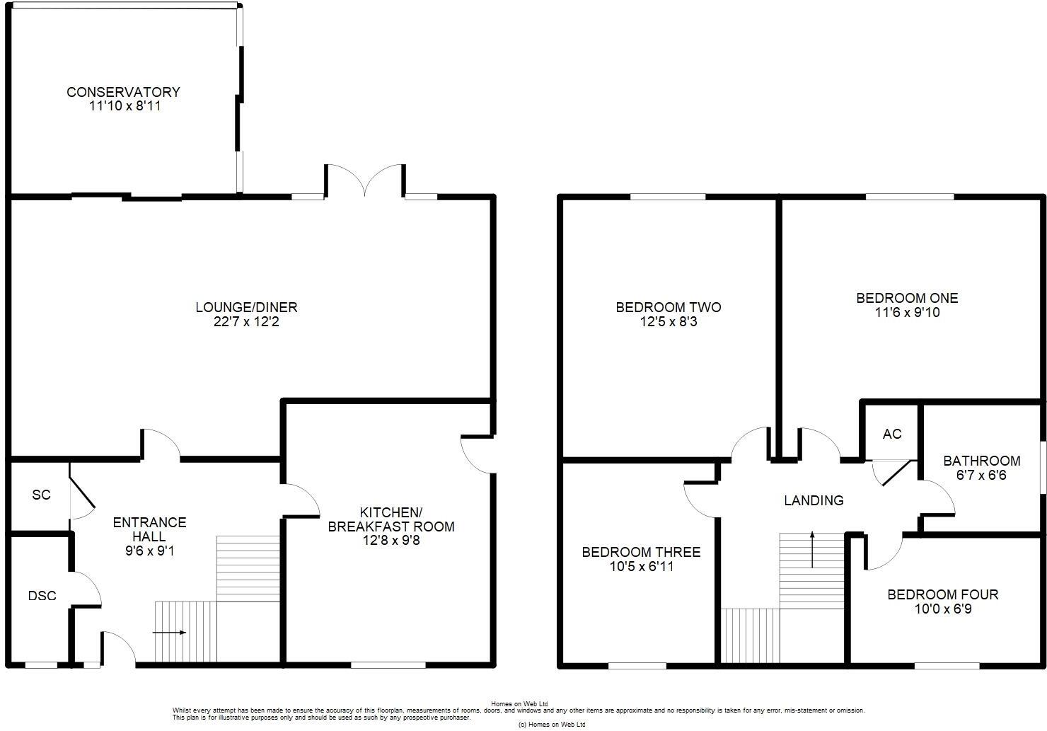
**Standout Features:**
- Four-bedroom detached family home.
- Located in Ousedale School catchment area.
- Generous south-facing rear garden with patio.
- Detached garage and off-street parking for multiple vehicles.
- Ground floor shower room and conservatory (11'10" x 8'11").
- Potential for side extension, subject to planning permission.
- Short walking distance to Newport Pagnell High Street and Castle Meadow.
**Summary:**
Discover this charming four-bedroom detached family home located in a desirable cul-de-sac in Newport Pagnell. With a spacious 22ft lounge/diner, a bright conservatory, and a private south-facing garden perfect for summer barbecues, this property caters to family living. The home is tastefully decorated in neutral shades, ensuring a warm and welcoming atmosphere, while its structural integrity is enhanced by double-glazed windows and modern gas heating.
Families will appreciate being in the Ousedale School catchment and the proximity to a variety of primary schools and local amenities, with the High Street just a 10-minute walk away. The property also offers considerable renovation potential, allowing you to add your personal touch or an extension (subject to planning approval) to create additional living space.
While this property presents fantastic opportunities for comfortable living, it's essential to note that it is in average condition and may require some maintenance touches. Given its excellent location, spacious layout, and appealing features, this home is a must-see for first-time buyers and families alike. Act fast, as exceptionally well-priced homes like this won't be available for long!
5 bedroom detached house for sale in Whitton Way, Newport Pagnell, MK16 — £750,000 • 5 bed • 3 bath • 1787 ft²
3 bedroom detached house for sale in Thomas Drive, Newport Pagnell, MK16 — £425,000 • 3 bed • 1 bath • 905 ft²
4 bedroom detached house for sale in Flora Thompson Drive, Newport Pagnell, MK16 — £600,000 • 4 bed • 2 bath • 1432 ft²
3 bedroom detached house for sale in Avon Close, Newport Pagnell, MK16 — £390,000 • 3 bed • 1 bath • 2626 ft²
3 bedroom detached house for sale in Tennyson Drive, Newport Pagnell, MK16 — £415,000 • 3 bed • 1 bath • 872 ft²
4 bedroom detached house for sale in Wolverton Road, Newport Pagnell, MK16 — £600,000 • 4 bed • 2 bath • 1496 ft²


































































































































