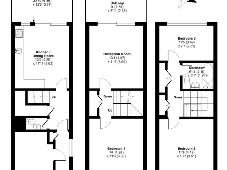
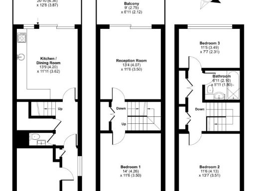
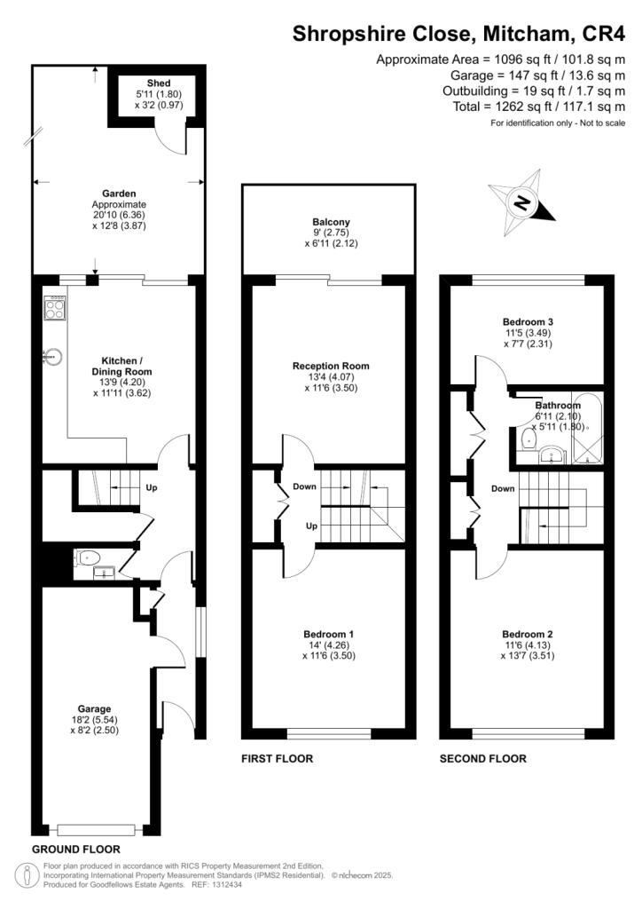
**Standout Features:**
- Three double bedrooms with ample space
- End of terrace townhouse with 1,262 sq. ft. of living space
- Open-plan kitchen leading to a private rear garden
- Spacious reception room with access to a roof terrace
- Integrated double garage with conversion potential (STPP)
- No onward chain—swift move-in possible
- Close to excellent local amenities and transportation options
This inviting three-bedroom townhouse is a true gem for families and first-time buyers seeking modern living. Offering an impressive 1,262 sq. ft., the home features a large open-plan kitchen/dining area that flows seamlessly into a charming private garden—perfect for summer gatherings. Upstairs, enjoy a bright and spacious reception room with direct access to a roof terrace, adding a touch of outdoor luxury.
Each bedroom is well-proportioned, conveniently complemented by a modern bathroom and a downstairs cloakroom for added convenience. With an integrated garage that presents conversion potential for a studio space, this property allows for unique customization possibilities. The home is chain-free, enhancing the appeal for quick movers.
Located on tranquil Shropshire Close, the townhouse is ideally positioned for easy access to local amenities and excellent transport links to central London, making it perfect for commuters. Nearby schools boast solid Ofsted ratings, further enhancing its family-friendly atmosphere. Don’t miss out on this wonderful opportunity—early viewing is highly recommended!
3 bedroom terraced house for sale in Peony Drive, Mitcham Junction, Mitcham, CR4 — £600,000 • 3 bed • 3 bath • 1303 ft²
3 bedroom terraced house for sale in Ramones Terrace, Yorkshire Road, Mitcham, CR4 — £475,000 • 3 bed • 1 bath • 1099 ft²
3 bedroom terraced house for sale in Lindsey Close, Mitcham, CR4 — £350,000 • 3 bed • 1 bath • 1085 ft²
4 bedroom terraced house for sale in Glamorgan Close, Mitcham, CR4 — £450,000 • 4 bed • 2 bath • 1265 ft²
3 bedroom house for sale in Shropshire Close, Mitcham, CR4 — £400,000 • 3 bed • 1 bath • 1064 ft²
3 bedroom terraced house for sale in Daffodil Close, Mitcham Junction, Mitcham, CR4 — £600,000 • 3 bed • 2 bath • 1268 ft²






























































