Large living space with converted garage studio and easy transport links.
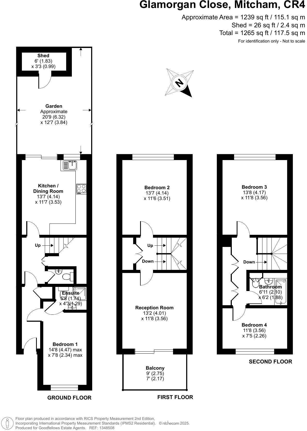
Approx. 1,265 sq ft over three floors, flexible four-bedroom layout
A spacious mid-terrace townhouse arranged over three floors, offering about 1,265 sq ft of flexible living space ideal for families or buy-to-let purchasers. The layout includes an open-plan kitchen/dining room opening to a low-maintenance rear garden, a separate reception with a small balcony/roof terrace, and a converted garage providing a private studio with ensuite.
The house dates from the 1950s–1960s with mid-century styling to the exterior; internally it is presented in generally good condition but would benefit from targeted modernisation to maximise value. Construction appears to be system-built with no obvious wall insulation and flat roofing/older cladding present — these fabric elements should be checked and factored into any refurbishment budget.
Transport links are strong: several nearby train and underground stations and frequent buses make central London commutable. Local schools include a mix of Good and Outstanding Ofsted-rated primaries and secondaries, which supports family occupation. Broadband and mobile signal are good.
Notable practical considerations: the area sits within a deprived ward and records above-average crime, and the plot/garden is small. The flat roof, asbestos-type cladding and assumed lack of cavity insulation are material maintenance items to investigate before purchase. Overall, this property suits a family seeking space with scope to personalise, or an investor targeting rental demand in a well-connected south London location.
4 bedroom terraced house for sale in Mitcham Road, Croydon, CR0 — £450,000 • 4 bed • 2 bath • 1143 ft²
4 bedroom house for sale in Glebe Avenue, Mitcham, CR4 — £575,000 • 4 bed • 2 bath • 1061 ft²
4 bedroom terraced house for sale in Commonside East, Mitcham, CR4 — £580,000 • 4 bed • 1 bath • 1267 ft²
3 bedroom terraced house for sale in Gale Close, Mitcham, CR4 — £400,000 • 3 bed • 2 bath • 1193 ft²
3 bedroom terraced house for sale in Manor Way, Mitcham, CR4 — £475,000 • 3 bed • 1 bath • 930 ft²
4 bedroom terraced house for sale in Lexden Road, Mitcham, CR4 — £600,000 • 4 bed • 2 bath • 1605 ft²






























































