Comfortable family living with big garden and plenty of parking close to local amenities.
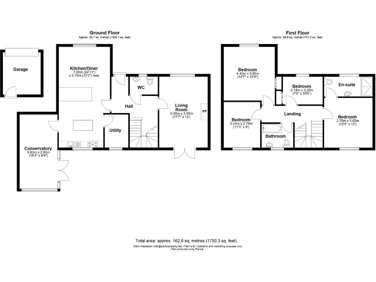
- Four bedrooms including principal with en-suite
- Spacious kitchen-diner with utility and breakfast island
- Living room with log burner and adjoining conservatory
- Large enclosed rear garden with summerhouse and decking
- Ample off-street parking, single garage, front lawn potential
- Slow broadband speeds in area; check connectivity needs
- Maintenance charge applies for the road; confirm details
- Mid-20th century build; expect routine older-property upkeep
Set on a generous plot in popular Manby, this well-presented four-bedroom semi delivers flexible family living across two floors. The ground floor centres on an open kitchen-diner with utility, a bright living room with a cosy log burner and a large conservatory with electric underfloor heating — ideal for year-round entertaining. Upstairs offers four bedrooms, including a principal with en-suite, plus a modern family bathroom.
Outside, the broad driveway, single garage and large enclosed rear garden give practical space for parking, storage and children’s play. The front lawn could be adapted for additional parking if required. The property is freehold and located within easy reach of local shops, primary schooling and rural footpaths, with Louth, Grimsby and Lincoln all within commuting distance.
Practical considerations include slow broadband speeds and a maintenance charge for the road. The house dates from the mid-20th century and, while well maintained, buyers should factor in routine older-property upkeep and confirm service details in survey and legal checks. Overall, this is a comfortable, move-in-ready family home with scope for small improvements to personalise.
3 bedroom detached house for sale in Provost Road, Manby, Louth, LN11 — £275,000 • 3 bed • 2 bath • 1340 ft²
3 bedroom detached house for sale in Carlton Road , Manby, LN11 — £249,950 • 3 bed • 2 bath • 1390 ft²
3 bedroom semi-detached house for sale in Carlton Park, Manby, Louth, LN11 — £210,000 • 3 bed • 1 bath • 955 ft²
2 bedroom end of terrace house for sale in Gibson Way, Manby, Louth, LN11 — £195,000 • 2 bed • 1 bath • 854 ft²
4 bedroom semi-detached house for sale in Watts Lane, Louth, LN11 — £229,950 • 4 bed • 1 bath • 1093 ft²
3 bedroom semi-detached house for sale in Station Road, Legbourne, LN11 — £250,000 • 3 bed • 1 bath • 1559 ft²






















































































































