Characterful one-bedroom with modern comforts near parks and transport links.
Top-floor one-bedroom flat with large rooms and high ceilings
Approximately 667 sq ft — generous space for a one-bedroom
Freehold tenure — simpler ownership than typical flats
Refurbished original floorboards and bay-windowed lounge
Double glazing and gas central heating with combi boiler
Well-maintained communal garden with drying and refuse facilities
EPC rating C; fast broadband and excellent mobile signal
Located in a very deprived area — may affect local services
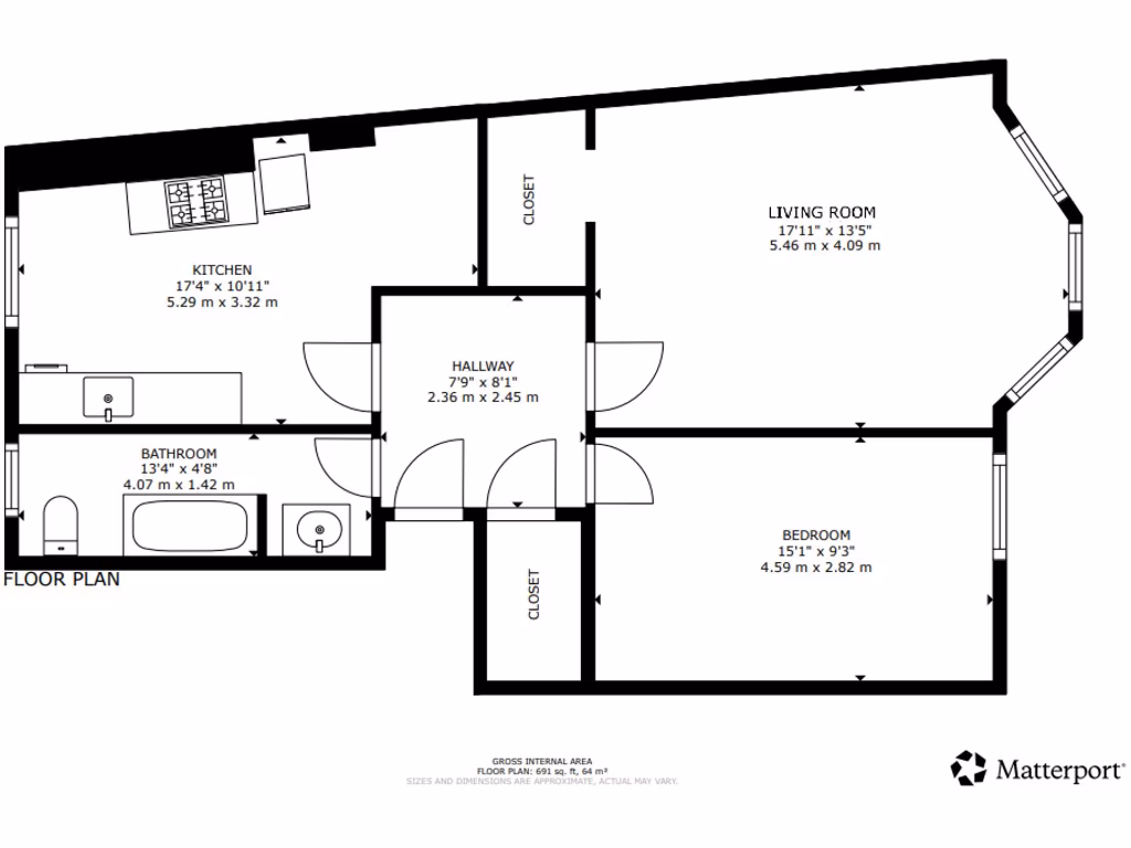
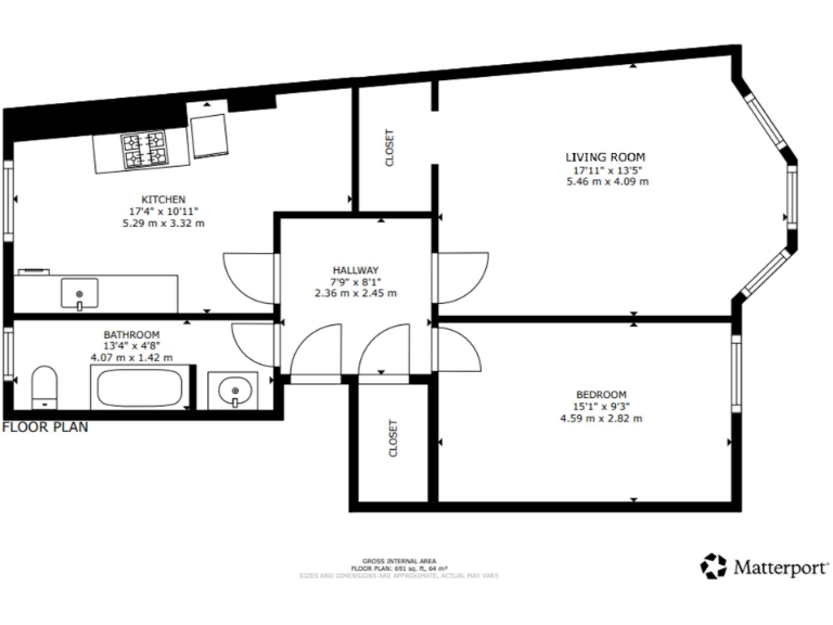
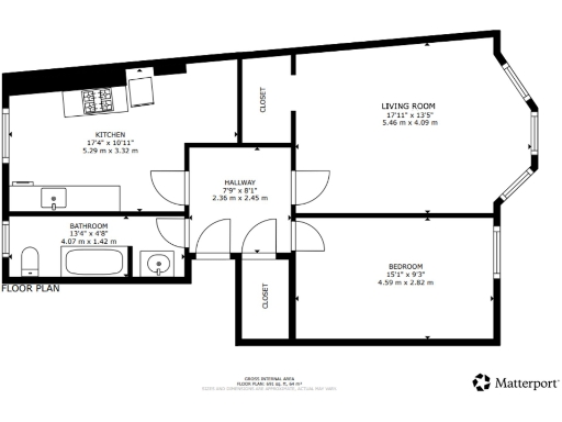
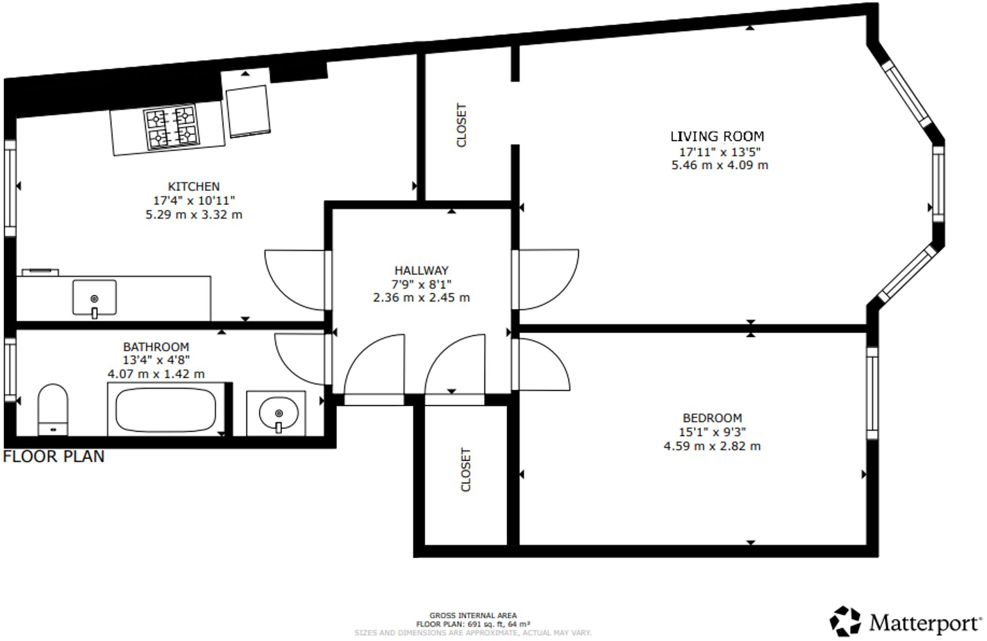
This bright, top-floor one-bedroom flat in Langside combines Victorian character with modern finishes, presented in superb condition throughout. High ceilings, a bay-windowed lounge and refurbished floorboards retain period charm while double glazing and a combi gas boiler provide contemporary comfort.
Set within a blonde sandstone tenement, the layout offers generous room sizes across approximately 667 sq ft, including a dining-sized kitchen and a large double bedroom. Residents benefit from a well-maintained communal garden and practical storage off the hallway. The property is Freehold, which is uncommon for flats and simplifies ownership.
The location suits first-time buyers or young professionals seeking easy access to local amenities on Battlefield and Cathcart Roads, green space at Queen’s Park and Pollok Park, and fast transport into Glasgow city centre. Practical positives include fast broadband, excellent mobile signal and a C EPC rating.
Buyers should note the wider area is classified as very deprived, which may affect local services and long-term neighbourhood change; council tax is low. There are no reported flooding risks. Overall this is a well-presented, characterful home that offers immediate move-in condition with period appeal and sensible running costs.
1 bedroom flat for sale in 87 Dundrennan Road, Flat 0/1, Battlefield, Glasgow, G42 9SL, G42 — £190,000 • 1 bed • 1 bath • 710 ft²
1 bedroom flat for sale in 26 Cartside Street, Langside, Glasgow, G42 9TF, G42 — £115,000 • 1 bed • 1 bath • 462 ft²
1 bedroom flat for sale in Calder Street, Glasgow, G42 — £120,000 • 1 bed • 1 bath • 405 ft²
4 bedroom apartment for sale in Camphill Avenue, Langside, Glasgow, G41 — £385,000 • 4 bed • 1 bath • 1718 ft²
1 bedroom flat for sale in 22 Battlefield Avenue, Flat 1/2, Battlefield, Glasgow, G42 9RJ, G42 — £159,000 • 1 bed • 1 bath • 721 ft²
2 bedroom flat for sale in 93 Sinclair Drive, Flat 1/1, Battlefield, Glasgow, G42 9PU, G42 — £189,000 • 2 bed • 1 bath • 732 ft²


























































