Compact, convenient home near hospital and transport links for first-time buyers.
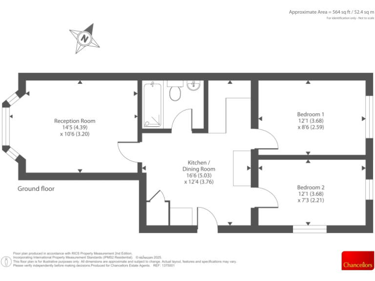
- Two-bedroom ground-floor maisonette, approximately 564 sq ft
- Private rear garden and driveway parking for two cars
- Shared freehold; 106 years remaining on lease
- Close to John Radcliffe Hospital and local buses to city
- Solid brick 1930s build; likely no wall insulation
- Double glazing fitted; install date unknown
- Local area: above-average crime and higher deprivation
- Compact size best suited to couples, first buyers or investors
A compact two-bedroom ground-floor maisonette offering practical, well-presented living just off London Road in Headington. The flat benefits from a private rear garden and driveway parking for two cars — rare for a property of this size — and sits within easy reach of the John Radcliffe Hospital and local shops.
The accommodation is efficient: a sitting room, kitchen/dining room, two bedrooms and a family bathroom across approximately 564 sq ft. The property is chain-friendly with a shared freehold and 106 years remaining on the lease. Heating is by mains gas boiler and radiators, and the windows are double glazed (installation date unknown).
There are some material points to note. The building is a 1930s solid-brick construction with assumed no cavity insulation, so loft/wall insulation upgrades could be needed and will improve running costs. The local area records above-average crime and higher deprivation indices than surrounding neighbourhoods, which prospective buyers should consider. The flat’s modest overall size suits first-time buyers, hospital staff or investors rather than larger families.
Nearby schools, regular buses to the city and fast broadband make this a practical base for commuting or working locally. With a little targeted updating, this maisonette offers a convenient, affordable entry into Headington property ownership or a straightforward rental proposition for investors.
2 bedroom apartment for sale in Ingle Close, Headington, OX3 — £335,000 • 2 bed • 1 bath • 647 ft²
2 bedroom maisonette for sale in Green Ridges, Headington, Oxford, Oxfordshire, OX3 — £270,000 • 2 bed • 1 bath • 688 ft²
2 bedroom flat for sale in Headington, Oxford, OX3 — £280,000 • 2 bed • 2 bath • 699 ft²
2 bedroom ground floor flat for sale in Beech Road, Oxford, Oxfordshire, OX3 — £300,000 • 2 bed • 1 bath • 581 ft²
2 bedroom flat for sale in Slade Close, Headington, Oxford, OX3 — £270,000 • 2 bed • 1 bath • 689 ft²
2 bedroom flat for sale in Headington, Oxford, OX3 — £290,000 • 2 bed • 1 bath • 683 ft²


















































































