TW8 0BQ - 2 bed town meadow riverside in Town Meadow, TW8 0BQ

View on Property Piper

2 bedroom flat for sale in Town Meadow, Brentford, TW8

Summary - 1 APARTMENT 4 TOWN MEADOW BRENTFORD TW8 0BQ

2 bed 2 bath Flat

Private terrace, secure garage and excellent transport links for commuters.
Two double bedrooms with ensuite to master
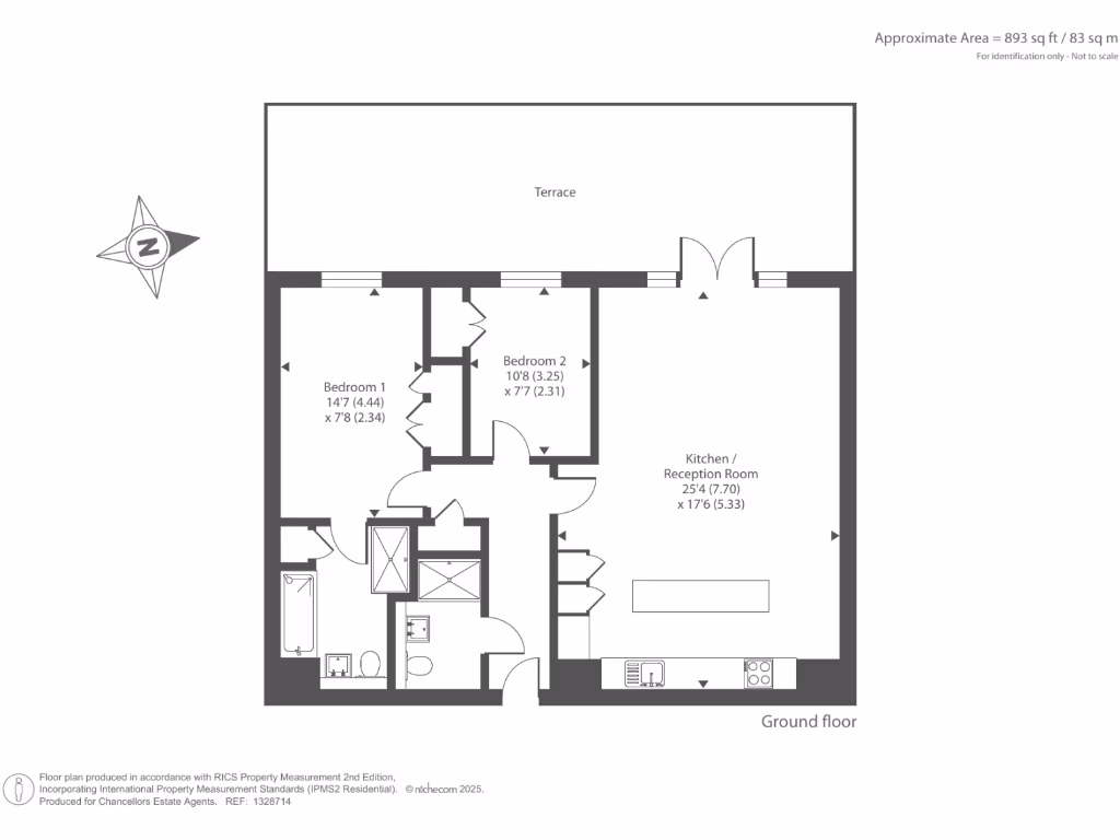
Set on the raised ground floor of a modern riverside development, this two-double-bedroom apartment offers open-plan living and a large private terrace — ideal for first-time buyers or buy-to-let investors seeking good transport links and low flood risk. The layout includes an ensuite shower room, a second bathroom, and secure underground garage parking for convenience in busy Brentford.

The accommodation feels contemporary with generous glazing, wood flooring and a modern kitchen. At approximately 893 sq ft, the flat delivers comfortable proportions and outdoor space that’s rare at this level. The building was constructed in the mid-2000s and benefits from mains gas central heating and double glazing.

Practical points to note: the property is leasehold with a long-term lease (buyer should verify exact years remaining and any service charges). Council tax is above average and the wider area scores as deprived, with average local crime statistics. These factors are reflected in the price and may affect running costs and resale considerations.

Property Details

Image Descriptions

Floorplan Description

Rooms

Textual Property Features

Target Audience

AI Tags

Detected Visual Features

EPC Details

Nearby Schools

Nearest Bars And Restaurants

,,,,}

Nearest General Shops

,,}

Nearest Grocery shops

,,}

Nearest Supermarkets

,,}

Nearest Religious buildings

,,}

Nearest Medical buildings

,,,}

Nearest Airports

,,}

Nearest Leisure Facilities

,,,,}

Nearest Tourist attractions

,,}

Nearest Train stations

,,,,}

Nearest Bus stations and stops

,,,,}

Nearest Hotels

,,}

Tags

Local Market Stats

AirBnB Data

Similar Properties

Meta

High Res Images

Compatible Images

Low res Images

Thumbnails

Raw Images

High Res Floorplan Images

Compatible Floorplan Images

Low res Floorplan Images

FloorplanImages Thumbnail

Raw Floorplan Images