TW8 0BQ - 2 bed riverside two bedroom in Town Meadow, TW8 0BQ

View on Property Piper

2 bedroom flat for sale in Town Meadow, Brentford, TW8

Summary - 1 APARTMENT 62 TOWN MEADOW BRENTFORD TW8 0BQ

2 bed 2 bath Flat

Spacious riverside two-bed with parking and lift, close to stations and shops..
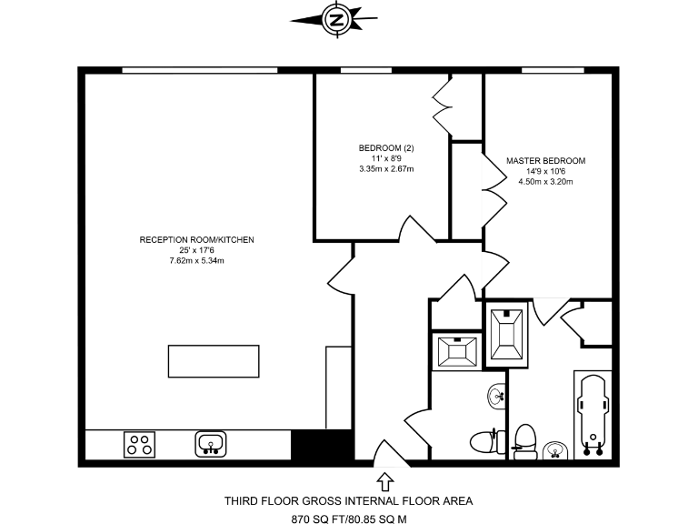
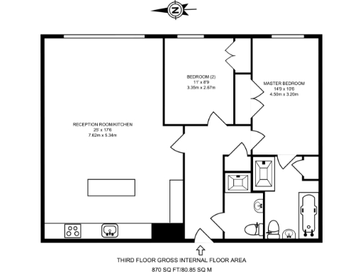
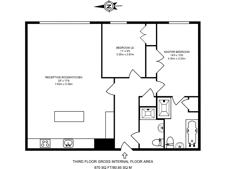
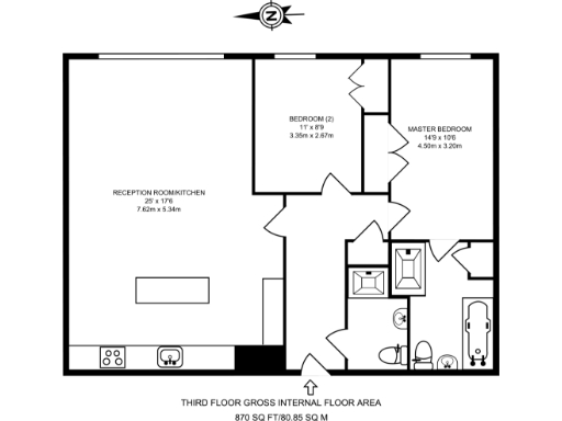
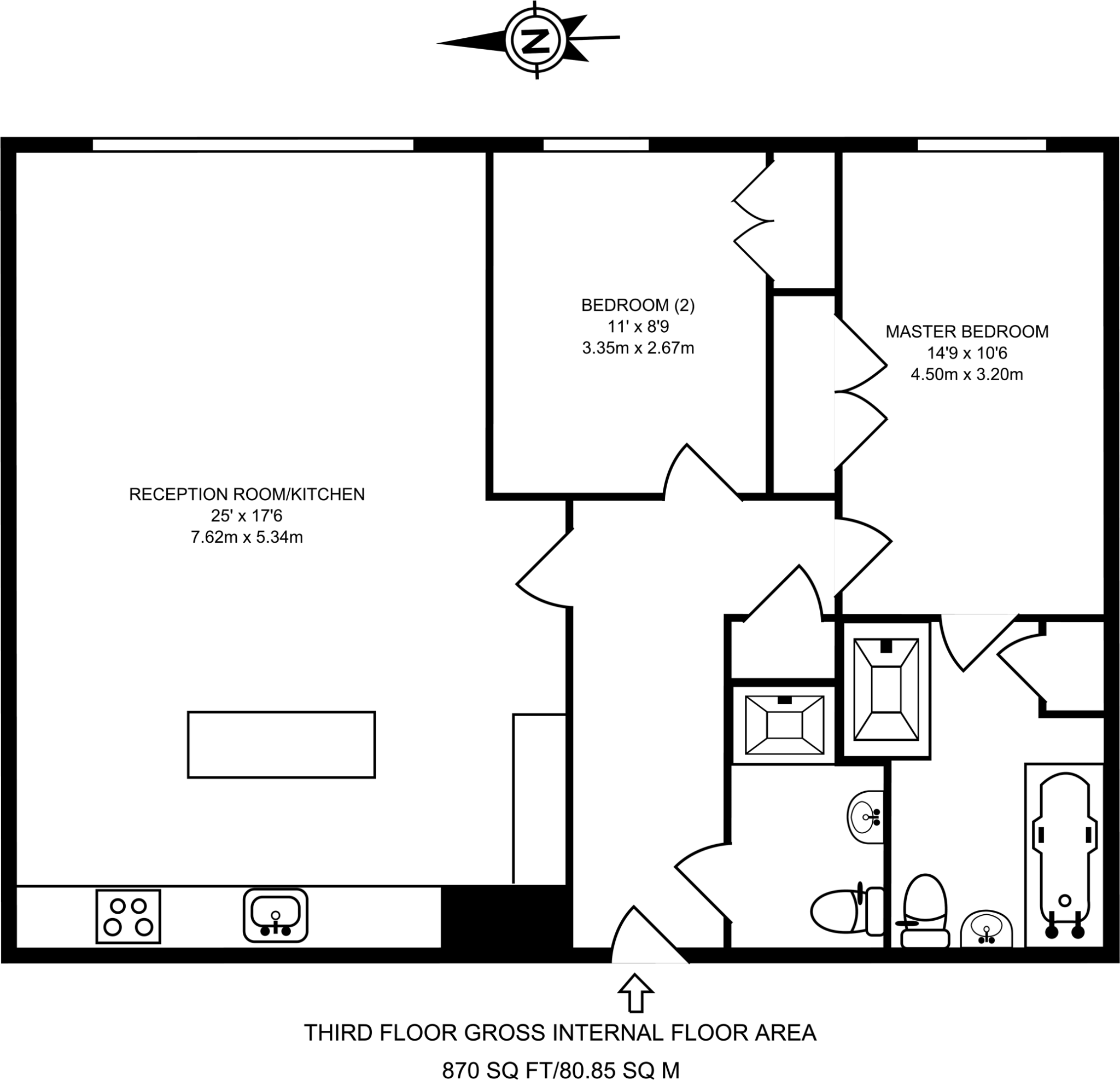
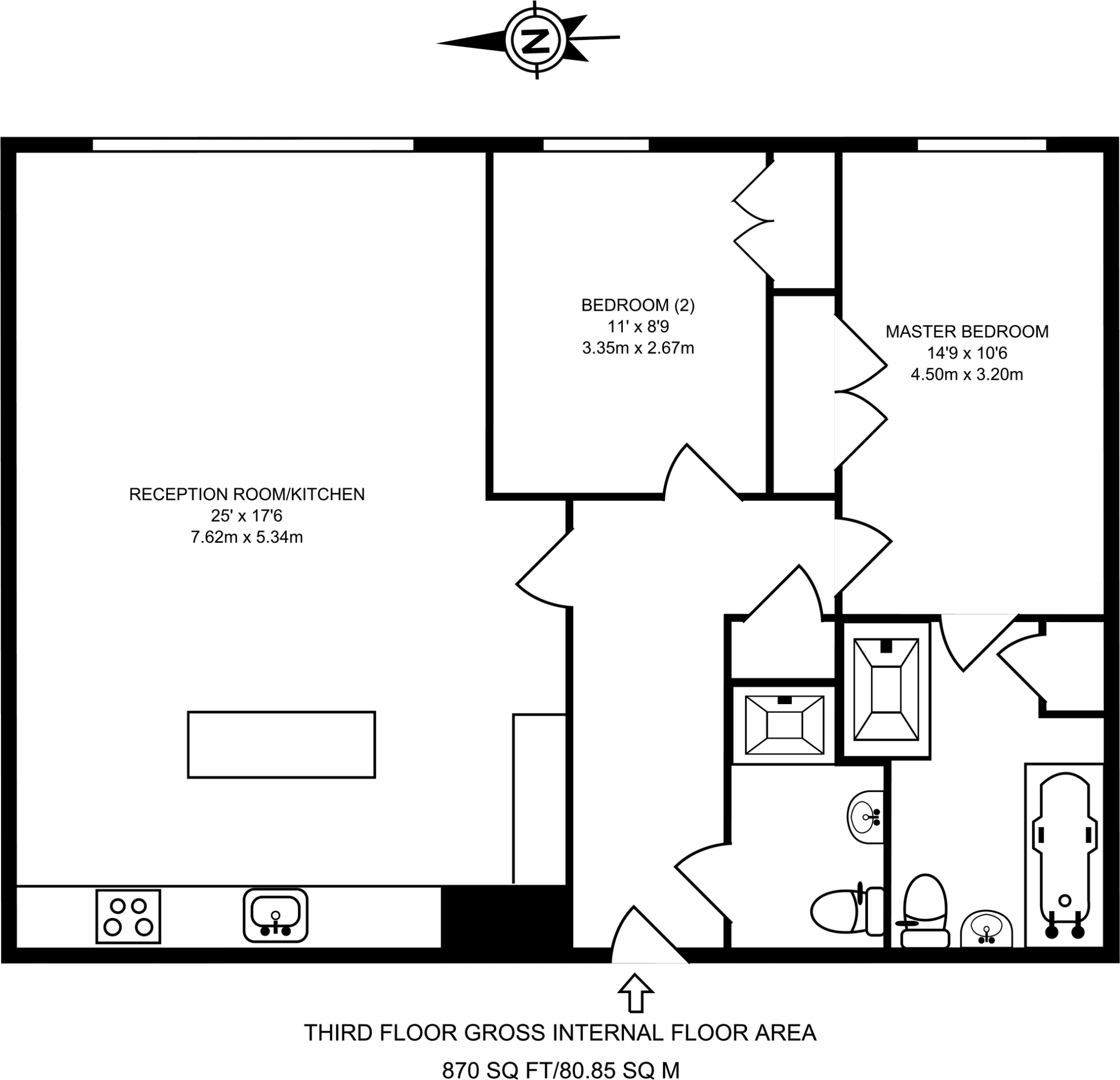
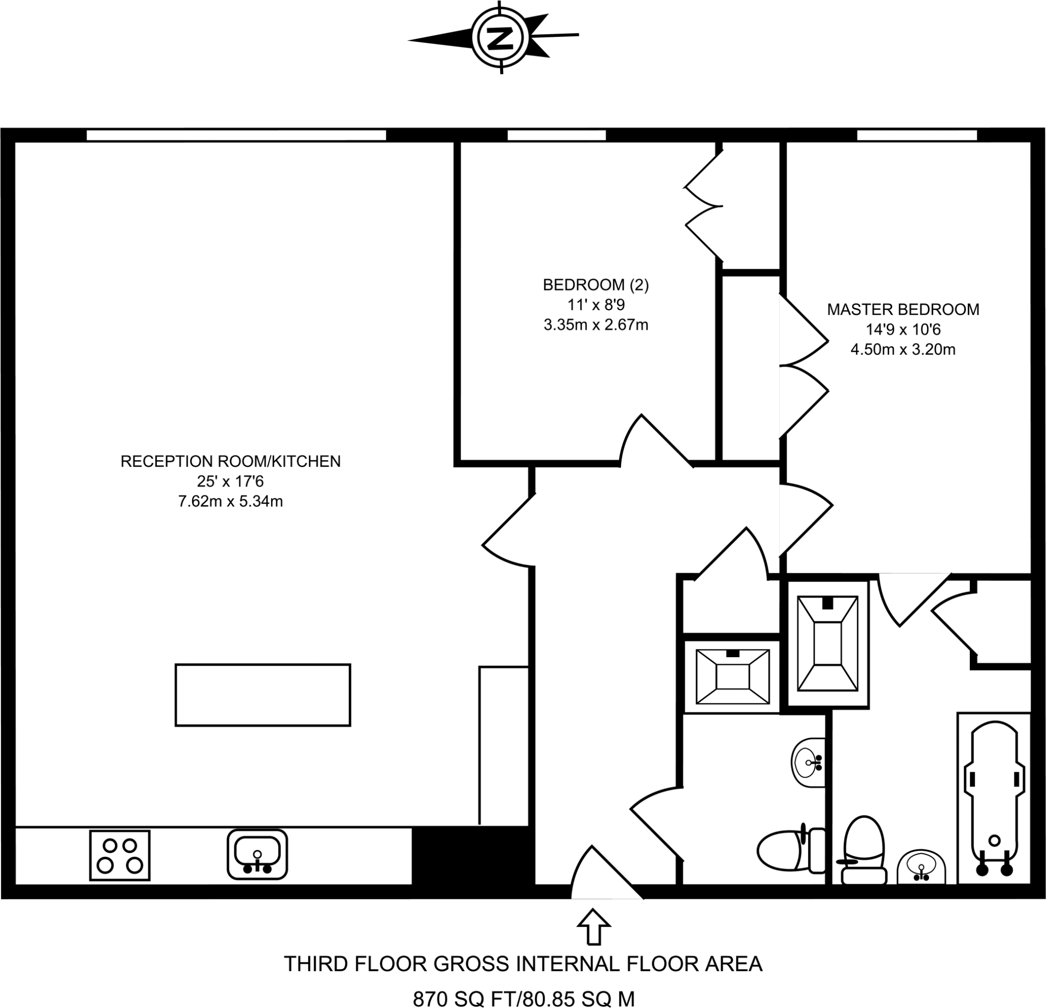
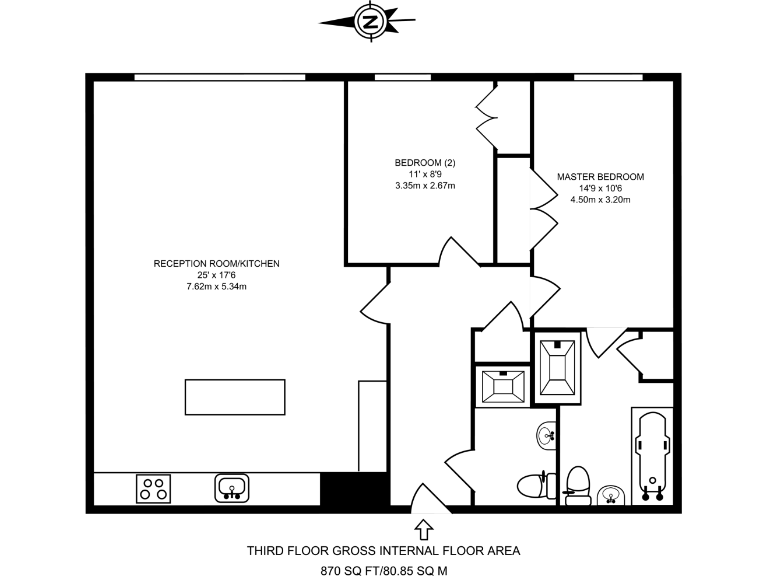
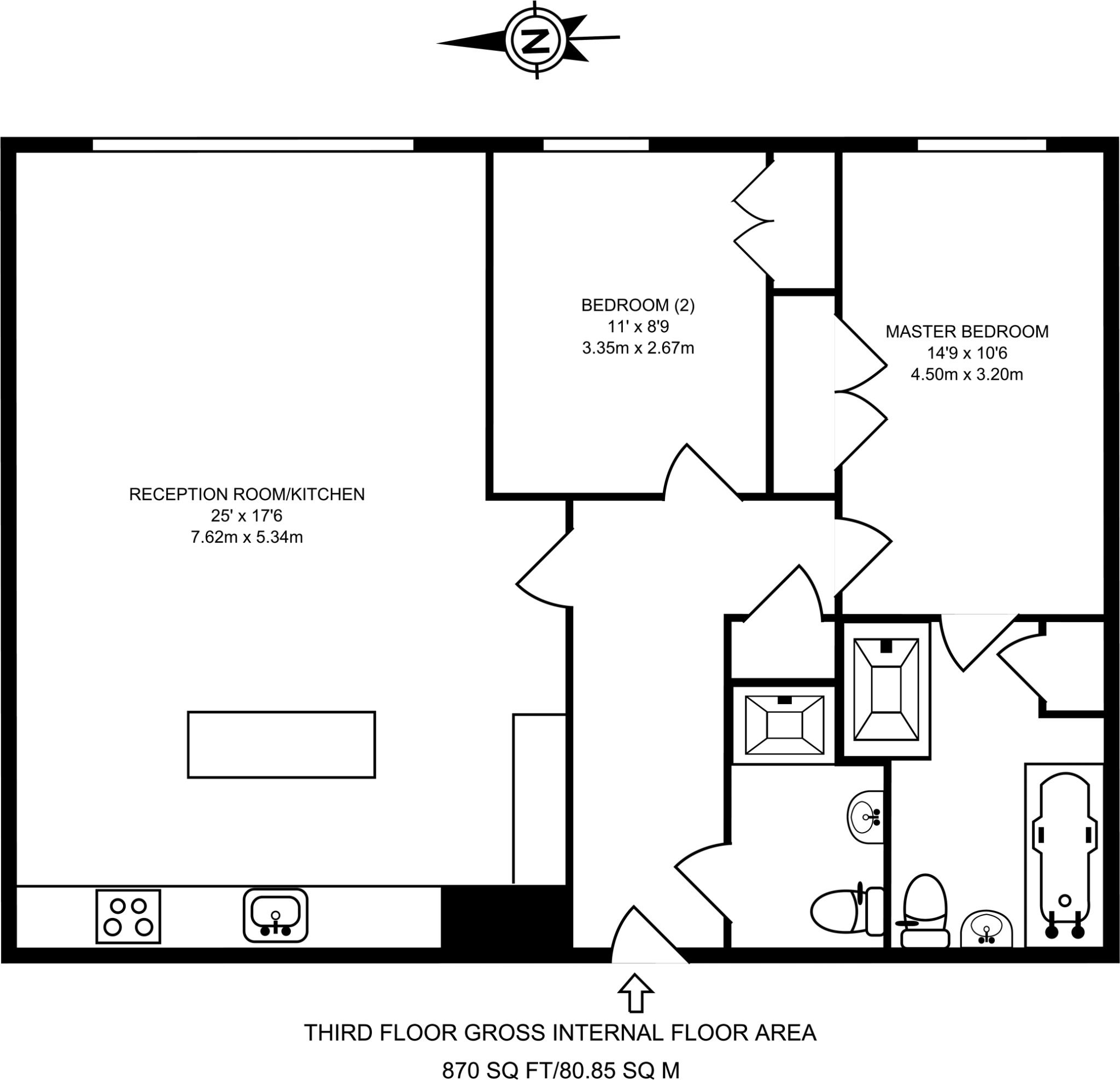
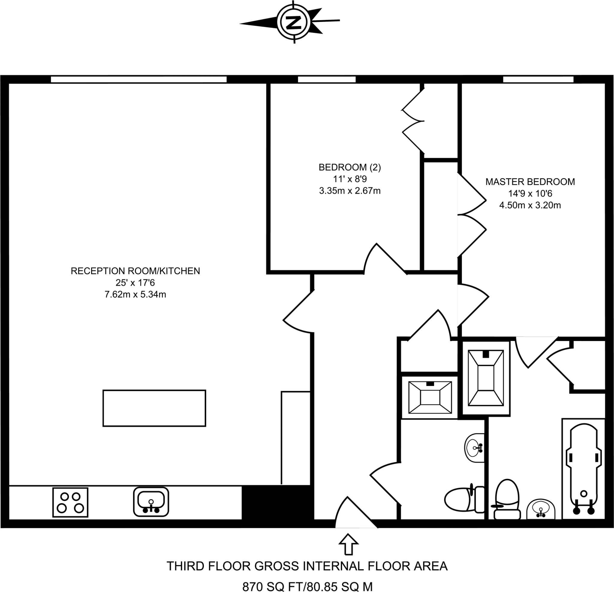
Third-floor flat with lift access and underground parking
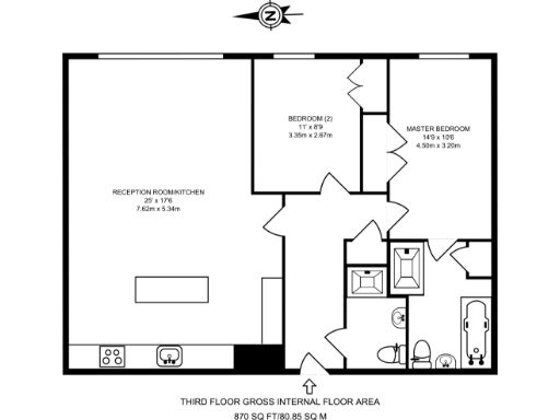
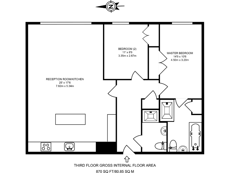
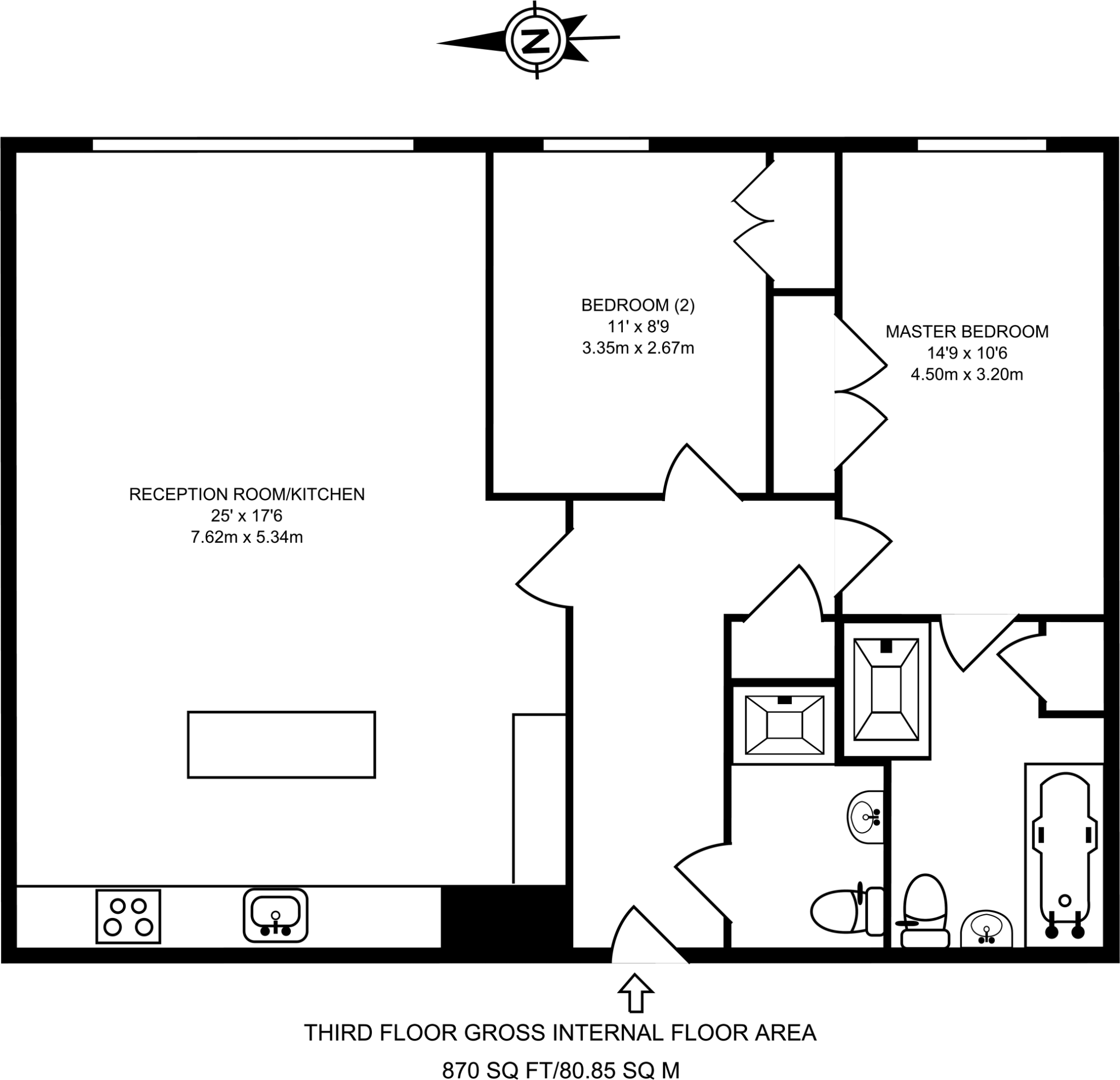
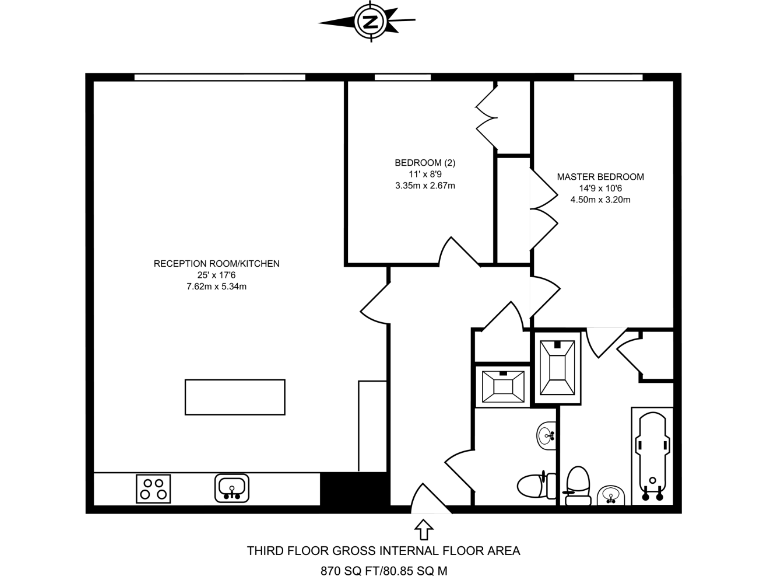
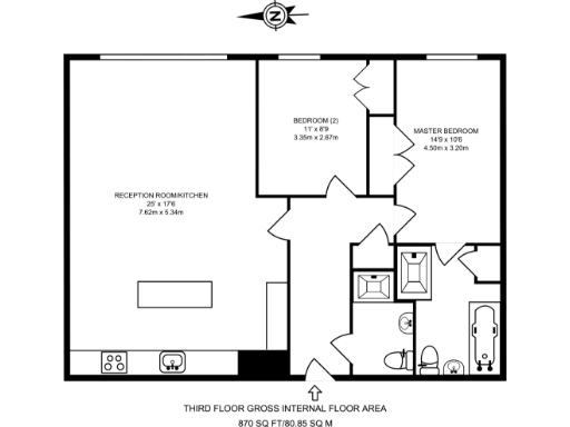
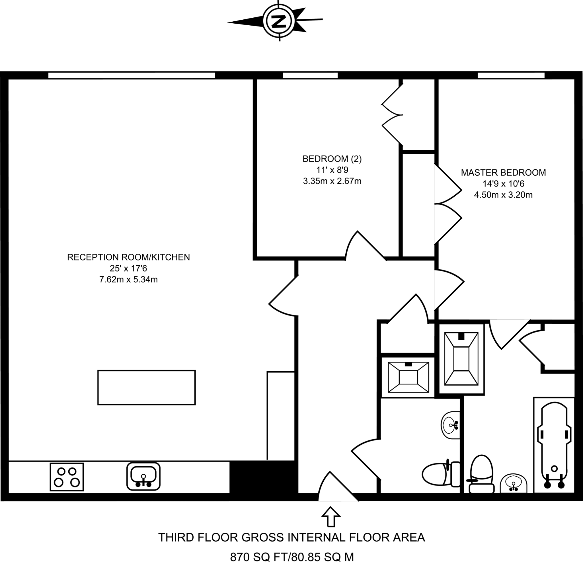
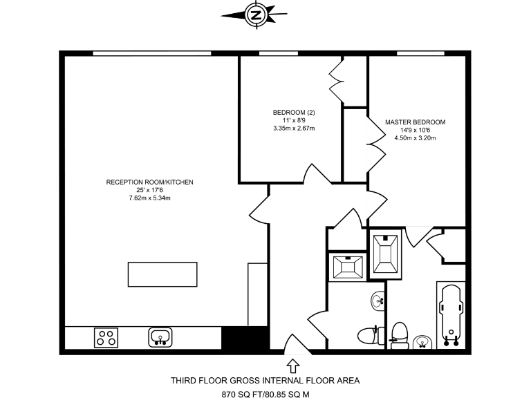
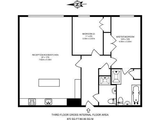
Light-filled two-bedroom apartment on the third floor of a popular riverside development, offering generous open-plan living and an en suite main bedroom. At approximately 870 sq ft, the layout feels spacious for a flat of this age and benefits from lift access and underground off-street parking.

The kitchen/living area is contemporary with integrated appliances, wood flooring and downlights — ready to use with minimal immediate work. The building was constructed around 1996–2002 and has double glazing installed post-2002; heating is mains gas via boiler and radiators.

Practical facts: the property is leasehold with about 100 years remaining, a service charge of £6,500 pa and a ground rent of £250 pa. Broadband speeds and mobile signal are excellent; flood risk is very low and local crime levels are average. The area is inner-city cosmopolitan with strong transport links nearby (Brentford and Gunnersbury stations) and close to shops, restaurants and riverside amenities.

This apartment will suit first-time buyers or investors seeking a modern riverside flat with parking and easy transport access. Buyers seeking low ongoing charges should note the above-average service charge and account for that in running costs.

Property Details

Image Descriptions

Floorplan Description

Rooms

Textual Property Features

Target Audience

AI Tags

Detected Visual Features

EPC Details

Nearby Schools

Nearest Bars And Restaurants

,,,,}

Nearest General Shops

,,}

Nearest Grocery shops

,,}

Nearest Supermarkets

,,}

Nearest Religious buildings

,,}

Nearest Medical buildings

,,,}

Nearest Airports

,,}

Nearest Leisure Facilities

,,,,}

Nearest Tourist attractions

,,}

Nearest Train stations

,,,,}

Nearest Bus stations and stops

,,,,}

Nearest Hotels

,,}

Tags

Local Market Stats

AirBnB Data

Similar Properties

Meta

High Res Images

Compatible Images

Low res Images

Thumbnails

Raw Images

High Res Floorplan Images

Compatible Floorplan Images

Low res Floorplan Images

FloorplanImages Thumbnail

Raw Floorplan Images