WF2 7LR - 6 bed impressive six bedroom detached in Sandal Avenue, WF2…

View on Property Piper

6 bedroom detached house for sale in Sandal Avenue, Sandal, Wakefield, WF2

Summary - 4 Sandal Avenue WF2 7LR

6 bed 3 bath Detached

A rare period home on a private tree-lined avenue with large garage and gardens.
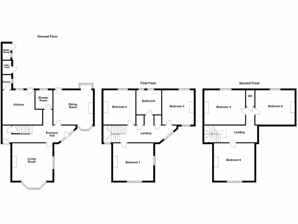
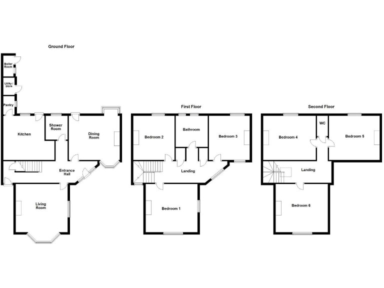
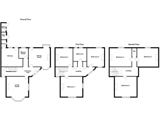
Six double bedrooms across three floors, many original period features
This substantial six-bedroom house on Sandal Avenue combines period charm with family-sized accommodation across three floors. Built in 1908 and retaining original stained glass, fireplaces and high ceilings, the property offers abundant character alongside practical living spaces including a modern fitted kitchen, pantry and useful outbuildings.

Outside there is generous off-road parking, a larger-than-average double garage with workshop, a separate car port and well-maintained front and rear gardens with a block‑paved patio for outdoor dining. The house sits on a large plot in a quiet, tree-lined part of Sandal, close to good schools, Sandal Castle and public transport links.

Buyers should note material and running-cost information plainly: the EPC rating is F23 and the cavity walls are listed as having no insulation (assumed), so energy-efficiency improvements are likely needed. The property is freehold and in Council Tax band F, described as expensive.

Overall this is a characterful, spacious family home with strong period appeal and clear potential for upgrading energy performance and secondary glazing where desired. It will suit a family wanting a distinctive, central Sandal address and scope to invest in modernisation without losing original features.

Property Details

Brochure Descriptions

Image Descriptions

Floorplan Description

Rooms

Textual Property Features

Target Audience

AI Tags

Detected Visual Features

EPC Details

Nearby Schools

Nearest Bars And Restaurants

,,,,}

Nearest General Shops

,,}

Nearest Grocery shops

,,}

Nearest Supermarkets

,,}

Nearest Religious buildings

,,}

Nearest Medical buildings

,,,}

Nearest Airports

}

Nearest Leisure Facilities

,,,,}

Nearest Tourist attractions

,,}

Nearest Train stations

,,,,}

Nearest Bus stations and stops

,,,,}

Nearest Hotels

,,}

Tags

Local Market Stats

Similar Properties

Meta

High Res Images

Compatible Images

Low res Images

Thumbnails

Raw Images

High Res Floorplan Images

Compatible Floorplan Images

Low res Floorplan Images

FloorplanImages Thumbnail

Raw Floorplan Images