L40 9RF - 7 bedroom detached house for sale in Southport Road, Scaris…

View on Property Piper

7 bedroom detached house for sale in Southport Road, Scarisbrick, L40

Summary - 537 SOUTHPORT ROAD SCARISBRICK ORMSKIRK L40 9RF

7 bed 4 bath Detached

Extensive renovated family home with annexe, pool and large plot in desirable Scarisbrick village.
Seven bedrooms plus two-bedroom self-contained annexe
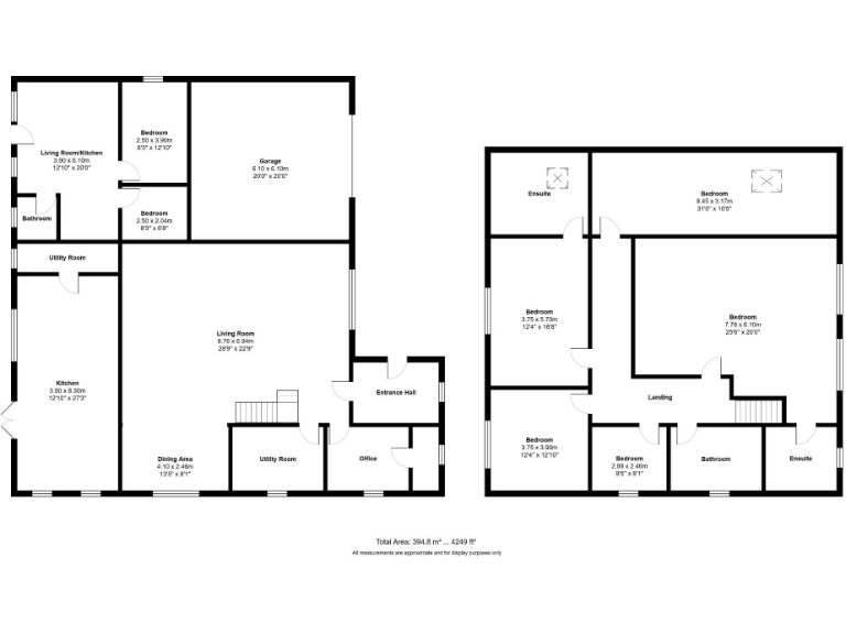
This substantial seven-bedroom detached house on Southport Road offers over 4,000 sq ft of flexible living across the main house and a self-contained two-bedroom annexe. Recently renovated, the property features a modern fitted kitchen with quartz worktops, bright, generous reception rooms, and contemporary bathrooms — all designed for comfortable family living and multi-generational use.

Outside, a very large plot provides a fully enclosed garden, patio entertaining areas and an outdoor heated swimming pool with a new pool boiler and separate plant room. Secure electric gates open to extensive parking and an integrated double garage with direct access to the annexe, making arrivals and storage straightforward for busy households.

Practical points to note: the home sits in Council Tax band G, which reflects higher running costs. Broadband speeds in the area are slow and mobile signal is average — important if you work from home despite the dedicated office space. The pool and grounds will require routine maintenance, appropriate for a property of this size.

For a growing or extended family wanting space, privacy and modern finishes in a semi-rural village setting, this home combines immediate move-in condition with long-term flexibility. Viewing is recommended to appreciate the scale, annexe potential and landscaped plot.

Property Details

Image Descriptions

Floorplan Description

Rooms

Textual Property Features

Target Audience

AI Tags

Detected Visual Features

Nearby Schools

Nearest Bars And Restaurants

,,,,}

Nearest General Shops

,,}

Nearest Grocery shops

,,}

Nearest Supermarkets

,,}

Nearest Religious buildings

,,}

Nearest Medical buildings

,,,}

Nearest Airports

}

Nearest Leisure Facilities

,,,,}

Nearest Tourist attractions

,,}

Nearest Train stations

,,,,}

Nearest Bus stations and stops

,,,,}

Nearest Hotels

,,}

Tags

Local Market Stats

Similar Properties

Meta

High Res Images

Compatible Images

Low res Images

Thumbnails

Raw Images

High Res Floorplan Images

Compatible Floorplan Images

Low res Floorplan Images

FloorplanImages Thumbnail

Raw Floorplan Images