Spacious single-storey home with large private garden and strong upgrade potential.
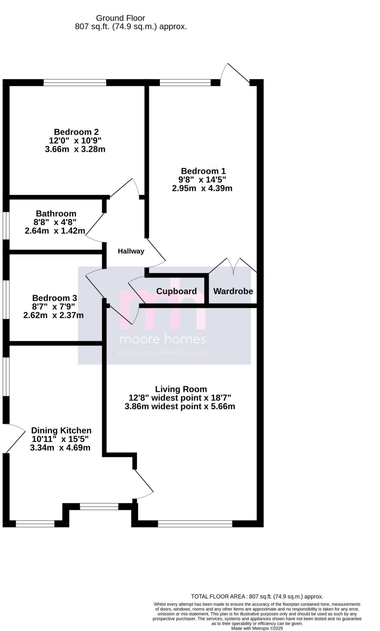
Three bedroom true bungalow, single-storey living
Large rear garden backing onto school playing fields
Detached garage and driveway with ample parking
Loft with conversion potential, subject to permissions
Requires modernisation throughout, scope to add value
Cavity walls as built, no added insulation noted
UPVC double glazing, gas central heating, solar panels
No onward chain; small ground rent of £12
This three-bedroom semi-detached true bungalow sits on a large, private plot in a well-regarded Poynton residential estate. The accommodation is bright and versatile, with a spacious living room, dining kitchen and a large rear garden backing onto Worth Primary School playing fields, giving an unusually private outlook for the area.
The house retains mid-century character and benefits from UPVC double glazing, gas central heating and solar panels. There is a detached garage and driveway for off-street parking. A large loft offers scope for conversion (subject to permissions) and the third bedroom could easily serve as a study for a home worker.
Although structurally sound, the property requires modernisation throughout and offers strong potential for adding value. Notable considerations include cavity walls with no added insulation (as built), an expected programme of updating to kitchen and bathroom finishes, and routine maintenance associated with a house of this age. A small ground rent of £12 applies.
Offered with no onward chain, this bungalow will suit buyers seeking a single-storey family home in a peaceful, affluent neighbourhood who want to personalise and upgrade accommodation to their taste.
3 bedroom detached bungalow for sale in Hazelbadge Close, Poynton, Stockport, Cheshire, SK12 1HD, SK12 — £425,000 • 3 bed • 1 bath • 932 ft²
2 bedroom detached bungalow for sale in ALDER AVENUE, Poynton, SK12 1PY, SK12 — £410,000 • 2 bed • 1 bath • 837 ft²
3 bedroom bungalow for sale in Brookside Avenue, Poynton, Stockport, Cheshire, SK12 1PW, SK12 — £390,000 • 3 bed • 1 bath • 1023 ft²
3 bedroom bungalow for sale in PICKWICK ROAD, Poynton, SK12 1LD, SK12 — £599,950 • 3 bed • 1 bath • 1032 ft²
3 bedroom detached house for sale in ANGLESEY DRIVE, Poynton, SK12 1BU, SK12 — £895,000 • 3 bed • 1 bath • 2080 ft²
4 bedroom detached bungalow for sale in Hazel Drive, Poynton, SK12 — £650,000 • 4 bed • 2 bath • 1306 ft²






















































