DH4 6JH - 2 bed two bedroom semi detached in Houghton And Sunderland…

View on Property Piper

2 bedroom semi-detached house for sale in Murray Avenue, Fencehouses, Houghton Le Spring, DH4

Summary - 7, MURRAY AVENUE DH4 6JH

2 bed 1 bath Semi-Detached

Low-maintenance starter home with auction sale and refurbishment potential.
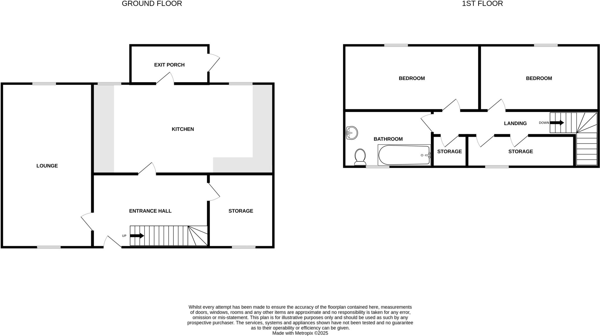
Two double bedrooms with practical layout
Freehold tenure, Council Tax Band A (very cheap)
Low-maintenance front and rear gardens
Gas central heating and double glazing present
Small plot, modest room count — not a large family home
Hallway and some areas need modernisation/refurbishment
Sold via auction — buyer pays buyer pack and reservation fee
Located in an area of high deprivation; rental demand likely
A compact two-bedroom semi in Murray Avenue offered freehold and sold at auction — a straightforward purchase route for cash buyers and mortgage-ready first-timers. The house has two double bedrooms, gas central heating, double glazing and low-maintenance front and rear gardens, making it a practical starter home or rental asset. Local shops and several good-rated primary and secondary schools are within easy reach.

Built in the mid-20th century, the property is presented largely modern throughout but does show areas needing updating — the entrance hall in particular would benefit from refurbishment. The small plot and modest room count suit buyers seeking low upkeep rather than large family living. There is no flood risk; mains gas boiler and radiators provide heating.

Buyers should note this sale is by the Modern Method of Auction. A Buyer Information Pack (£349 inc. VAT) is payable by the winning bidder and a non-refundable Reservation Fee of 4.5% of the purchase price (minimum £6,600 inc. VAT) is required on exchange, in addition to the purchase price. Consider funding and additional auction costs before bidding.

This is a value-priced opportunity in a very deprived wider area where properties can attract strong rental demand or offer scope for modest improvement and resale. If you want a low-maintenance home close to amenities or an investor project with clear running costs, viewings will show the property’s practical strengths and its refurbishment potential.

Property Details

Image Descriptions

Floorplan Description

Rooms

Textual Property Features

Target Audience

AI Tags

Detected Visual Features

EPC Details

Nearby Schools

Nearest Bars And Restaurants

,,,,}

Nearest General Shops

,,}

Nearest Grocery shops

,,}

Nearest Supermarkets

,,}

Nearest Religious buildings

,,}

Nearest Medical buildings

,,,}

Nearest Airports

,}

Nearest Leisure Facilities

,,,,}

Nearest Tourist attractions

,,}

Nearest Train stations

,,,,}

Nearest Bus stations and stops

,,,,}

Nearest Hotels

,,}

Tags

Local Market Stats

Similar Properties

Meta

High Res Images

Compatible Images

Low res Images

Thumbnails

Raw Images

High Res Floorplan Images

Compatible Floorplan Images

Low res Floorplan Images

FloorplanImages Thumbnail

Raw Floorplan Images