**Standout Features:**
- Modern semi-detached new build
- Integrated appliances and flooring package included
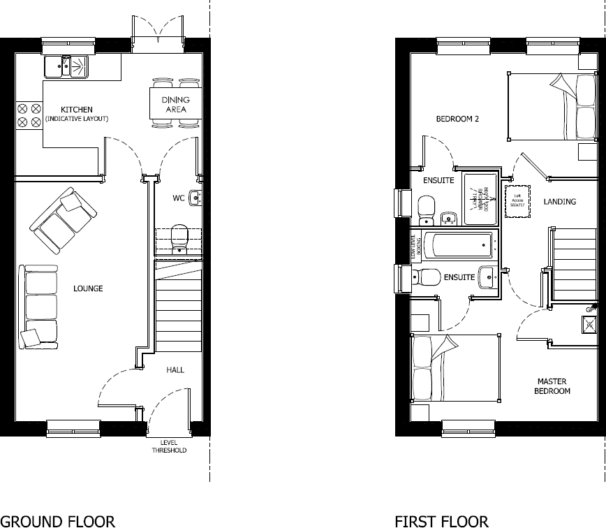
- 2 bedrooms and 1 bathroom with potential for family living
- Off-road parking for two vehicles
- Patio doors leading to a generous rear garden
- Excellent transport links and local amenities nearby
- 10-Year NHBC Warranty for peace of mind
- Service charge of £207.34 (below average)
**Summary:**
Welcome to your new home in the charming village of Donington, where modern design meets tranquil living. This newly constructed semi-detached house spans 732 square feet and features an open-plan living space with a contemporary kitchen boasting integrated appliances and ample natural light. With two spacious bedrooms, there's room for family or guests, ensuring comfort and convenience.
Enjoy the luxury of patio doors that lead you into a bright rear garden—perfect for relaxing outdoors or hosting friends. The property benefits from excellent transport links, making your commute to nearby towns and cities a breeze, while local amenities such as schools, supermarkets, and community facilities cater to your daily needs. The 10-Year NHBC Warranty adds a layer of security for your investment.
Ideal for first-time buyers or families looking for an affordable property in a serene setting, this home invites you to move in this summer. Don’t miss the chance to explore this exciting opportunity—visit the marketing suite open Thursday to Monday from 10-5. Secure your slice of Donington now!
3 bedroom detached house for sale in Towndam Lane,
Donington,
PE11 4TP , PE11 — £265,000 • 3 bed • 1 bath • 1065 ft²
3 bedroom semi-detached house for sale in Towndam Lane,
Donington,
PE11 4TP , PE11 — £227,500 • 3 bed • 1 bath • 910 ft²
2 bedroom semi-detached house for sale in Kilby Court, Donington, Spalding, PE11 — £170,000 • 2 bed • 2 bath • 711 ft²
4 bedroom detached house for sale in Towndam Lane,
Donington,
PE11 4TP , PE11 — £320,000 • 4 bed • 1 bath • 1310 ft²
3 bedroom semi-detached house for sale in Towndam Lane, Donington, Spalding, Lincolnshire, PE11 — £215,000 • 3 bed • 2 bath • 963 ft²
2 bedroom semi-detached house for sale in Kilby Court, Donington, PE11 — £170,000 • 2 bed • 2 bath • 695 ft²


















































