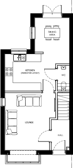
**Standout Features:**
- Spacious 3-bedroom semi-detached new build
- Integrated appliances and flooring package included
- Single garage with off-road parking
- Customizable finishes for kitchen, tiling, and flooring
- Patio doors leading to a private rear garden
- Solar panels for energy efficiency
- Situated in a well-connected village with good transport links to nearby towns
**Potential Downsides:**
- Management charge for estate maintenance starting at £207.34 in April 2025
- Neutral condition allows for personalization but may require additional decorating to your taste
Welcome to your future home in the charming village of Donington! This beautifully designed 3-bedroom semi-detached house seamlessly blends modern living with comfort, featuring integrated appliances and a stylish flooring package throughout. Enjoy the convenience of off-road parking and a garage, complemented by a spacious garden accessed through patio doors—ideal for outdoor gatherings. With excellent transport links to nearby Spalding, Boston, and Grantham, you can relish both tranquility and accessibility.
Local amenities, including schools with good Ofsted ratings, enhance the family-friendly appeal of this property. Plus, you're given the exciting option to personalize your interior finishes, allowing you to truly make this house your own. Don't miss this opportunity to embrace a rural lifestyle with modern amenities—homes like this won't stay on the market for long! Schedule a visit to the marketing suite open Thursday to Monday from 10-5, and envision your future in this lovely community.
4 bedroom detached house for sale in Towndam Lane,
Donington,
PE11 4TP , PE11 — £320,000 • 4 bed • 1 bath • 1310 ft²
2 bedroom semi-detached house for sale in Towndam Lane,
Donington,
PE11 4TP , PE11 — £176,500 • 2 bed • 1 bath • 732 ft²
3 bedroom detached house for sale in Towndam Lane,
Donington,
PE11 4TP , PE11 — £265,000 • 3 bed • 1 bath • 1065 ft²
3 bedroom semi-detached house for sale in Bakewell Street, Donington, Spalding, Lincolnshire, PE11 — £209,950 • 3 bed • 2 bath • 920 ft²
5 bedroom detached house for sale in Bernhards Close, Donington, Spalding, PE11 — £545,000 • 5 bed • 3 bath • 1734 ft²
3 bedroom semi-detached house for sale in Kensington Close, Donington, Spalding, PE11 — £205,000 • 3 bed • 2 bath • 1100 ft²






















































