Large plot and garage, ideal for growing families seeking refurbishment potential.
Large pre‑war Tudor-style semi-detached house with character features
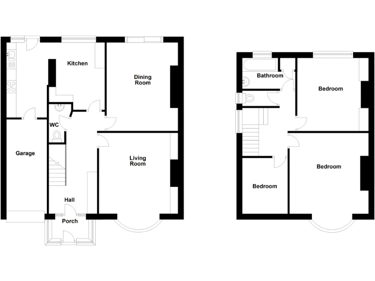
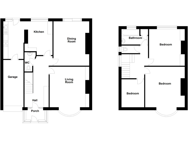
A spacious pre‑war Tudor-style semi with generous rooms and a very large plot, well suited to family living. The layout includes two reception rooms, a kitchen with breakfast area, three bedrooms and a family bathroom — all arranged over two floors with an impressive entrance hall and bay windows that retain character.
The gated front drive and integral garage provide secure off-street parking; the rear garden is a private, lawned space with patio and shed — ideal for children and family entertaining. The location is family-focused, near highly rated schools, local shops, regular bus links and Whitley Bay town and Metro connections.
This home requires updating and refurbishment throughout; the asking price reflects the work needed. Structural features such as gas central heating (combi boiler), double glazing and original fireplaces are present, but modernisation of finishes, kitchen and bathroom is recommended. Buyers seeking a roomy character house with scope to add value will find strong potential here.
Additional positives include low local crime, excellent mobile signal and fast broadband, freehold tenure and a moderate council tax band. Practical points: some cosmetic and updating work required, and redecorating will be needed to realise the home’s full potential.
3 bedroom semi-detached house for sale in Kings Road, Whitley Bay, NE26 — £595,000 • 3 bed • 1 bath • 1581 ft²
3 bedroom semi-detached house for sale in Chollerford Avenue, Whitley Bay, NE25 — £380,000 • 3 bed • 1 bath • 1435 ft²
4 bedroom detached house for sale in Monkseaton Drive,
Whitley Bay, Tyne and Wear,
NE26 3DQ, NE26 — £795,000 • 4 bed • 1 bath • 2331 ft²
3 bedroom detached house for sale in Hastings Avenue, Whitley Bay, NE26 — £610,000 • 3 bed • 2 bath • 1500 ft²
3 bedroom semi-detached house for sale in Eastfield Avenue,
Monkseaton, Whitley Bay,
NE25 8LU, NE25 — £467,950 • 3 bed • 1 bath • 984 ft²
3 bedroom semi-detached house for sale in Willoughby Drive,
Whitley Bay, Tyne & Wear,
NE26 3DY, NE26 — £340,000 • 3 bed • 1 bath • 893 ft²






































































































































