Character home with modern kitchen, garage and low‑maintenance garden close to metro.
- 1930s Tudor Revival semi with original features retained
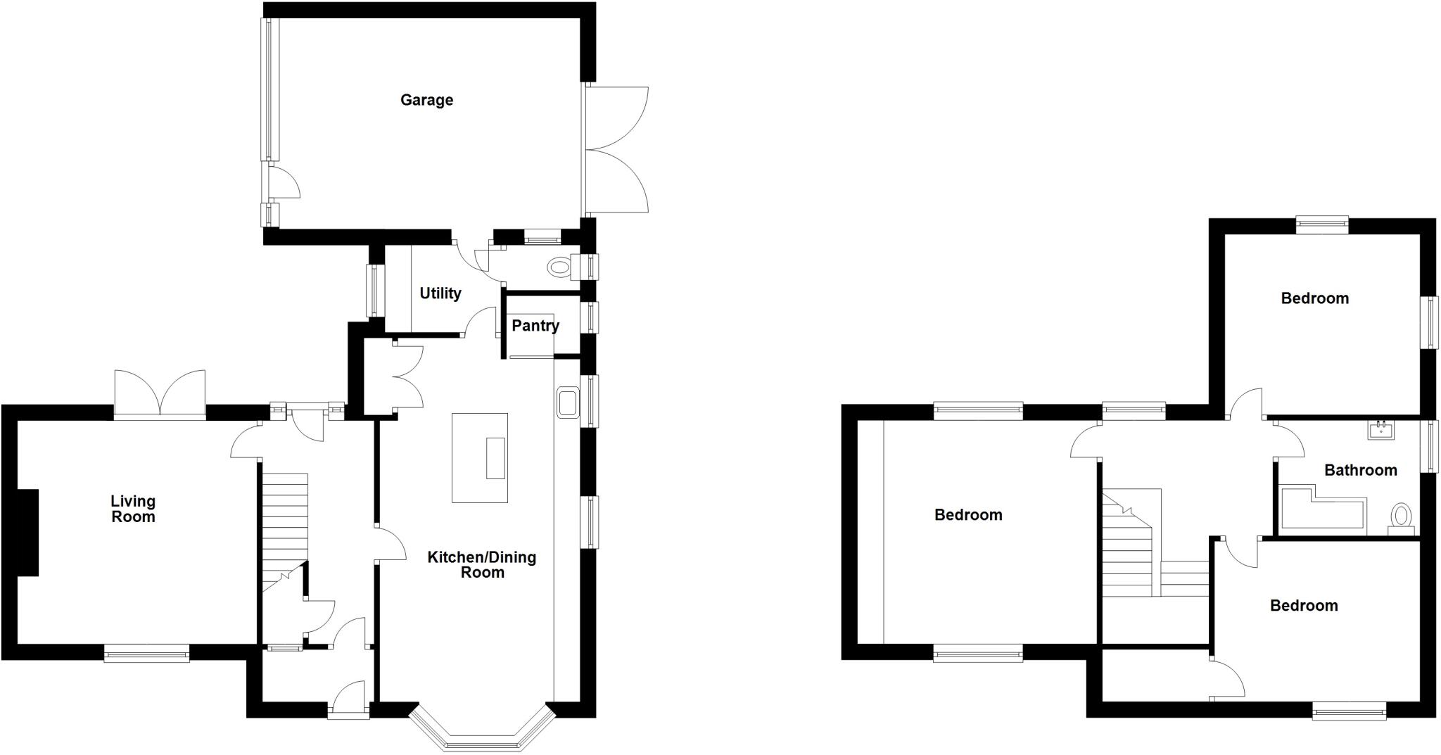
- Superb refitted dining kitchen with island and pantry
- Three double bedrooms; one family bathroom only
- Large corner plot with screened front garden
- Fully paved rear for low maintenance
- Side drive and sizeable single garage with utilities
- Freehold tenure; council tax Band D
- Walking distance to Monkseaton Metro and village amenities
A handsome 1930s Tudor‑style semi on a large corner plot, this double‑fronted home blends original character with modern upgrades. Leaded stained‑glass, picture rails and bay windows sit alongside a superb refitted kitchen, utility and combi boiler — offering a comfortable, move‑in ready family home. The rear is fully paved for low‑maintenance outdoor space, while the screened front garden and side drive give privacy and practical parking with a large garage.
Internally the layout is practical: an entrance lobby and hall lead to a generous lounge and a substantial dining kitchen with island and pantry. Upstairs are three double bedrooms and a single family bathroom; well‑proportioned rooms retain period charm and built‑in storage. The house totals about 984 sq ft and sits in an affluent, well‑connected area close to Monkseaton Village, the Metro, schools and the seafront.
Considerations: there is one bathroom for three bedrooms and the rear garden is paved rather than lawned — ideal for low upkeep but limiting for family gardening. Council Tax Band D applies. Overall this property will suit buyers seeking a character home with modern conveniences in a strong coastal suburb, particularly families wanting good schools and easy transport links.
3 bedroom semi-detached house for sale in Eastfield Avenue, Monkseaton, NE25 — £375,000 • 3 bed • 1 bath • 1000 ft²
3 bedroom semi-detached house for sale in Earsdon Road, West Monkseaton, NE25 — £325,000 • 3 bed • 1 bath • 732 ft²
3 bedroom semi-detached house for sale in Madeira Avenue,
Whitley Bay, Tyne & Wear,
NE26 1SF, NE26 — £440,000 • 3 bed • 1 bath • 2172 ft²
3 bedroom semi-detached house for sale in Belmont Avenue, Monkseaton, NE25 — £425,000 • 3 bed • 1 bath • 1100 ft²
3 bedroom terraced house for sale in Paignton Avenue, Monkseaton, NE25 — £310,000 • 3 bed • 1 bath • 855 ft²
4 bedroom detached house for sale in Monkseaton Drive,
Whitley Bay, Tyne and Wear,
NE26 3DQ, NE26 — £795,000 • 4 bed • 1 bath • 2331 ft²


































































































































































