Spacious family home near seafront with large kitchen-diner and garden.
Spacious 4-bedroom chalet-style detached house with flexible layout
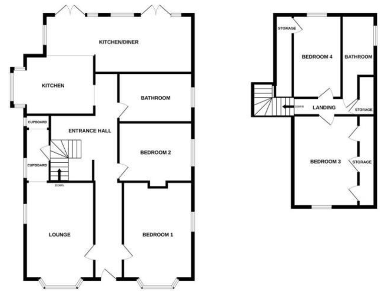
Large 29ft L-shaped kitchen-diner with two patio doors to garden
Two bathrooms; shower room and first-floor family bathroom
Ample off-street parking and private side garden
FTTP broadband and gas combi central heating installed
Large eaves storage with potential for conversion/alteration
Built in 1930s — some rooms will require modernisation/refurbishment
Council tax band above average; no flood risk recorded
This substantial chalet-style detached home sits just off the seafront in Holland-on-Sea, offering a flexible layout that suits a growing family or couple wanting extra space. Bright principal rooms and a large L-shaped kitchen-diner with patio doors make day-to-day living and entertaining straightforward. The property benefits from FTTP broadband, gas central heating (combi boiler) and ample off-street parking.
Four double bedrooms and two bathrooms spread across two floors provide good room for family life and visiting guests. The first-floor bedrooms include large eaves storage with clear potential for conversion or reconfiguration, subject to consent. The private side garden and mature frontage add outdoor privacy and kerb appeal, while Eastcliff playing fields and the seafront are an easy walk away.
The home is an older 1930s-style chalet and will suit buyers prepared to update some areas to modern tastes. While the bathroom and shower room are serviceable and partly modern, other parts of the house show classic period fittings and will benefit from refurbishment. Council tax is above average; there are no recorded flood risks. Local schools are rated Good, making this a practical family location.
4 bedroom detached house for sale in Fleetwood Avenue, Holland-on-Sea, CO15 — £425,000 • 4 bed • 2 bath
6 bedroom detached house for sale in Manor Way, Holland on Sea, CO15 — £500,000 • 6 bed • 2 bath
4 bedroom detached house for sale in Canterbury Road, Holland on Sea, CO15 — £375,000 • 4 bed • 2 bath • 1507 ft²
4 bedroom detached house for sale in Suffolk Close, Holland-on-Sea, Clacton-on-Sea, Essex, CO15 — £375,000 • 4 bed • 3 bath • 1596 ft²
4 bedroom detached house for sale in Frinton Road, Holland on Sea, CO15 — £425,000 • 4 bed • 2 bath • 1535 ft²
3 bedroom bungalow for sale in Dulwich Road, Holland on Sea, CO15 — £500,000 • 3 bed • 2 bath • 1463 ft²


































































































































