Large rooms, south garden and garage close to beaches and schools.
Within sight of the seafront and local amenities
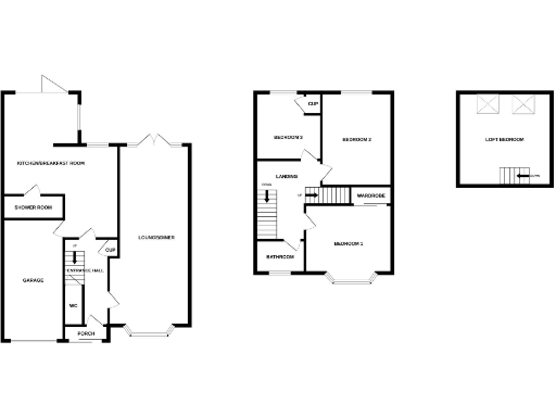
Set within sight of the seafront, this 1930s detached home offers spacious family living across multiple levels. The 28'6 lounge/diner with a brick fireplace and log burner and the extended 20'6 x 15'9 kitchen/breakfast room with granite worktops and bifold doors create bright, adaptable living space for everyday life and entertaining. The southerly-facing rear garden receives good sun and the driveway plus garage with electric roller door provide convenient off-street parking and storage.
Accommodation comprises three double bedrooms on the first floor, a refitted shower room and cloakroom on the ground floor, and a sizeable 14' loft bedroom accessed from the first-floor landing (plumbing in place for an en-suite). The house benefits from a recently installed pressurised heating and water system, mains gas boiler and radiators, double glazing and an EPC rated C.
Practical points to note: the property was built in the 1930s so buyers should expect period construction details and some age-related maintenance. The loft conversion already provides generous space but completing an en-suite will require additional work. Double glazing install date is unknown. Tenure is freehold and council tax Band D.
Location strengths include a village atmosphere with shops, eateries and good local schools, plus direct access to rejuvenated beaches and local amenities. This home suits a family seeking generous rooms and outdoor space close to the coast, with scope to update or personalise the loft and some internal finishes.
3 bedroom detached house for sale in The Esplanade, Holland on Sea, CO15 — £700,000 • 3 bed • 3 bath • 1448 ft²
4 bedroom detached house for sale in Dulwich Road, Holland-on-Sea, Clacton-on-Sea, Essex, CO15 — £575,000 • 4 bed • 3 bath • 2451 ft²
4 bedroom detached house for sale in Bournemouth Road, Holland on Sea, CO15 — £425,000 • 4 bed • 2 bath • 1604 ft²
4 bedroom detached house for sale in Ingarfield Road, Holland-on-Sea, Clacton-on-Sea, Essex, CO15 — £590,000 • 4 bed • 2 bath • 2323 ft²
4 bedroom detached house for sale in Manor Way, Holland-on-Sea, CO15 — £500,000 • 4 bed • 2 bath • 1742 ft²
4 bedroom detached house for sale in The Chase, Holland-On-Sea, CO15 — £500,000 • 4 bed • 2 bath • 1066 ft²






































































