Contemporary town-centre living moments from shops, schools and the river.
Three bedrooms and two bathrooms across three floors
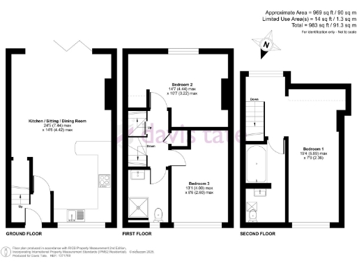
This recently refurbished mid-terrace townhouse sits just 450m from Henley town centre, offering practical family living with modern finishes. The ground floor flows as an open-plan kitchen, living and dining area with full-width bi-folding doors that open onto a low-maintenance courtyard — good for indoor/outdoor summer living and secure bike storage.
Accommodation is arranged over three floors: two double bedrooms and a shower room on the first floor, plus a full second-floor primary bedroom with double aspect windows and an en-suite. Key mechanical and finish items have been renewed, including a new first-floor bathroom, updated kitchen appliances and carpets, and a complete reroofing completed in December 2024. The property benefits from double glazing and an EPC rating of C.
Practical points to note: the plot is modest with a small paved garden and kerbside parking only. The exterior shows wear and would benefit from some cosmetic updating. Walls are cavity-built with assumed no added insulation — further insulation improvement could reduce running costs. The house is freehold and offered with no onward chain, making it straightforward to move into or let out.
For families seeking proximity to Henley’s schools, shops and riverside amenities, this townhouse offers a largely move-in-ready layout combined with scope for minor exterior and energy-efficiency improvements. It will suit buyers who prioritise location and renovated living space over a large garden or private parking.
3 bedroom terraced house for sale in King James Way, Henley-on-Thames, Oxfordshire, RG9 — £475,000 • 3 bed • 1 bath • 600 ft²
3 bedroom terraced house for sale in Upton Close, Henley-On-Thames, RG9 — £450,000 • 3 bed • 1 bath • 1128 ft²
4 bedroom end of terrace house for sale in Kings Road, Henley-on-Thames, Oxfordshire, RG9 — £1,000,000 • 4 bed • 2 bath • 1542 ft²
3 bedroom terraced house for sale in Upton Close, Henley On Thames, RG9 — £475,000 • 3 bed • 2 bath • 1016 ft²
3 bedroom end of terrace house for sale in Gravett Close, Henley-on-Thames, Oxfordshire, RG9 — £475,000 • 3 bed • 1 bath • 847 ft²
3 bedroom terraced house for sale in Milton Close, Henley-On-Thames, RG9 — £665,000 • 3 bed • 1 bath • 1252 ft²


























































































