RG9 1BU - 3 bedroom terraced house for sale in Upton Close, HenleyOnT…

View on Property Piper

3 bedroom terraced house for sale in Upton Close, Henley-On-Thames, RG9

Summary - 54 UPTON CLOSE HENLEY-ON-THAMES RG9 1BU

3 bed 1 bath Terraced

Three-bedroom Henley terrace with south-facing courtyard, parking and scope to modernise.
South-facing secluded courtyard garden with gated rear access
Driveway parking plus access to additional parking spaces
Loft-converted principal bedroom; en-suite potential
Modern family bathroom fitted approx. three years ago
Fitted kitchen with integrated appliances and good storage
Downstairs WC and useful under-stairs storage
Exterior maintenance required; moss on roof and façade visible
Cavity walls assumed uninsulated — opportunity for energy improvements
Set in a desirable Henley-on-Thames location, this three-bedroom mid-20th-century terrace offers a practical family layout and clear potential to add value. The living/dining room opens via sliding doors onto a sunny south-facing courtyard, creating an easy indoor–outdoor flow for children and weekend entertaining. Driveway parking and gated access to additional spaces are convenient for commuters and family vehicles.

The house is ready to live in with a modern family bathroom installed around three years ago, a fitted kitchen with integrated appliances, and a loft-converted principal bedroom that could accommodate an en-suite subject to planning and installation. On the ground floor there is a useful WC and under-stairs storage, and the well-lit kitchen provides generous wall and base units.

Practical buyers should note the property needs external maintenance — moss growth and areas of wear to the roof and elevations are visible — and the cavity walls appear uninsulated (assumed). There is scope for internal modernisation in parts of the kitchen and some fittings, which presents an opportunity for improvement rather than a requirement to move in immediately.

This freehold terrace sits within walking distance of the town centre, schools including a highly regarded secondary option, and riverside amenities. It will suit growing families seeking a convenient Henley base with short-term upgrade potential or buyers looking to enhance value through straightforward refurbishments.

Property Details

Image Descriptions

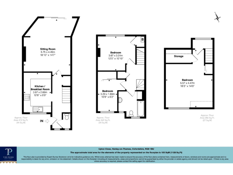
Floorplan Description

Rooms

Textual Property Features

Target Audience

AI Tags

Detected Visual Features

EPC Details

Nearby Schools

Nearest Bars And Restaurants

,,,,}

Nearest General Shops

,,}

Nearest Grocery shops

,,}

Nearest Supermarkets

,,}

Nearest Religious buildings

,,}

Nearest Medical buildings

,,,}

Nearest Airports

}

Nearest Leisure Facilities

,,,,}

Nearest Tourist attractions

,,}

Nearest Train stations

,,,,}

Nearest Bus stations and stops

,,,,}

Nearest Hotels

,,}

Tags

Local Market Stats

AirBnB Data

Similar Properties

Meta

High Res Images

Compatible Images

Low res Images

Thumbnails

Raw Images

High Res Floorplan Images

Compatible Floorplan Images

Low res Floorplan Images

FloorplanImages Thumbnail

Raw Floorplan Images