Extended contemporary five-bed with sunny garden and impressive master suite.
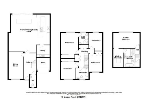
Five bedrooms including impressive second-floor master suite with walk-in wardrobe and en-suite
Stunning extended open-plan kitchen/dining/family room with large island and bi-fold doors
Newly renovated throughout; underfloor heating in principal ground-floor areas
Off-street parking for one car and powered store/garage with boiler
South-facing, low-maintenance landscaped garden arranged over two tiers
EV charging point and fast broadband; excellent mobile signal
Medium flood risk for the area — buyers should verify insurance implications
Local school ratings are mixed; some nearby schools rated inadequate or require improvement
This recently extended and newly renovated five-bedroom detached house offers generous, contemporary family living over three floors. The ground floor centres on a bright, open-plan kitchen/dining/family room with a large island, skylights and bi-fold doors opening to a south-facing garden — ideal for entertaining and everyday family use. Practical additions include a separate utility, cloakroom, underfloor heating in key rooms and an EV charging point.
The first floor provides four bedrooms (one with an en-suite) and a family bathroom, while the impressive second-floor master suite includes a walk-in wardrobe and a large en-suite with freestanding bath and walk-in shower. Built c.2012 or later, the home benefits from mains gas central heating, modern double glazing and good built-in storage throughout.
Externally there is off-street parking for one car, a powered store/garage with the boiler, and a well-planned, low-maintenance landscaped garden arranged over two tiers with paved patio and artificial grass. The property sits in a suburban area close to local schools and town amenities, with fast broadband and excellent mobile signal.
Notable points to consider: the plot and overall house are average-sized for the layout, there is a medium flood risk for the area, and local school ratings are mixed (some nearby schools rated good, while one is rated inadequate and another requires improvement). Parking is for a single vehicle on the driveway. Interested buyers should verify services and fittings themselves.
5 bedroom detached house for sale in Cheriswood Avenue, Exmouth, EX8 — £539,950 • 5 bed • 2 bath • 1625 ft²
5 bedroom detached house for sale in Hulham Vale, Exmouth, EX8 — £650,000 • 5 bed • 3 bath • 1572 ft²
5 bedroom semi-detached house for sale in Lovering Close, Exmouth, EX8 — £365,000 • 5 bed • 2 bath • 1216 ft²
5 bedroom detached house for sale in Exmouth, Devon, EX8 — £1,500,000 • 5 bed • 4 bath • 3626 ft²
6 bedroom detached house for sale in Exmouth, EX8 — £1,300,000 • 6 bed • 4 bath • 4623 ft²
4 bedroom detached house for sale in Heatherdale, Exmouth, EX8 — £695,000 • 4 bed • 1 bath • 1464 ft²






























































































