**Standout Features:**
- Detached two-bedroom bungalow in a sought-after Ickenham location
- Chain-free sale, allowing for quick possession
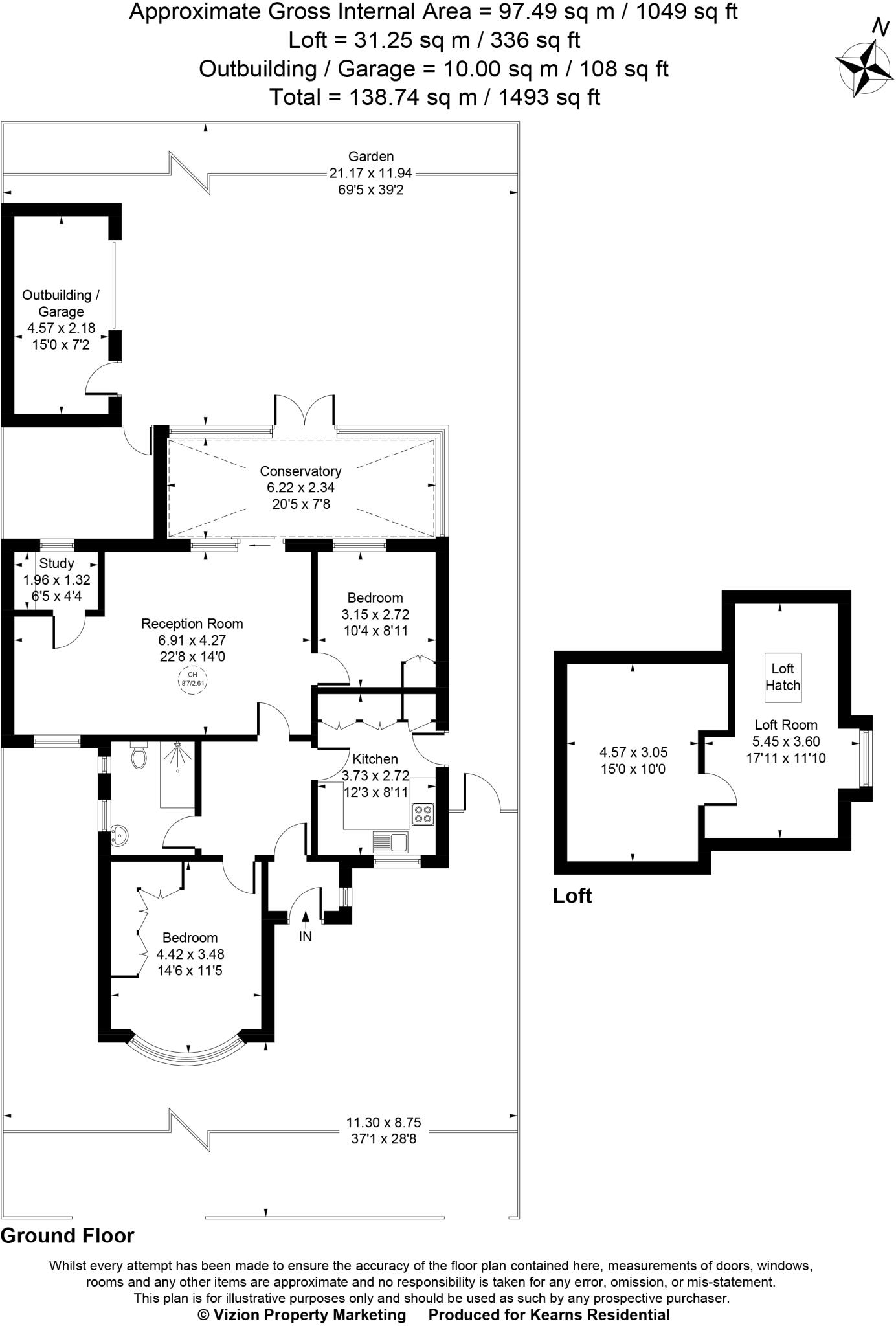
- Generous 1,049 sq. ft of internal space
- Versatile office/study room and conservatory
- Outbuilding/garage offers additional storage or renovation potential
- Excellent potential for extension (subject to planning permission)
- In need of modernization, presenting a fantastic project opportunity
This charming detached bungalow in the desirable Ickenham area offers an exciting opportunity for first-time buyers, investors, or families looking to create their dream home. With a spacious 1,049 sq. ft layout, the property includes two generously sized bedrooms, a versatile study, and a bright conservatory that opens up to the substantial garden—perfect for outdoor living and family activities.
Located on a peaceful street and within easy walking distance of local amenities and the tube station, you will benefit from a tranquil residential lifestyle while enjoying excellent transport links. While the bungalow requires modernization, this presents the perfect canvas for you to infuse your style and preferences, with the potential for future expansions (subject to consent). Enjoy secure, neighborly surroundings in an affluent community with low crime rates, reputable schools, and fast broadband speeds. Don't miss out on this unique chance to secure a property in a flourishing area with considerable potential—seize the opportunity to make it your own today!
2 bedroom detached bungalow for sale in Kenbury Close, Ickenham, UB10 — £775,000 • 2 bed • 1 bath • 1033 ft²
2 bedroom semi-detached bungalow for sale in Bushey Close, Ickenham, UB10 — £550,000 • 2 bed • 1 bath • 848 ft²
3 bedroom bungalow for sale in Copthall Road West, Ickenham, Uxbridge, UB10 — £750,000 • 3 bed • 2 bath • 1356 ft²
2 bedroom detached bungalow for sale in Elgar Close, Ickenham, UB10 — £685,000 • 2 bed • 1 bath • 900 ft²
2 bedroom bungalow for sale in Hoylake Crescent, Ickenham, Uxbridge, UB10 — £675,000 • 2 bed • 1 bath • 922 ft²
3 bedroom detached bungalow for sale in Parkfield Road, Ickenham, UB10 — £700,000 • 3 bed • 1 bath • 1392 ft²














































































