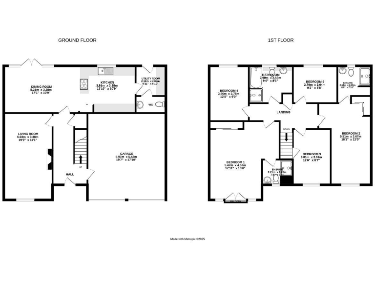
**Key Features:**
- Stunning five-bedroom detached home in sought-after Murieston area.
- Bright front-facing lounge with modern decor.
- Open-plan kitchen/dining space features high-spec finishes and integrated appliances.
- Two master bedrooms with en-suites plus three additional well-sized bedrooms.
- Expansive rear garden, ideal for entertaining and children's play.
- Private driveway and double garage for ample parking.
- Close proximity to schools, transport links, and local amenities.
**Property Summary:**
Nestled in the desirable Murieston area of Livingston, this beautifully presented five-bedroom detached house offers a blend of elegance and comfort, perfect for modern family living. Spanning a spacious 3,184 square feet, the home features a bright, contemporary lounge and a stunning open-plan kitchen/dining area, designed for culinary enthusiasts and social gatherings alike. The property boasts not one, but two luxurious en-suites and additional family-friendly spaces, with ample room for guests or a dedicated home office.
The generous rear garden serves as a tranquil retreat for outdoor dining or children's play, complemented by a monoblock driveway and double garage for your convenience. Excellent local schools, swift rail links to Edinburgh and Glasgow, and nearby parks enhance this property's appeal, making it an outstanding opportunity for families or investors looking for a turnkey home in a thriving neighborhood. However, be mindful that the area has seen lower socioeconomic indicators, which may be a consideration for some buyers. This is a rare find in Livingston—secure your viewing today!
5 bedroom detached house for sale in Carnethy Walk, Livingston, EH54 — £600,000 • 5 bed • 2 bath • 2545 ft²
5 bedroom detached house for sale in Middlewood Park, Livingston, EH54 — £550,000 • 5 bed • 4 bath • 3025 ft²
5 bedroom detached house for sale in Tulloch Court, Livingston Village, EH54 7FP, EH54 — £350,000 • 5 bed • 3 bath • 1435 ft²
5 bedroom detached house for sale in Thirlfield Wynd, Livingston, EH54 — £320,000 • 5 bed • 3 bath • 1399 ft²
4 bedroom detached house for sale in Bankton Avenue, Livingston, West Lothian, EH54 — £340,000 • 4 bed • 3 bath • 992 ft²
5 bedroom detached house for sale in Brotherton Wood, Bellsquarry, Livingston, EH54 — £480,000 • 5 bed • 4 bath • 1905 ft²






























































































