Spacious rural home with paddock and outbuildings, ideal for families and hobby farmers.
3 double bedrooms with family bathroom and downstairs shower room
Approximately 1.5 acres of gardens, paddock and mature planting
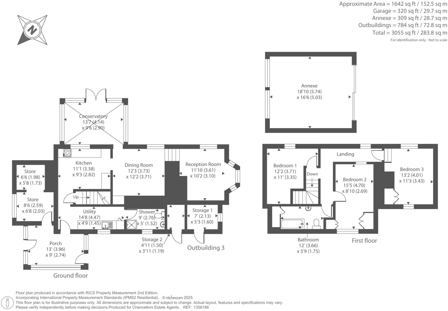
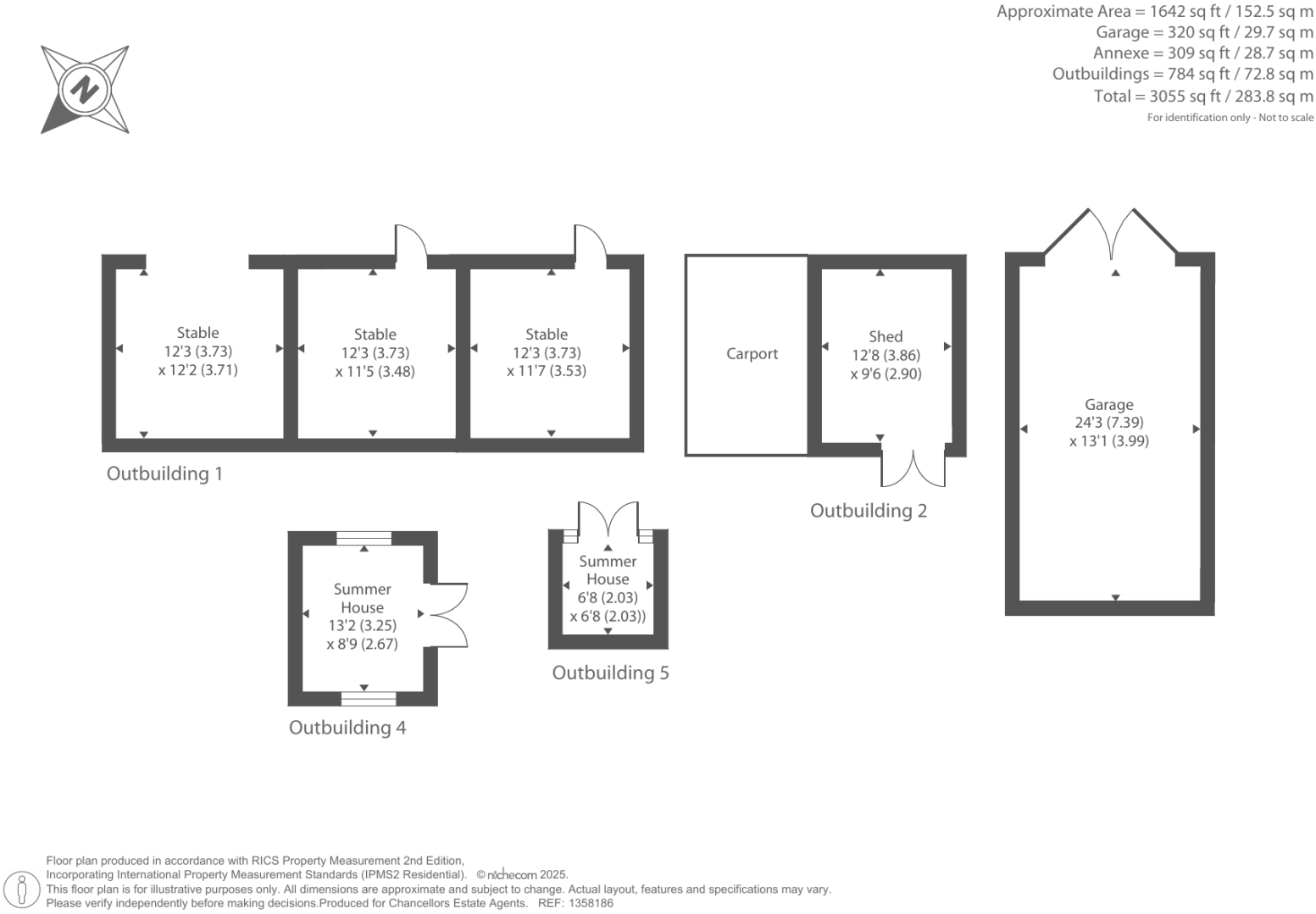
Large overall footprint c.3,055 sq ft; c.18 rooms total
Dual-aspect living room with working log burner; conservatory views
Multiple outbuildings including summer and winter houses
Detached stable block with 3 stables — requires repair work
Driveway parking, detached garage and carport for multiple vehicles
Rural hamlet location; average mobile signal, fast broadband
Set within the quiet hamlet of Stansbatch, this detached three-double-bedroom cottage occupies approximately 1.5 acres of private gardens and paddock. The house combines character features — exposed beams, stone wall, and a log burner — with generous living space spread across multiple rooms and levels, making it well suited to a family seeking rural living with scope for hobbies or animals.
On the ground floor the property offers an L/U-shaped country kitchen linking to a dining room, a dual-aspect living room with a working log burner, conservatory overlooking the rear gardens, utility room and a downstairs shower room. Upstairs there are three double bedrooms, including a master with built-in wardrobes, and a family bathroom. The overall footprint is large (c.3,055 sq ft), with roughly 18 rooms in total, offering flexibility for home offices, hobbies or guest accommodation.
Externally the plot is a major asset: lawns, mature shrubbery, various outbuildings (summer house, winter house with its own log burner), a paddock and a detached stable block with three stables. There is driveway parking for multiple cars, a carport and a detached garage. Broadband speeds are reported fast, crime is very low and there is no flood risk.
Buyers should note practical maintenance matters: the stable block requires repair work, and several outbuildings may need upkeep or modernisation. The hamlet location delivers rural tranquillity but average mobile signal and a remoter-community setting mean amenities are not immediate. Overall, this property suits a family or rural lifestyle buyer seeking space, character and outdoor scope, willing to carry out some remedial work to fully realise the site’s potential.
3 bedroom semi-detached house for sale in Felhampton, Church Stretton, SY6 — £600,000 • 3 bed • 2 bath • 2707 ft²
4 bedroom detached house for sale in Stoke Prior, Herefordshire, HR6 — £850,000 • 4 bed • 3 bath • 2829 ft²
4 bedroom detached house for sale in Rushock, Kington, Herefordshire,, HR5 — £575,000 • 4 bed • 1 bath • 1473 ft²
7 bedroom detached house for sale in Coombes Moor, Presteigne, Herefordshire, LD8 — £950,000 • 7 bed • 3 bath • 4045 ft²
3 bedroom cottage for sale in Shirlheath, Kingsland, Herefordshire, HR6 — £550,000 • 3 bed • 2 bath • 1388 ft²
3 bedroom detached house for sale in Cobnash, Kingsland, Herefordshire, HR6 — £325,000 • 3 bed • 2 bath • 1246 ft²






























































































