Bright two-bedroom apartment moments from theatres, shops and transport links..
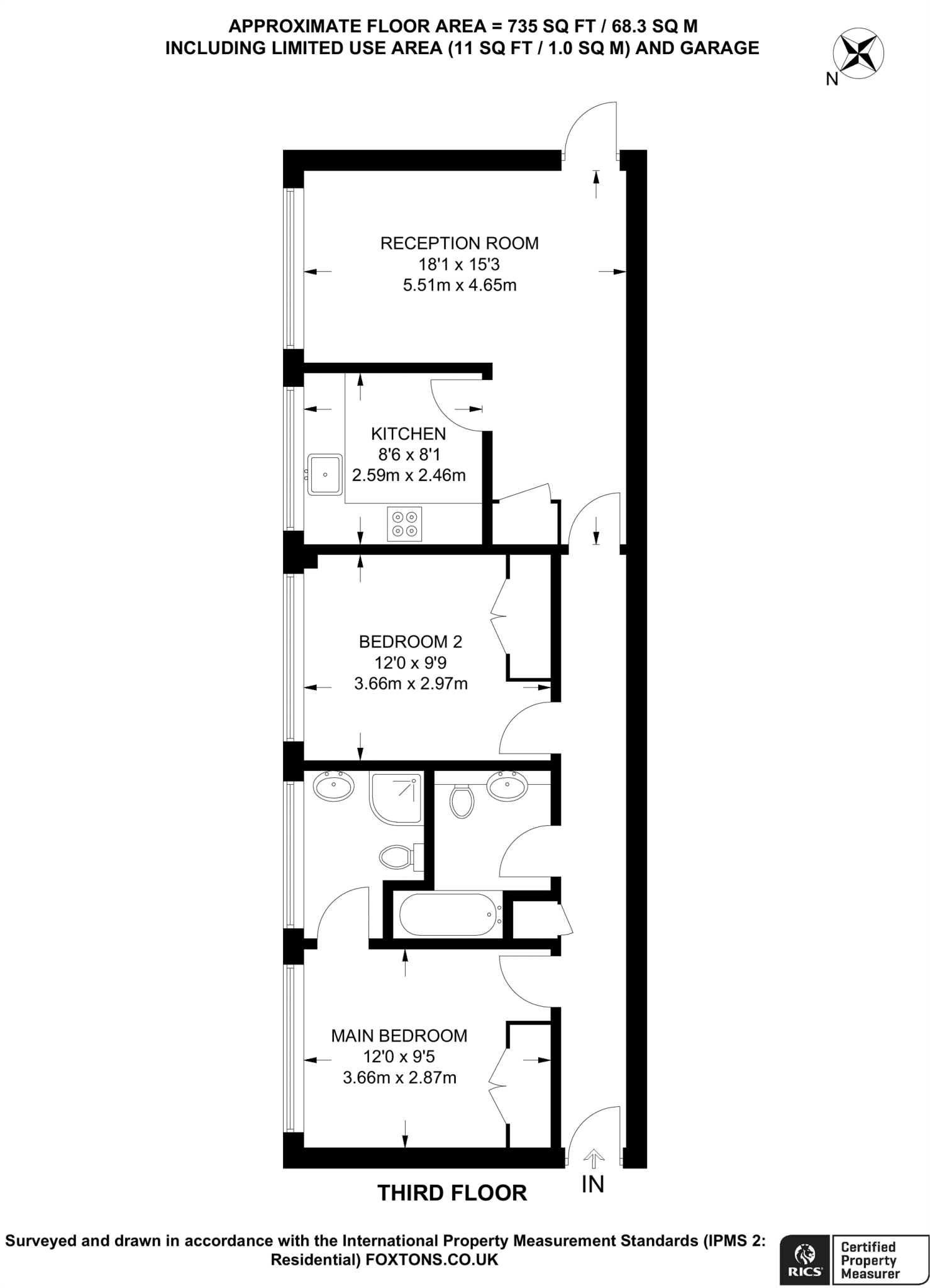
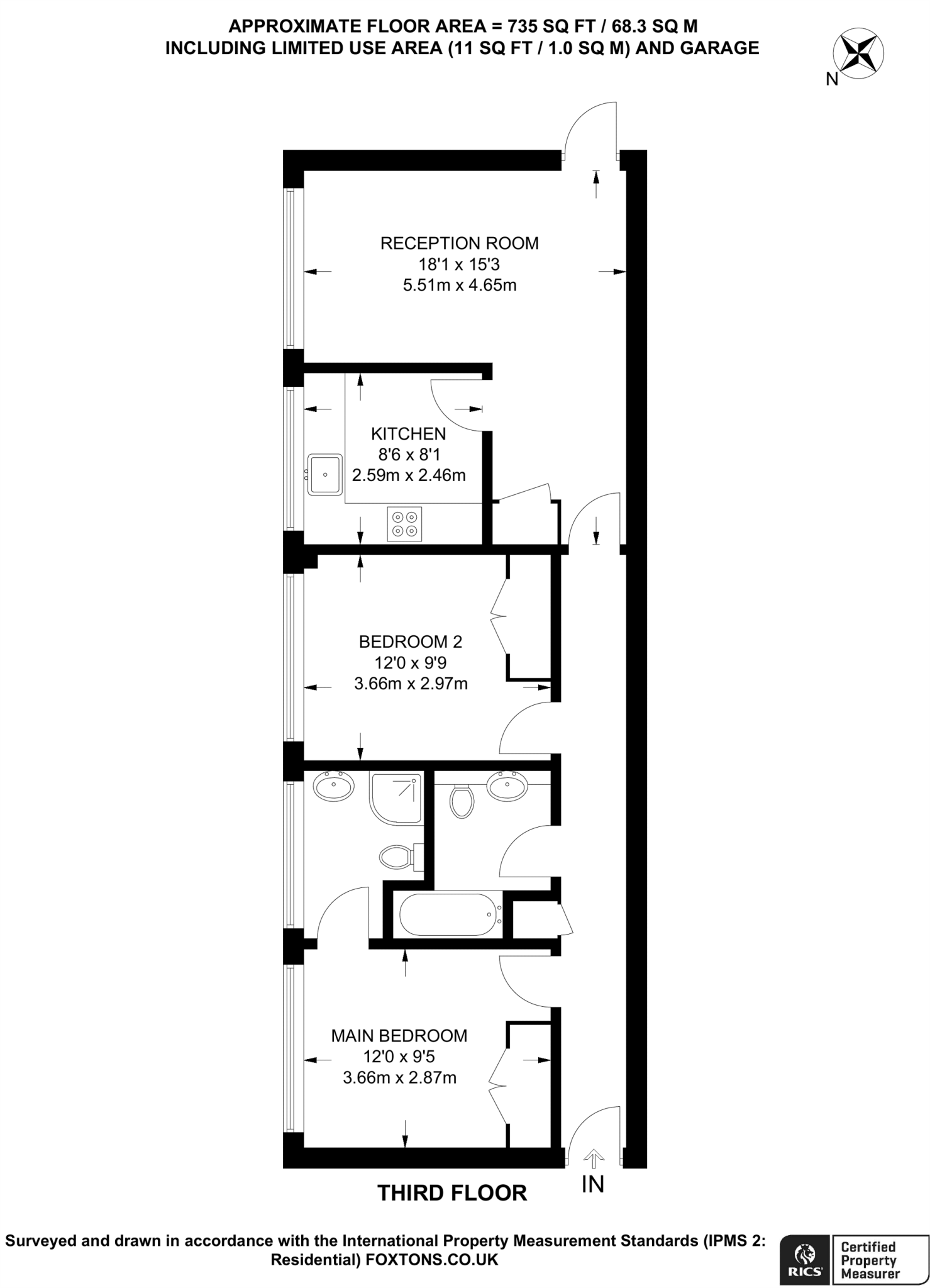
- Bright third-floor 2-bed flat, approx. 735 sq ft
- Main bedroom with en suite shower room
- Modern fitted kitchen and spacious reception room
- Double glazing installed before 2002 (may be dated)
- System-built 1967–75 construction; walls assumed uninsulated
- Community mains-gas heating; possible higher running costs
- Leasehold with c.970 years remaining; ground rent £150
- Very high local crime rate; area classified as deprived
Set on the third floor in the heart of Covent Garden, this well-presented 2-bedroom apartment offers bright, modern living across approximately 735 sq ft. The spacious reception room and a modern fitted kitchen create a flexible layout for daily living and entertaining, while the main bedroom benefits from an en suite shower room and good storage throughout.
The flat sits in a busy West End location with immediate access to shops, theatres, restaurants and transport links — an attractive proposition for city professionals or investors seeking strong rental appeal. Practical highlights include double glazing, fast broadband and excellent mobile signal, and the property records no flood risk.
Buyers should note material facts: the building is a 1967–75 system-built construction with assumed no wall insulation, heating provided by a community mains-gas scheme, and original double glazing installed before 2002. The flat is leasehold with a long unexpired term and a small ground rent, and the wider area records very high crime and higher deprivation than average. These factors may affect insurance, running costs and some buyer preferences.
Overall this is a turnkey, centrally located West End flat that balances immediate usability with clear opportunities for modest updating to improve thermal performance and long-term running costs. Its size and location make it suitable for city professionals, investors or those wanting a central London pied-à-terre.
2 bedroom apartment for sale in Garrick House, St Martin's Lane, Westminster, London, WC2N — £1,100,000 • 2 bed • 2 bath • 735 ft²
1 bedroom flat for sale in Upper St Martins Lane, WC2H, Covent Garden, London, WC2H — £580,000 • 1 bed • 1 bath • 500 ft²
2 bedroom flat for sale in Earlham Street, Covent Garden, London, WC2H — £1,000,000 • 2 bed • 2 bath • 769 ft²
2 bedroom flat for sale in Wellington Street, Covent Garden, London, WC2E — £1,300,000 • 2 bed • 2 bath • 970 ft²
1 bedroom flat for sale in St Martins Lane, Covent Garden, London, WC2H — £600,000 • 1 bed • 1 bath • 522 ft²
2 bedroom flat for sale in Aria House, Covent Garden, London, WC2B — £900,000 • 2 bed • 2 bath • 884 ft²






















































































































































































