Bright open-plan apartment with long lease and en suite.
Prime West End location near Covent Garden and theatres
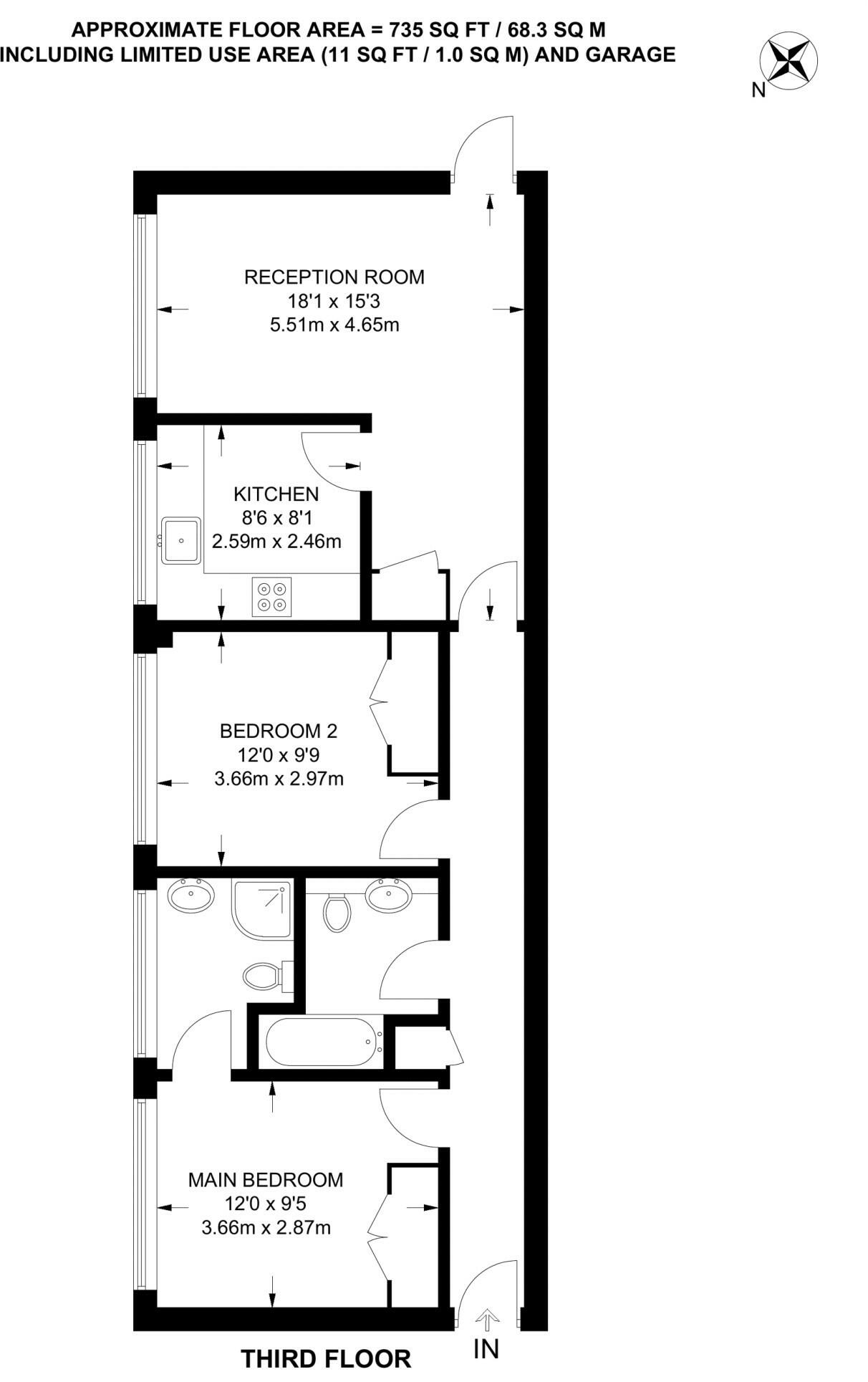
Set on St Martin’s Lane in the heart of the West End, this two-bedroom apartment offers a bright open-plan reception and a principal bedroom with en suite. At approximately 735 sq ft, the layout makes efficient use of space for city living and entertaining, with built-in storage throughout and a fitted kitchen.
The location is the principal draw: immediate access to Covent Garden’s shops, restaurants, theatres and excellent public transport links. The flat sits on the third floor of a mixed-use building and benefits from double glazing and an Energy Performance Certificate of Band C. The long lease (c. 973 years) provides tenure security.
Buyers should note several practical considerations. Service charges are above average at £4,926 per year and ground rent is £150. The building uses a community gas heating scheme; some wall construction is system-built with assumed no insulation, and glazing predates 2002, so buyers may want to budget for thermal or aesthetic upgrades. The local area is an inner-city, multicultural neighbourhood with very high recorded crime rates.
This property will suit someone seeking central West End convenience — whether an owner-occupier wanting a compact city base, or an investor targeting strong rental demand from theatre, hospitality and professional tenants. The flat is liveable as-is but offers straightforward potential for cosmetic improvement to increase comfort and value.
2 bedroom flat for sale in St Martins Lane, Covent Garden, London, WC2N — £1,100,000 • 2 bed • 2 bath • 735 ft²
2 bedroom flat for sale in Wellington Street, Covent Garden, London, WC2E — £1,500,000 • 2 bed • 2 bath • 851 ft²
2 bedroom apartment for sale in Shelton Street, Covent Garden, London, WC2H — £1,100,000 • 2 bed • 2 bath • 769 ft²
2 bedroom apartment for sale in Broad Court, Covent Garden,WC2B , WC2B — £2,100,000 • 2 bed • 2 bath • 921 ft²
1 bedroom apartment for sale in Maiden Lane, Covent Garden, London, WC2E — £795,000 • 1 bed • 1 bath • 648 ft²
2 bedroom apartment for sale in Exchange Court, Covent Garden, WC2R — £1,500,000 • 2 bed • 2 bath • 900 ft²






































































































