Well-connected starter home near stations and shops.
Bright reception room with large window
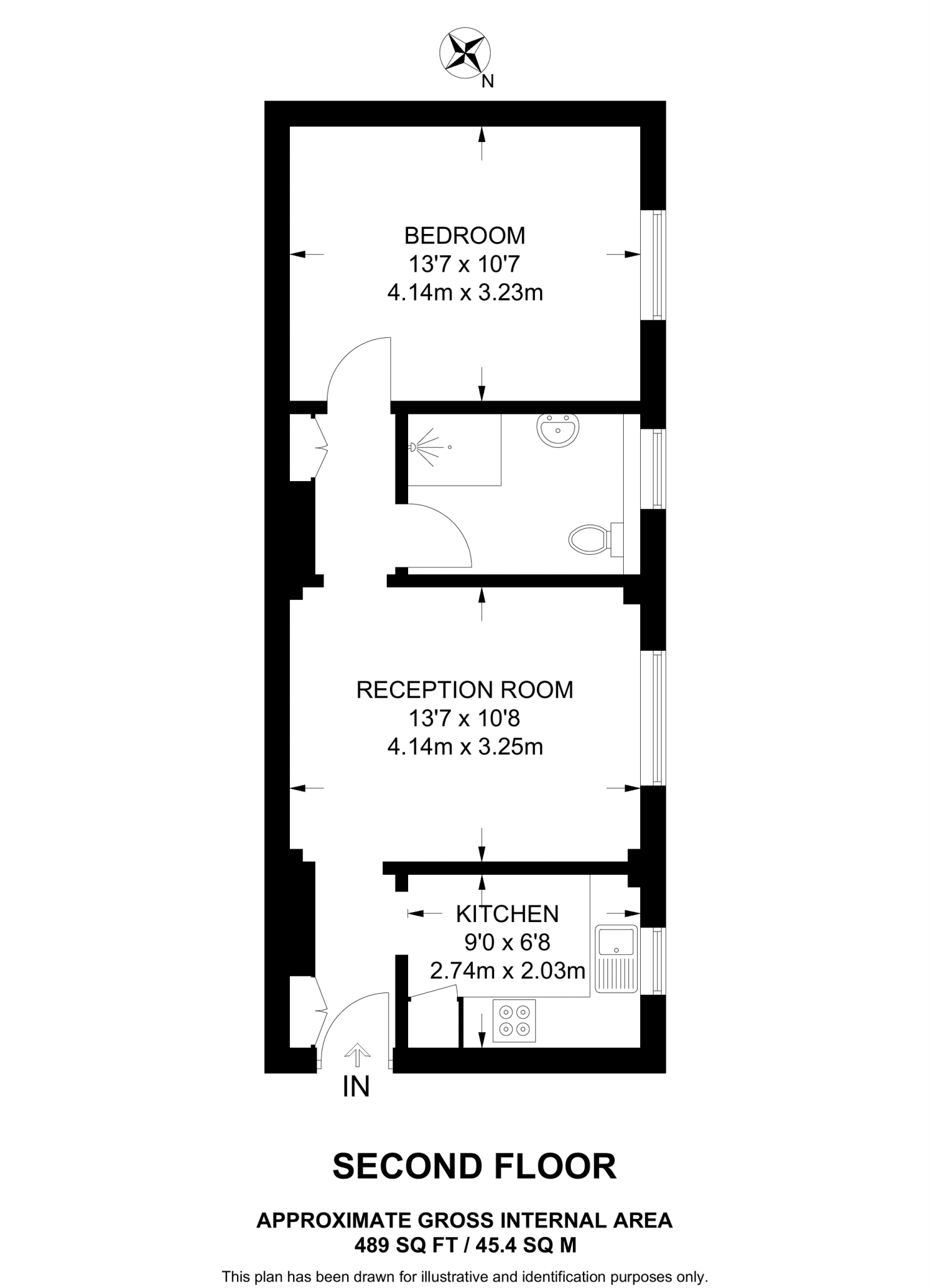
Set on the second floor of a 1930s purpose-built block, this one-bedroom flat offers a bright reception room, separate kitchen and a spacious double bedroom. The apartment benefits from lift access, a communal garden and fast broadband — practical features for everyday city living.
At 489 sq ft with share of freehold, the flat is well placed for first-time buyers seeking an affordable step onto the property ladder. Birkbeck and Anerley stations are nearby, and local shops, supermarkets and eateries are within easy walking distance.
Buyers should note the building’s solid brick construction (1930s–1940s) with assumed lack of wall insulation and a community heating scheme on mains gas, which may limit individual control of heating. The flat is average-sized and will suit those prioritising location and convenience over expansive living space.
Overall this property represents a sensible, well-connected starter home with period character and immediate move-in condition, while offering modest scope for energy upgrades and personalisation.
2 bedroom flat for sale in Elmers End Road, Anerley, London, SE20 — £300,000 • 2 bed • 1 bath • 549 ft²
2 bedroom flat for sale in Sherbourne Court, Anerley, London, SE20 — £290,000 • 2 bed • 1 bath • 528 ft²
1 bedroom flat for sale in Ridsdale Road, Anerley, London, SE20 — £305,000 • 1 bed • 1 bath • 354 ft²
1 bedroom flat for sale in TAYLOR COURT, ELMERS END ROAD, LONDON, SE20, Penge, London, SE20 — £250,000 • 1 bed • 1 bath • 418 ft²
2 bedroom flat for sale in Sherborne Court, Elmers End Road, London, SE20 — £275,000 • 2 bed • 1 bath • 634 ft²
1 bedroom flat for sale in Croydon Road, London, SE20 — £275,000 • 1 bed • 1 bath • 465 ft²










































































