DE55 3BF - 4 bed modern fourbed semi in Bolsover, DE55 3BF

View on Property Piper

4 bedroom semi-detached house for sale in White Ash Road, South Normanton, DE55

Summary - White Ash Road, South Normanton, Alfreton, DE55 DE55 3BF

4 bed 2 bath Semi-Detached

Contemporary family home near A38/M1 with landscaped garden and multi-car driveway.
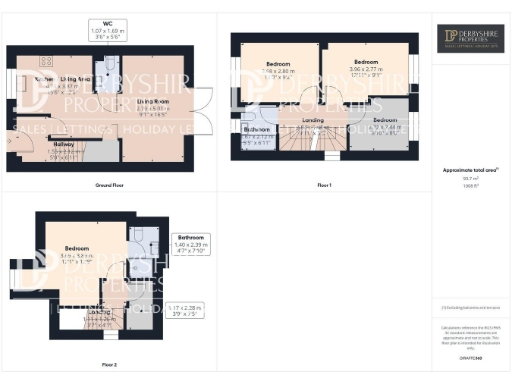
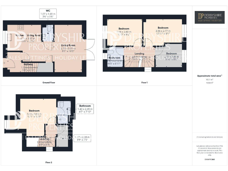
Four double bedrooms across three floors
This contemporary four-double-bedroom semi-detached house (built 2018) offers flexible family living across three floors and easy access to the A38 and M1. The ground floor has an open-plan lounge/diner, kitchen and WC; the first floor holds three double bedrooms and the family bathroom, while the second floor is dedicated to a master bedroom with en suite. The landscaped rear garden with paved patio, artificial lawn and large shed provides private outdoor space for entertaining and children.

Practical features include driveway parking for several vehicles, mains gas central heating with boiler and radiators, freehold tenure and an affordable council tax band. At about 1,008 sq ft and with a decent plot, the home suits growing families or first-time buyers wanting a modern layout in a well-connected suburb. Local schools are rated Good and amenities include shops and regular bus services.

Notable drawbacks: the property sits in an area with above-average crime rates, and the three-storey layout involves multiple staircases which may challenge mobility-impaired occupants. The overall internal size is modest for four double bedrooms, so some rooms are medium-sized. Buyers wanting a larger footprint should note the footprint limitations despite the extended garden.

Property Details

Image Descriptions

Floorplan Description

Rooms

Textual Property Features

Target Audience

AI Tags

Detected Visual Features

EPC Details

Nearby Schools

Nearest Bars And Restaurants

,,,,}

Nearest General Shops

,,}

Nearest Grocery shops

,,}

Nearest Supermarkets

,,}

Nearest Religious buildings

,,}

Nearest Medical buildings

,,,}

Nearest Leisure Facilities

,,,,}

Nearest Tourist attractions

,,}

Nearest Train stations

,,,,}

Nearest Bus stations and stops

,,,,}

Nearest Hotels

,,}

Tags

Local Market Stats

Similar Properties

Meta

High Res Images

Compatible Images

Low res Images

Thumbnails

Raw Images

High Res Floorplan Images

Compatible Floorplan Images

Low res Floorplan Images

FloorplanImages Thumbnail

Raw Floorplan Images