Bright open-plan living with garage and enclosed gardens, ideal for growing households.
Four bedrooms across three floors, including top-floor bedroom with WC
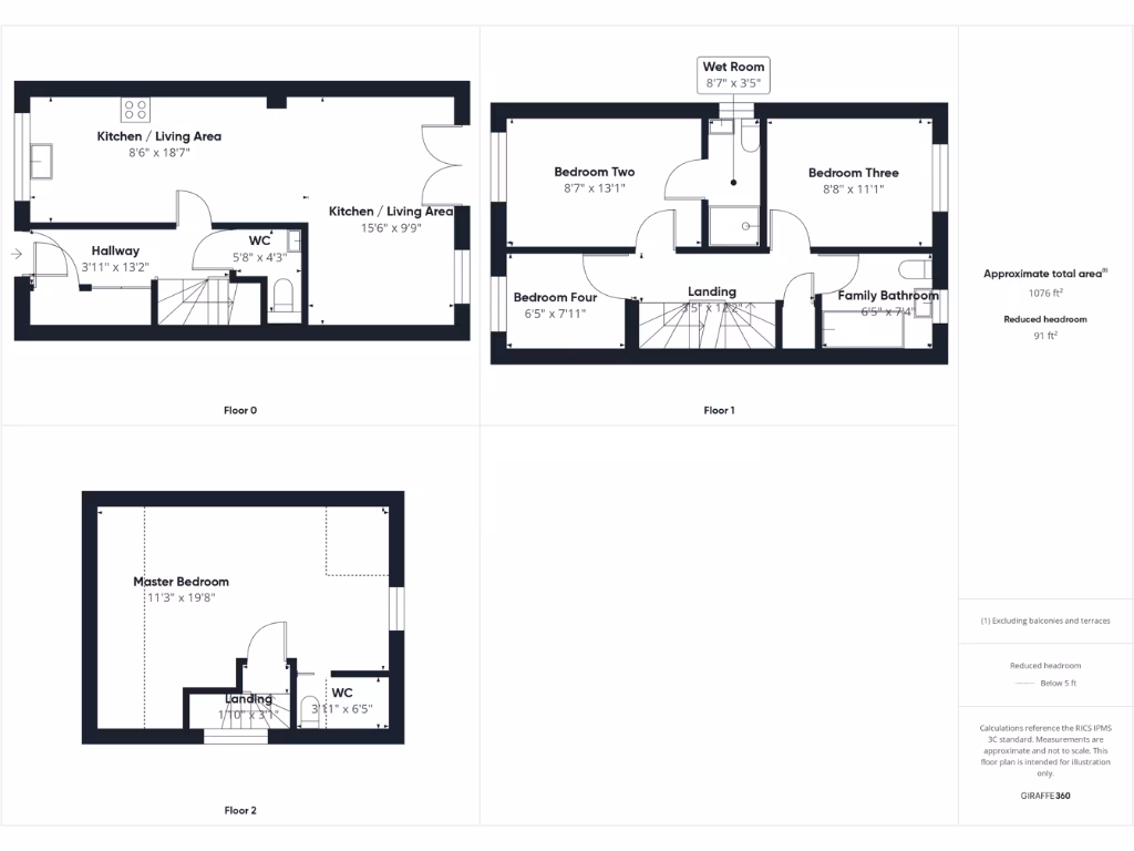
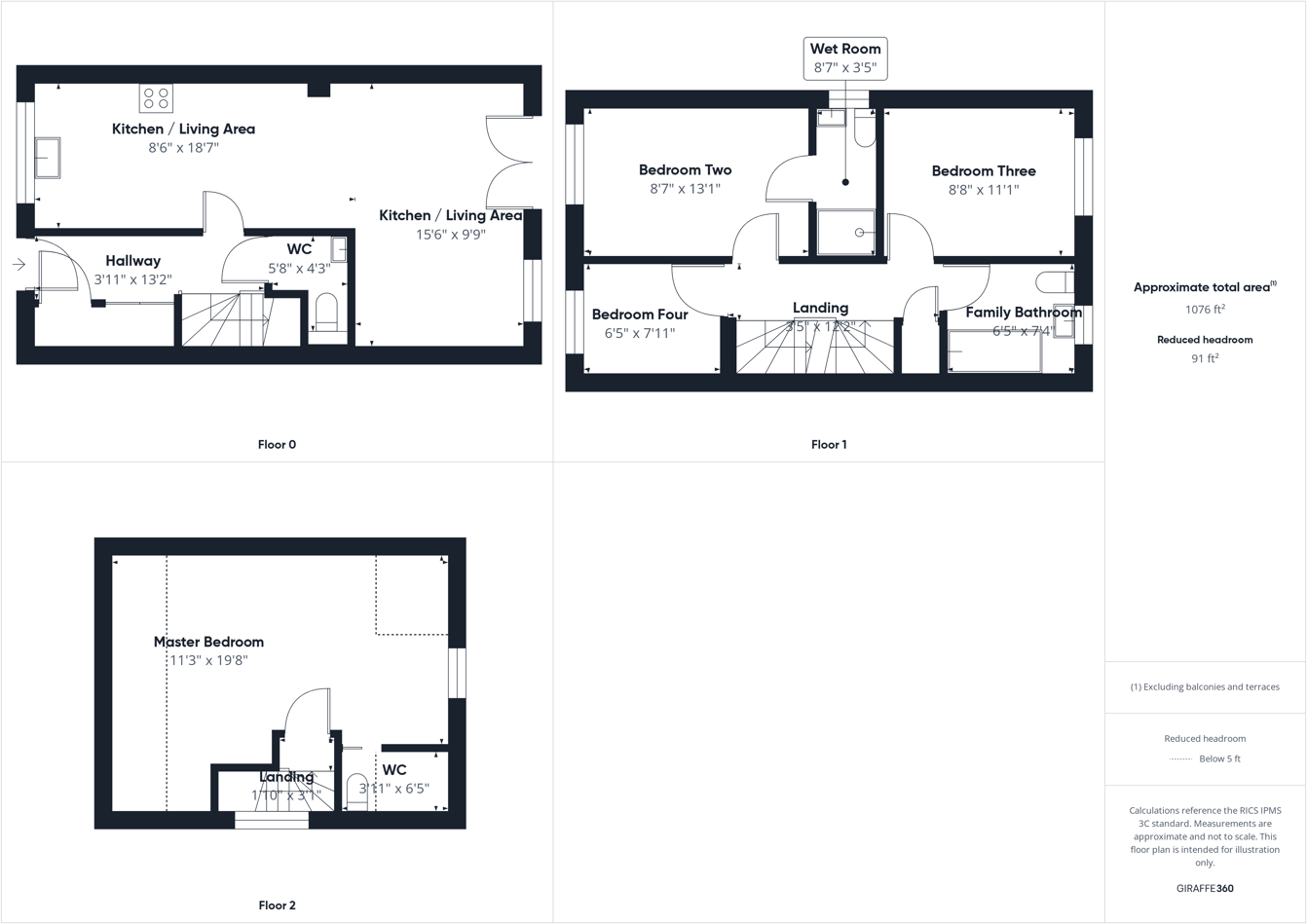
This modern detached property on Eastfield Drive offers adaptable family living across three floors, with a light open-plan ground floor that connects kitchen, dining and sitting areas. Patio doors bring natural light and lead to a fully enclosed rear garden, while a private driveway and detached garage provide secure parking and storage.
Upstairs are three well-proportioned bedrooms, including bedroom two with an en-suite wet room, and the whole top floor becomes a spacious fourth bedroom with its own WC — a useful layout for families needing separation or guests. The home benefits from high-performance glazing, low-energy lighting and mains gas central heating, keeping running costs reasonable.
Know the neighbourhood context before viewing: the local area is very deprived with above-average crime and characterised as a community under economic pressure. The plot and overall property footprint are small, so outdoor space and room sizes suit those seeking compact family accommodation rather than expansive grounds.
Practical strengths include fast broadband, a very low council tax band, freehold tenure and no flooding risk. This house will appeal to buyers prioritising modern finishes, good connectivity and sensible running costs, and it also presents straightforward potential to refresh decor or personalise rooms rather than requiring major structural works.
4 bedroom detached house for sale in Knitters Road, ALFRETON, Derbyshire, DE55 — £270,000 • 4 bed • 2 bath • 1049 ft²
4 bedroom detached house for sale in Hewer Close, Eastwood, Nottingham, Nottinghamshire, NG16 — £350,000 • 4 bed • 3 bath • 1262 ft²
4 bedroom detached house for sale in Nightingale Grove, South Normanton, DE55 — £315,000 • 4 bed • 2 bath • 983 ft²
4 bedroom semi-detached house for sale in Castle View, Langley Mill, Nottingham, Derbyshire, NG16 — £215,000 • 4 bed • 2 bath • 978 ft²
4 bedroom detached house for sale in Red Fox Avenue, Stanton Hill, Nottinghamshire, NG17 — £320,000 • 4 bed • 3 bath • 1297 ft²
4 bedroom detached house for sale in Charters Close, Kirkby in Ashfield, Nottinghamshire, NG17 — £285,000 • 4 bed • 2 bath • 1105 ft²


















































































