Characterful two-bed courtyard barn with vaulted beams and village charm.
Vaulted ceilings and exposed beams throughout living areas
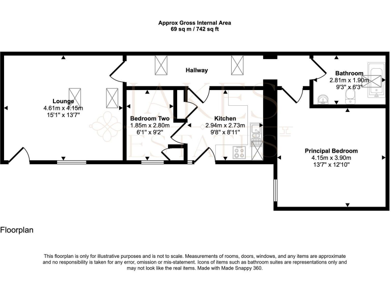
Immaculately presented two-bedroom barn conversion, 743 sq ft
Parking for one car; terrace and perpetual garage-use rights (not owned)
Oil-fired boiler — standalone oil supply, ongoing fuel/maintenance cost
Small plot and courtyard setting; limited external space
Second bedroom is compact — better as guest room or study
Fast broadband and excellent mobile signal in a rural village
Freehold tenure; low council tax and very low local crime
Set within a quiet courtyard in Culgaith, this immaculately presented two-bedroom barn conversion blends rustic charm with contemporary finishes. Vaulted ceilings, exposed beams and Velux windows give the principal reception a bright, airy feel while Amtico oak flooring and a fitted kitchen provide modern convenience. The property is freehold and offers a practical 743 sq ft layout suited to small families, couples or downsizers seeking village life in the Eden Valley.
Outside, there is a gravelled driveway with space for one vehicle, a small terrace, and perpetual rights to use a single garage with mezzanine storage (the garage is not owned). The location sits in an established farming community with excellent mobile signal and fast broadband, close to local amenities including a village school, pub and church; Langwathby (with shop and train station) is a short drive away.
Buyers should note a few material points: heating is from an oil-fired boiler (standalone oil supply), which can be more expensive and requires ongoing maintenance and fuel deliveries. The plot is small and parking is limited to one off-street space plus garage rights. Bedroom two is compact, so the layout will suit those needing a modest second room or occasional guest/study space rather than a generous double.
Overall this is a well-presented, characterful home offering countryside living with contemporary comforts. It will appeal to those seeking a manageable, low-crime village property with character features and easy access to outdoor recreation in the Eden Valley.
2 bedroom cottage for sale in Blencow, Penrith, CA11 — £410,000 • 2 bed • 1 bath • 975 ft²
3 bedroom barn conversion for sale in Smoot Garth, Kings Meaburn, Penrith, CA10 — £380,000 • 3 bed • 2 bath • 1385 ft²
5 bedroom country house for sale in Thrimby, Penrith, CA10 — £595,000 • 5 bed • 4 bath • 2013 ft²
3 bedroom barn conversion for sale in Ravenbeck Barn, Park Head, Kirkoswald, Cumbria, CA10 1JQ, CA10 — £385,000 • 3 bed • 1 bath • 852 ft²
3 bedroom barn conversion for sale in Sleagill, Penrith, CA10 — £325,000 • 3 bed • 2 bath • 1034 ft²
5 bedroom barn conversion for sale in Newby, Penrith, CA10 — £950,000 • 5 bed • 4 bath • 4000 ft²






















































































