**Standout Features:**
- Three bedroom Victorian semi-detached house
- Two reception rooms with period features
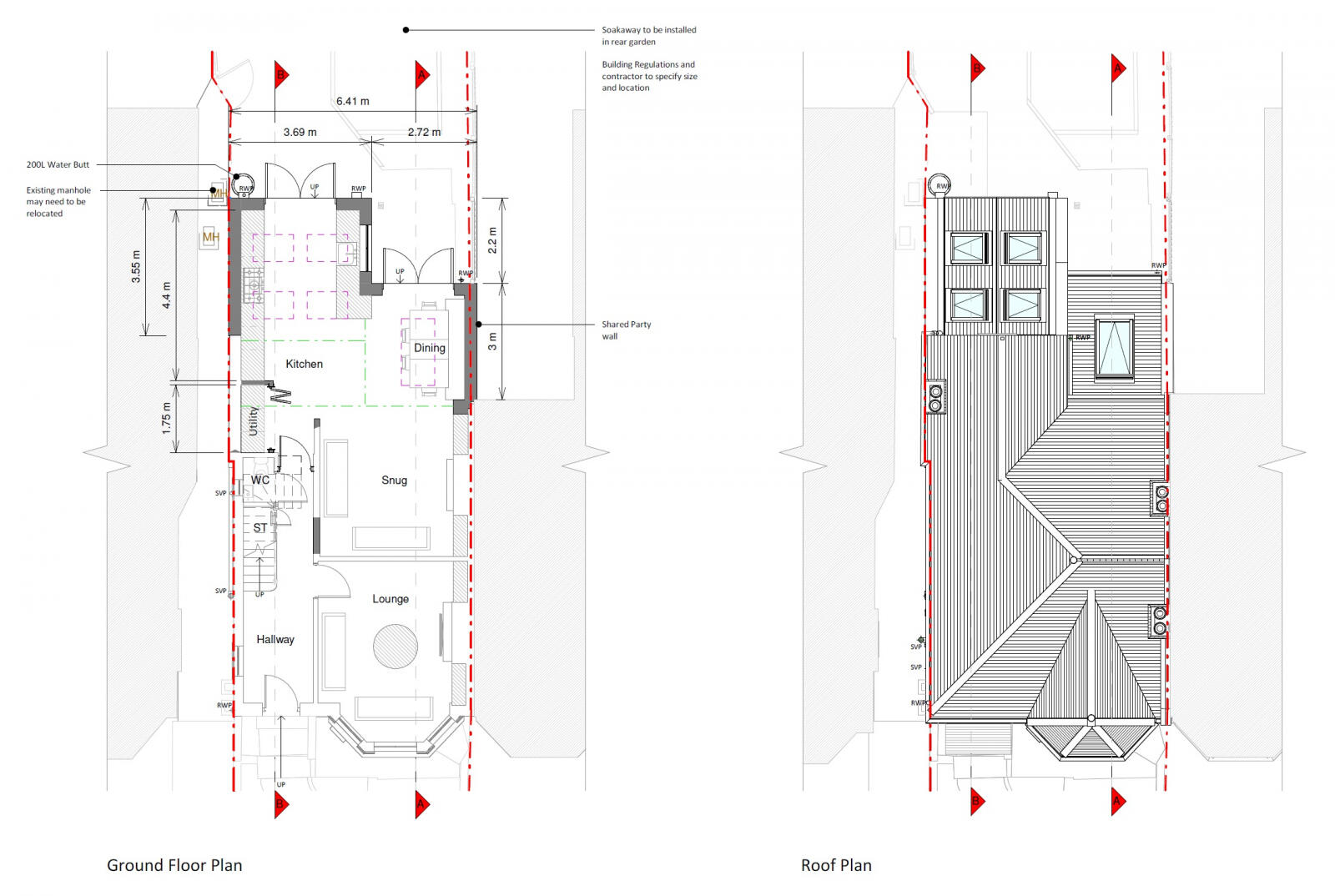
- Approved planning permission for ground floor extension
- Approximately 100' west-facing garden
- Off-street parking
- Close proximity (0.4 miles) to Palmers Green station
Located in the desirable Lakes Estate, this charming three-bedroom Victorian semi-detached house combines classic elegance with modern potential. The property boasts two spacious reception rooms accentuated by high ceilings, bay windows, and ornate detailing, perfect for family gatherings or cozy evenings. Upstairs, you’ll find three generously-sized bedrooms and a well-appointed four-piece family bathroom.
Envision expanding your living space; the home comes with approved plans for a ground floor extension, allowing for a contemporary kitchen/family/living area, along with potential loft expansion (subject to additional consent). The impressive 100-foot west-facing garden provides a private outdoor oasis, ideal for entertaining or enjoying the sun.
Family-friendly amenities, including reputable schools and local parks like Broomfield and Grovelands, cater to great everyday living. The area boasts low crime rates and a vibrant community atmosphere, making it a great choice for families and first-time buyers alike. With fast broadband and average mobile signal, this property meets modern connectivity needs. Don’t miss this wonderful opportunity to own a piece of Victorian charm with future expansion possibilities—act fast!
2 bedroom flat for sale in Harlech Road, Southgate, N14 — £500,000 • 2 bed • 1 bath • 796 ft²
5 bedroom semi-detached house for sale in Ulleswater Road, London, N14 — £1,250,000 • 5 bed • 2 bath • 2121 ft²
3 bedroom semi-detached house for sale in Ulleswater Road, London, N14 — £800,000 • 3 bed • 1 bath • 1437 ft²
3 bedroom flat for sale in Conway Road, London, N14 — £600,000 • 3 bed • 1 bath • 973 ft²
3 bedroom detached house for sale in Ulleswater Villas, Ulleswater Road, Southgate, London, N14 — £850,000 • 3 bed • 2 bath • 1416 ft²
5 bedroom semi-detached house for sale in Lakeside Road, London, N13 — £1,000,000 • 5 bed • 2 bath • 2330 ft²






















































































































