Single-storey home with garage, garden and strong schooling nearby.
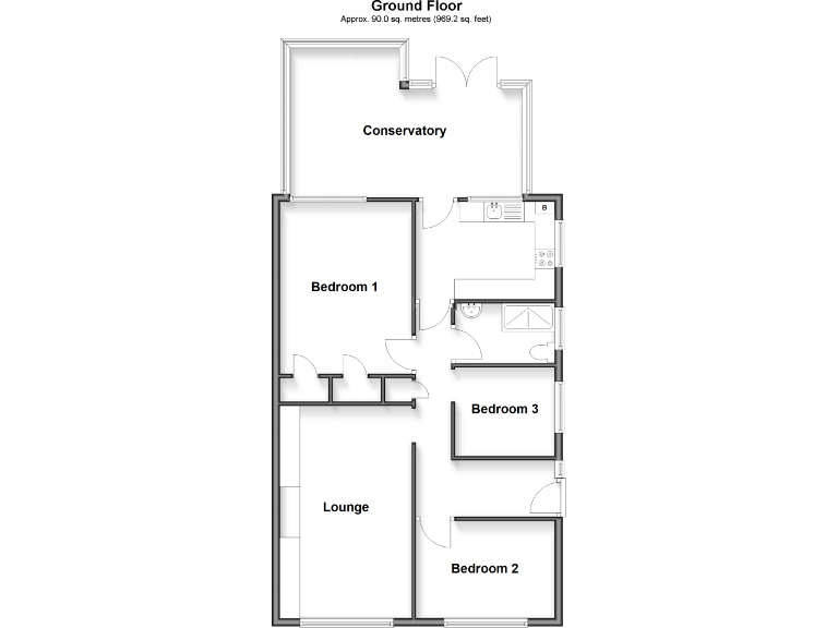
Three bedrooms on one level — ideal for downsizers or small families
Large conservatory adds substantial extra living space
Garage plus driveway provides off-road parking for multiple cars
Decent rear garden — good for children and pets
Double glazing and mains gas boiler with radiators installed
Single shower room only — may be restrictive for larger families
1970s interior details; property will benefit from modernisation
Very low crime, very affluent area with excellent mobile signal
Set in popular Sturry, this three-bedroom semi-detached bungalow offers comfortable single-storey living with easy access to the train station, shops and good local schools. The property sits on a decent plot with a manageable garden, garage and off-road parking — practical for families, pets and buyers looking to downsize without sacrificing space.
The layout includes a long conservatory that significantly increases usable space, a lounge, kitchen and three bedrooms within roughly 828 sq ft. Double glazing and mains gas central heating are in place, and council tax is described as affordable. The area is very low crime and very affluent, with excellent mobile signal and average broadband speeds.
The house dates from the 1950s–60s and retains dated 1970s features in the living room, including wall panelling and a faux fireplace; the interior will suit buyers happy to modernise. There is a single shower room only, so families may want to consider whether one bathroom meets their needs. Overall, this freehold bungalow represents a practical, well-located home with clear refurbishment potential.
 3 bedroom bungalow for sale in Sleigh Road, Sturry, Canterbury, Kent, CT2 — £325,000 • 3 bed • 1 bath • 842 ft²
 3 bedroom bungalow for sale in Sleigh Road, Sturry, Canterbury, Kent, CT2 — £325,000 • 3 bed • 1 bath • 842 ft² 3 bedroom bungalow for sale in Meadow Road, Sturry, Kent, CT2 0JF, CT2 — £300,000 • 3 bed • 1 bath • 1185 ft²
 3 bedroom bungalow for sale in Meadow Road, Sturry, Kent, CT2 0JF, CT2 — £300,000 • 3 bed • 1 bath • 1185 ft² 3 bedroom semi-detached bungalow for sale in Cedar Road, Sturry, Canterbury, Kent, CT2 — £215,000 • 3 bed • 1 bath • 828 ft²
 3 bedroom semi-detached bungalow for sale in Cedar Road, Sturry, Canterbury, Kent, CT2 — £215,000 • 3 bed • 1 bath • 828 ft² 3 bedroom semi-detached house for sale in Hoades Wood Road, Sturry, Canterbury, Kent, CT2 — £425,000 • 3 bed • 2 bath • 1393 ft²
 3 bedroom semi-detached house for sale in Hoades Wood Road, Sturry, Canterbury, Kent, CT2 — £425,000 • 3 bed • 2 bath • 1393 ft² 3 bedroom semi-detached bungalow for sale in Laburnum Lane, Sturry, Canterbury, CT2 — £300,000 • 3 bed • 1 bath • 793 ft²
 3 bedroom semi-detached bungalow for sale in Laburnum Lane, Sturry, Canterbury, CT2 — £300,000 • 3 bed • 1 bath • 793 ft² 2 bedroom semi-detached bungalow for sale in Sleigh Road, Sturry, Canterbury, CT2 — £300,000 • 2 bed • 1 bath • 690 ft²
 2 bedroom semi-detached bungalow for sale in Sleigh Road, Sturry, Canterbury, CT2 — £300,000 • 2 bed • 1 bath • 690 ft²










































