PO12 4PY - 3 bed elson three bed home in Welch Road, PO12 4PY

View on Property Piper

3 bedroom end of terrace house for sale in Welch Road, Elson, Gosport, PO12

Summary - 23 WELCH ROAD GOSPORT PO12 4PY

3 bed 2 bath End of Terrace

Well-presented 1930s end-terrace with garage and garden, ideal for growing families..
Three bedrooms; two bathrooms, family-friendly layout
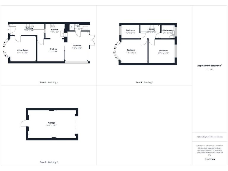
This well-presented three-bedroom end-terrace in Elson offers practical family living over two floors with useful outbuildings. A bright bay-front living room and a sun room give extra daytime space, while the detached garage and enclosed rear garden add storage and outside play area.

The layout suits growing families: two double bedrooms, a smaller third bedroom and a family bathroom upstairs, with a downstairs WC for convenience. Double glazing, mains gas central heating and a modern boiler provide year-round comfort; overall the property is move-in ready for buyers wanting a straightforward home.

Note the plot is small and the third bedroom is compact — better suited to a child, nursery or home office. The house dates from the 1930s and the cavity walls are assumed to have no added insulation, so there is potential to improve thermal efficiency and reduce running costs. The kitchen is modest in size and could be updated to suit modern open-plan living if desired.

Located on Welch Road, the house sits in a practical urban neighbourhood with good bus links, local shops and schools nearby. For buyers prioritising space, convenience and a detached garage in a well-connected town location, this property warrants an early viewing.

Property Details

Brochure Descriptions

Image Descriptions

Floorplan Description

Rooms

Textual Property Features

Target Audience

AI Tags

Detected Visual Features

EPC Details

Nearby Schools

Nearest Bars And Restaurants

,,,,}

Nearest General Shops

,,}

Nearest Grocery shops

,,}

Nearest Supermarkets

,,}

Nearest Religious buildings

,,}

Nearest Medical buildings

,,,}

Nearest Airports

}

Nearest Leisure Facilities

,,,,}

Nearest Tourist attractions

,,}

Nearest Train stations

,,,,}

Nearest Bus stations and stops

,,,,}

Nearest Hotels

,,}

Tags

Local Market Stats

Similar Properties

Meta

High Res Images

Compatible Images

Low res Images

Thumbnails

Raw Images

High Res Floorplan Images

Compatible Floorplan Images

Low res Floorplan Images

FloorplanImages Thumbnail

Raw Floorplan Images