Rare plot with approved plans for extension and new build — ideal for value-driven developers.
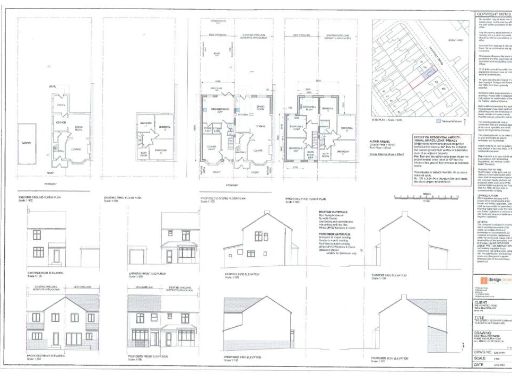
Planning permission granted July 2024 for extensions and new adjoining dwelling
Adjoining building plot included — consent for three-bedroom, two-storey home
Freehold property with detached single garage and side access
Decent double-width plot offering clear development potential
Small overall size (636 sq ft) and just one family bathroom
Dated interiors require refurbishment; cosmetic works likely needed
Double glazing and mains gas central heating already installed
Buyers advised to obtain surveys and independently verify services
This three-bedroom end-of-terrace on Highfield Road is aimed at builders and property investors seeking a clear value-add project. Planning approvals (July 2024) allow a two- and single-storey extension to the existing house and consent to construct an adjoining three-bedroom, two-storey dwelling on the generous double-width plot — a practical route to increased floor area and rental or resale income.
The existing home offers a traditional layout with a bay-fronted living room, separate dining area, utility room, and a single family bathroom. The house is freehold, double-glazed, gas‑heated via boiler and radiators, and sits on a decent-sized plot that includes a detached single garage and side access — useful for construction staging or retention as parking.
Expect cosmetic updating and some home-improvement work rather than major structural overhaul: interiors show dated décor and original features such as a tiled fireplace and decorative moulding. The property’s overall size is small (636 sq ft) with one bathroom, so the approved extension will materially change living space and value. Buyers should commission surveys and verify services before purchase.
For a local builder or investor the combination of planning permissions and an adjoining building plot presents a rare development opportunity in a residential area with good broadband and mobile signal, nearby schools and amenities. The project suits someone prepared to manage refurbishment and new-build delivery to unlock uplift in capital or rental return.
3 bedroom semi-detached house for sale in Fullingdale Road, The Headlands, Northampton, Northamptonshire, NN3 — £257,500 • 3 bed • 1 bath • 649 ft²
3 bedroom end of terrace house for sale in Burns Road, Wellingborough, NN8 — £175,000 • 3 bed • 1 bath • 736 ft²
3 bedroom semi-detached house for sale in Cordon Close, Northampton, NN3 — £230,000 • 3 bed • 1 bath • 1292 ft²
3 bedroom end of terrace house for sale in Edmund Street, Kettering, NN16 — £250,000 • 3 bed • 1 bath • 895 ft²
3 bedroom semi-detached house for sale in Finedon Road, Wellingborough, NN8 4AH, NN8 — £279,995 • 3 bed • 1 bath • 921 ft²
3 bedroom semi-detached house for sale in Priors Close, Rushden, NN10 — £185,000 • 3 bed • 1 bath • 1324 ft²










































































