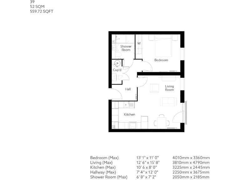
Low-maintenance one-bedroom retirement apartment with communal gardens and parking.
- One double bedroom with fitted wardrobe and modern shower room
- Open-plan living/dining with Juliette balcony, east-facing aspect
- Shared Ownership option (example: 75% share; qualifying criteria apply)
- Long lease length: 997 years
- New-build 2019; modern finishes, low immediate maintenance
- Main heating: electric room heaters (potentially higher running costs)
- Off-street parking, landscaped communal gardens and homeowners’ lounge
- Area classified as deprived despite very low local crime
A bright, purpose-built one-bedroom retirement apartment in Waveney Place, designed for over-60s who want low-maintenance living close to Harleston town centre. The open-plan living and dining area opens to a Juliette balcony, and the bedroom includes a fitted wardrobe. Residents benefit from landscaped communal gardens, a homeowners’ lounge, guest suite and off-street parking within an exclusive private development.
This is offered through Shared Ownership (examples shown for a 75% share) — a route to lower upfront costs and, at some share levels, no rent payable. The property is a modern new-build (constructed 2019) with an estimated SAP rating up to 84, and the long lease (997 years) reduces long-term tenure risk.
Be clear about the trade-offs: heating is by electric room heaters rather than gas central heating, which can mean higher energy bills. The unit is leasehold and sold under shared ownership terms with qualifying criteria; prospective buyers should confirm eligibility, exact share options, service charges and council tax before committing. The development sits in a village classified as having higher area deprivation despite very low local crime and excellent digital connectivity.
Overall this apartment suits a downsizer seeking a manageable, modern home with communal support and social spaces close to local amenities. It offers low-maintenance living and long lease security, but buyers should budget for electric heating running costs and check shared ownership terms carefully.
1 bedroom retirement property for sale in Mendham Lane,
Harleston,
Norfolk,
IP20 9EW, IP20 — £157,500 • 1 bed • 1 bath • 548 ft²
1 bedroom apartment for sale in Waveney Place, Harleston, IP20 — £125,000 • 1 bed • 1 bath • 527 ft²
2 bedroom retirement property for sale in Mendham Lane,
Harleston,
Norfolk,
IP20 9EW, IP20 — £319,995 • 2 bed • 1 bath • 785 ft²
1 bedroom retirement property for sale in Mendham Lane,
Harleston,
Norfolk,
IP20 9EW, IP20 — £230,000 • 1 bed • 1 bath • 548 ft²
1 bedroom flat for sale in Mendham Lane, Harleston, IP20 — £70,500 • 1 bed • 1 bath • 424 ft²
1 bedroom apartment for sale in Waveney Court, Harleston, IP20 — £189,950 • 1 bed • 1 bath • 534 ft²














































































