Comfortable retirement living with communal facilities and village convenience.
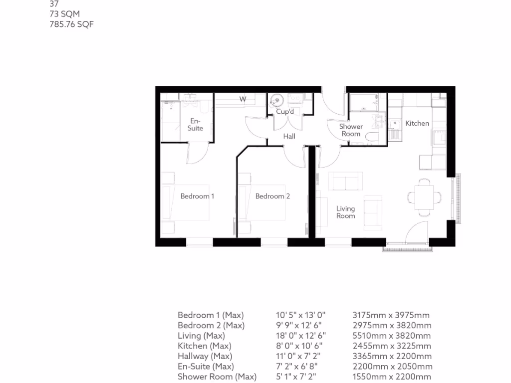
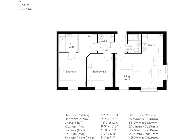
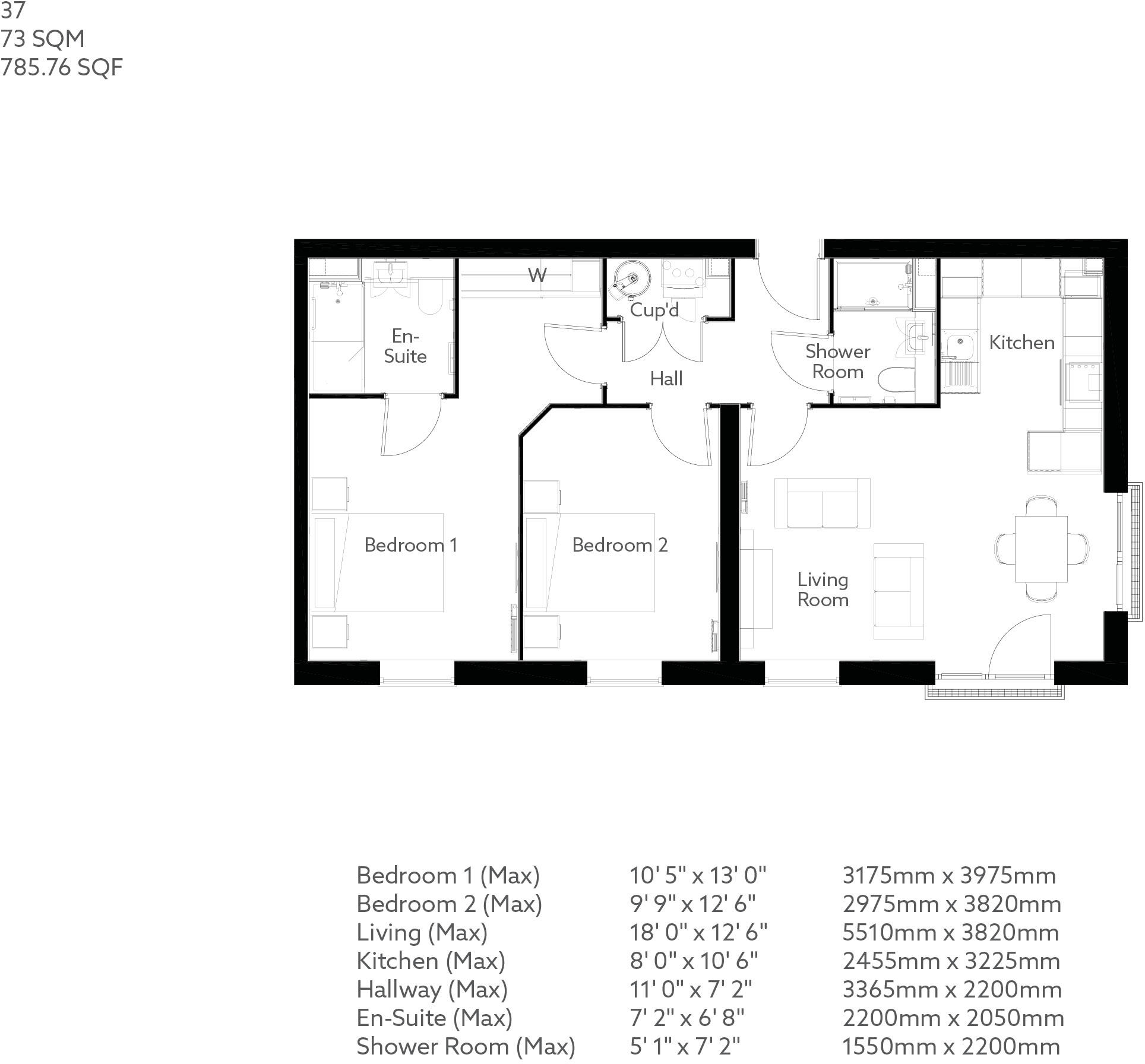
Second-floor two-bedroom apartment with Juliette balcony and garden views
Bedroom one with fitted wardrobe and en‑suite double shower
Open-plan living/dining leading to modern kitchen with integrated appliances
Guest suite, homeowners’ lounge and landscaped communal gardens onsite
Designated off-street parking included for residents
SAP rating up to 81 — energy efficient for electric-heated homes
Heated by electric room heaters; potentially higher running costs than gas
Leasehold property (997 years remaining); retirement community rules apply
A bright, purpose-built two-bedroom retirement apartment on the second floor of Waveney Place, designed for easy, low-maintenance living. The open-plan living and dining area opens to a Juliette balcony overlooking landscaped communal gardens, while bedroom one benefits from a fitted wardrobe and an en‑suite double shower.
The development, completed in 2019, offers communal conveniences that suit downsizers: homeowners’ lounge, guest suite, designated car parking and well-kept gardens. Practical storage is included with a large hallway cupboard housing the washer-dryer, and the property scores well for energy efficiency (SAP up to 81).
Important practical points are stated plainly: the home is leasehold, serviced for the over‑60s, and heated by electric room heaters rather than gas central heating, which may increase running costs. The apartment has a single main bathroom plus an en‑suite, and overall floor area is modest at about 785 sq ft—comfortable but not expansive.
Set in a quiet village location with very low local crime, excellent mobile signal and fast broadband, this apartment suits buyers seeking an independent retirement lifestyle close to Harleston’s amenities and Norfolk countryside. The community aspect and new-build specification make it an attractive, low-upkeep option for those ready to downsize.
1 bedroom retirement property for sale in Mendham Lane,
Harleston,
Norfolk,
IP20 9EW, IP20 — £230,000 • 1 bed • 1 bath • 548 ft²
1 bedroom retirement property for sale in Mendham Lane,
Harleston,
Norfolk,
IP20 9EW, IP20 — £220,000 • 1 bed • 1 bath • 559 ft²
1 bedroom retirement property for sale in Mendham Lane,
Harleston,
Norfolk,
IP20 9EW, IP20 — £168,750 • 1 bed • 1 bath • 559 ft²
1 bedroom retirement property for sale in Mendham Lane,
Harleston,
Norfolk,
IP20 9EW, IP20 — £157,500 • 1 bed • 1 bath • 548 ft²
2 bedroom retirement property for sale in Mendham Lane,
Harleston,
Norfolk,
IP20 9EW, IP20 — £228,750 • 2 bed • 1 bath • 785 ft²
1 bedroom apartment for sale in Waveney Place, Mendham Lane, Harleston, IP20 — £210,000 • 1 bed • 1 bath • 556 ft²






























































































