Character cottage with large gardens, garage/workshop and countryside views — scope to modernise.
Large garden with summerhouse, greenhouse and multiple stores
Three reception rooms offering flexible family or work space
Garage/workshop with power, lighting and fitted log burner
Ample driveway parking for several vehicles and farm-style gate
Pleasant open rear outlook over farmland
Oil central heating — ongoing fuel costs to consider
Utility area and parts of property need modernisation
Slow broadband and wider area shows higher deprivation levels
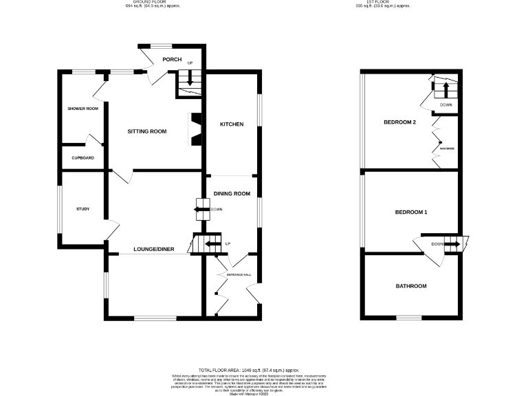
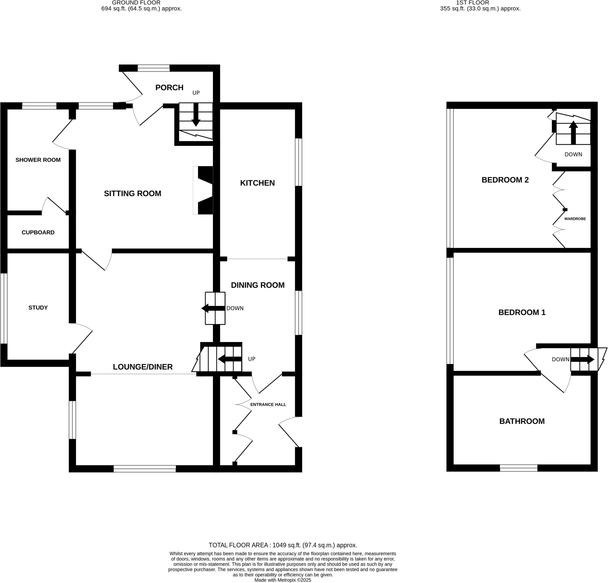
Penybryn Cottage is a traditional two-bedroom detached cottage set on a large plot on the edge of Acrefair. The house offers flexible living with three reception rooms, a kitchen/breakfast room and two bathrooms, useful for family life or home working. Large gardens, a summerhouse and several outbuildings give scope for outdoor hobbies, storage or further development subject to permissions.
Practical features include oil-fired central heating, UPVC double glazing and a garage/workshop with power and lighting. The property sits with a pleasant open aspect to the rear over farmland and has a broad driveway providing ample off-road parking for several vehicles.
Buyers should note a few material considerations: parts of the house and the utility area show signs of age and would benefit from updating; the property uses oil heating which carries ongoing fuel costs; broadband speeds in the area are slow. The wider area has higher levels of deprivation, which may concern some buyers but the village location provides easy access to Wrexham and local schools.
Overall this is a large, characterful cottage with significant outside space and practical outbuildings — well suited to buyers who prioritise plot, countryside views and scope to modernise over turnkey condition.
3 bedroom detached house for sale in Dolydd Road, Cefn Mawr, Wrexham, LL14 — £300,000 • 3 bed • 1 bath
4 bedroom semi-detached house for sale in 1 Bryn Cottages, Pen Y Lan, Ruabon, Wrexham, LL14 — £475,000 • 4 bed • 3 bath • 1221 ft²
2 bedroom detached house for sale in Cwmalis Road, Froncysyllte, LL20 — £275,000 • 2 bed • 1 bath • 668 ft²
3 bedroom cottage for sale in Dolydd Lane, Cefn Mawr, LL14 — £475,000 • 3 bed • 1 bath • 1801 ft²
3 bedroom semi-detached house for sale in Cae'r Efail, Acrefair, Wrexham, LL14 — £190,000 • 3 bed • 1 bath • 716 ft²
3 bedroom semi-detached bungalow for sale in Trefynant Park, Acrefair, Wrexham, LL14 — £199,950 • 3 bed • 1 bath • 840 ft²














































































