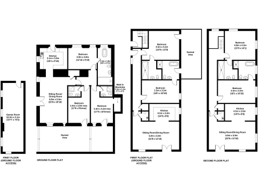
**Standout Features:**
- Newly renovated barn conversion offering three self-contained living areas
- Stunning elevated views over Duddon Estuary and the Irish Sea
- Expansive 7.5-acre plot with ample parking
- Versatile living spaces suitable for multi-generational living or holiday rentals
- Spacious games room with utilities for various uses
- Low crime area, ideal for families or investors
- Rural location with access to scenic walks and beaches
This impressive modern barn conversion is a unique opportunity situated on a sprawling 7.5-acre plot, featuring breathtaking views of the Duddon Estuary and the Irish Sea. Recently refurbished to a high standard, the property consists of three self-contained apartments, perfect for multi-generational living or as lucrative holiday rentals. Each dwelling is tastefully designed with modern finishes and en-suite facilities, offering both comfort and convenience.
Community-oriented yet secluded, this property enjoys low crime rates and is ideal for families or as an investment. The spacious games room adds versatility, serving as an entertainment space or potential office. Despite its tranquil location, local amenities, schools, and picturesque walking paths into the stunning Southwest Lakes area are within easy reach. Don't miss the chance to own this exclusive retreat that reflects rustic charm while providing modern living—perfect for those looking to escape city life or seek a rewarding investment opportunity. Act fast; properties like this in such breathtaking surroundings are rarely available for long!
2 bedroom barn conversion for sale in The Cottage, High Lowscales Farm, Millom, Cumbria, LA18 — £295,000 • 2 bed • 1 bath • 1271 ft²
3 bedroom barn conversion for sale in 1 Sturdy Bank Barn, Grizebeck, Kirkby-in-Furness, LA17 7XU, LA17 — £430,000 • 3 bed • 2 bath • 1406 ft²
1 bedroom barn conversion for sale in The Byre, High Lowscales Farm, Millom, Cumbria, LA18 — £225,000 • 1 bed • 1 bath • 393 ft²
3 bedroom barn conversion for sale in Plumpton, Ulverston, LA12 — £475,000 • 3 bed • 2 bath • 1337 ft²
4 bedroom barn conversion for sale in Low Wood Stile Barn, Foxfield, Broughton-in-Furness, LA20 — £695,000 • 4 bed • 1 bath • 4550 ft²
3 bedroom house for sale in Gawthwaite Farm, Gawthwaite, Nr Ulverston, LA12 — £475,000 • 3 bed • 3 bath • 1952 ft²






























































