Character-filled rural home with estuary views and generous gardens.
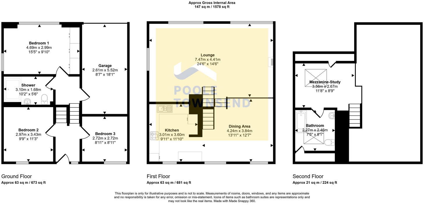
- Dramatic double-height living room with exposed beams and mezzanine study
- Three double bedrooms and two bathrooms (ground and mezzanine levels)
- Large rear garden with pond, mature planting and beach access on foot
- Integral garage, off-road parking and laundry area in garage
- Drainage to septic tank; heating supplied by tanked oil
- Very slow broadband and average mobile signal — limits remote working
- Medium flood risk for the location; council tax Band E (above average)
This large stone barn conversion sits in a quiet rural hamlet with sweeping views across the Levens Estuary, viaduct and surrounding hills. The heart of the home is a dramatic double-height living area with exposed timbers, a solid-fuel stove and a mezzanine study — ideal for someone seeking character and open-plan sociable space.
The accommodation is arranged over multiple levels and includes three double bedrooms on the lower floors, two bathrooms (one on the mezzanine), fitted kitchen with integrated oven and space for appliances, an integral garage with laundry area and off-road parking. A substantial rear garden with mature planting, pond and lawns provides private outdoor space and direct walking access to the nearby beach. Furniture is included in the sale.
Practical points to note: drainage is to a septic tank and heating uses a tanked oil supply; broadband speeds are very slow and mobile signal is average. There is a medium flood risk for the area and council tax is Band E. These are important factors for permanent residents or buyers planning remote working or intensive modern connectivity needs.
This property will suit buyers looking for a characterful country home or a coastal retreat — especially those who value space, views and garden privacy. It also offers further potential for updating to personal taste while retaining strong original features.
5 bedroom barn conversion for sale in Crooklands, Milnthorpe, LA7 — £635,000 • 5 bed • 2 bath • 1765 ft²
3 bedroom barn conversion for sale in Lower Haverflatts, Milnthorpe, LA7 — £330,000 • 3 bed • 1 bath • 812 ft²
6 bedroom barn conversion for sale in Knott View Barn, Farleton, LA6 — £850,000 • 6 bed • 3 bath • 2840 ft²
4 bedroom barn conversion for sale in Low Wood Stile Barn, Foxfield, Broughton-in-Furness, LA20 — £675,000 • 4 bed • 1 bath • 4550 ft²
4 bedroom country house for sale in Crimbles Lane, Cockerham, LA2 — £560,000 • 4 bed • 3 bath • 2126 ft²
7 bedroom barn conversion for sale in The Barn, High Lowscales, Millom, Cumbria, LA18 — £765,000 • 7 bed • 3 bath • 2448 ft²


















































































































