Chain-free three-bed bungalow near the beach — ideal for a renovating downsizer..
- Detached single-storey bungalow, chain free for quicker sale
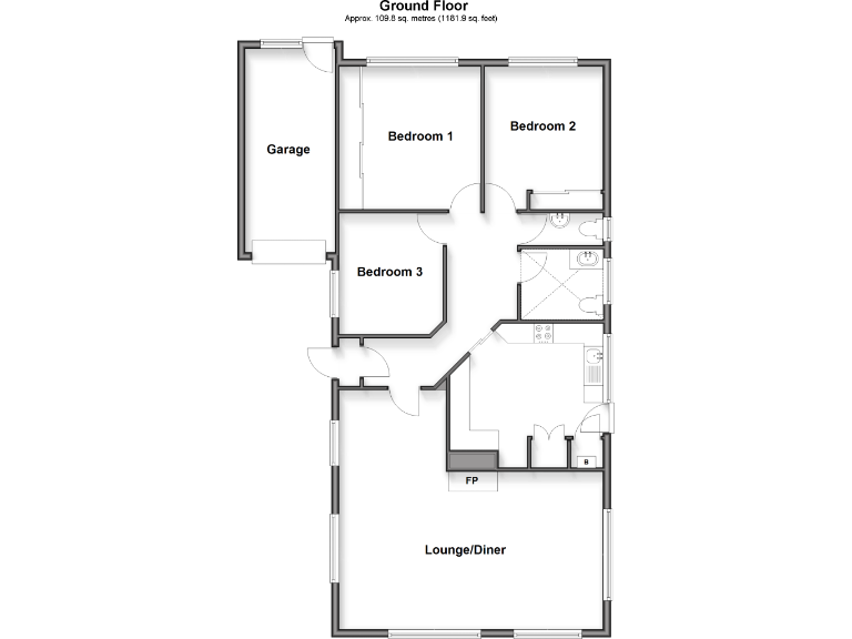
- Three double bedrooms and very large lounge/diner
- Manageable, hardscaped rear garden; decent plot size
- Garage and off-road parking provide practical storage
- Requires renovation; DIY/updating skills recommended
- Heating via electric storage heaters; may need replacement
- Very slow broadband in area could affect home working
- Small overall size (~775 sq ft) in a rural, deprived area
This detached three-bedroom bungalow on Williamson Road is a bright, single-storey home with genuine potential for someone prepared to carry out DIY updating. The large lounge/diner, three double bedrooms and manageable rear garden make it a comfortable layout for a downsizer or buyer seeking easy-access living close to the beach. The property is chain free, positioned within walking distance of a local shop and the shoreline, and a short drive from New Romney’s wider amenities.
The house requires renovation: cosmetic and likely mechanical upgrades are needed, and heating is by electric storage heaters. Broadband speeds in the area are very slow, which may affect home working. The property does have recent double glazing and a filled cavity construction, and it sits on a decent plot with garage and off-road parking — useful for longer-term value uplift after refurbishment.
Practical considerations are clear: the bungalow is modest in overall size (about 775 sq ft) and in a part of Romney Marsh with limited local services, though flooding risk is reported as none and crime is low. For a buyer who values single-floor living and seaside proximity, this is a straightforward project with scope to personalise and modernise to taste.
Nearby schools are rated Good, and local amenities cover everyday needs plus tourism and leisure. Buyers should verify services, fixtures and tenure details; the property is sold freehold and offered without onward chain for a quicker sale.
3 bedroom semi-detached bungalow for sale in Dunes Road, Greatstone, Kent, TN28 — £250,000 • 3 bed • 1 bath • 598 ft²
3 bedroom detached bungalow for sale in Queens Road, Littlestone, Romney Marsh, Kent, TN28 — £450,000 • 3 bed • 1 bath • 680 ft²
2 bedroom bungalow for sale in Seaview Road, Greatstone, New Romney, Kent, TN28 — £280,000 • 2 bed • 1 bath • 678 ft²
3 bedroom detached bungalow for sale in Victoria Road, Littlestone, Kent, TN28 — £370,000 • 3 bed • 1 bath • 1066 ft²
2 bedroom detached bungalow for sale in Meehan Road, Greatstone, New Romney, Kent, TN28 — £260,000 • 2 bed • 1 bath • 501 ft²
3 bedroom detached bungalow for sale in Seaway Road, St. Marys Bay, Romney Marsh, TN29 — £265,000 • 3 bed • 1 bath • 678 ft²






































